← Reading Borough Council

Status

Pending House extension
Received
Not recorded
New homes
0

Full proposal

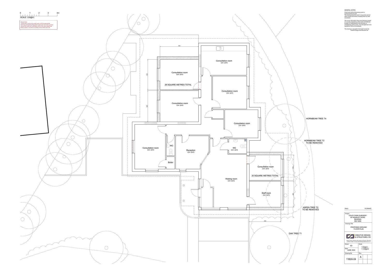
Reference PL/24/1693 Application type Full planning permission Site address 80 Wensley Road, Reading, RG1 6DN Description Erection of a single storey rear and single storey front extensions to Doctors Surgery. Status Decision Made Decision Approve with Conditions Received Date 18/12/2024 Decision Date 03/3/2025

Documents

Uncategorised
Archived · Original link
Uncategorised
Archived · Original link
Uncategorised
Archived · Original link
Uncategorised
Archived · Original link
Uncategorised
Archived · Original link

Have your say

Your comment matters. Councils must consider every representation that raises material planning considerations.

Write a comment