PL/24/1723
Reading Borough Council
Status
Pending
House extension
Received
Not recorded
New homes
0
Full proposal
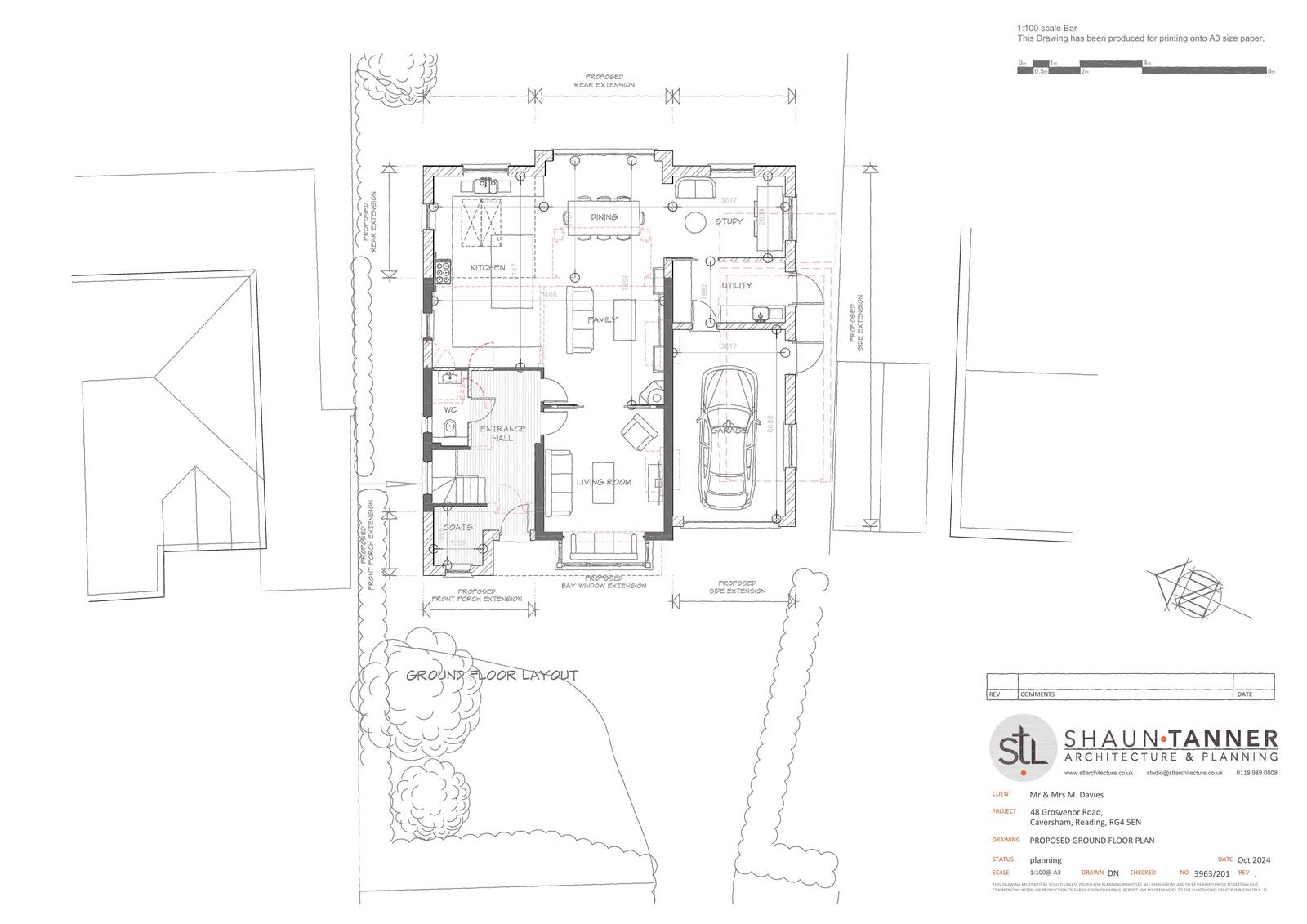
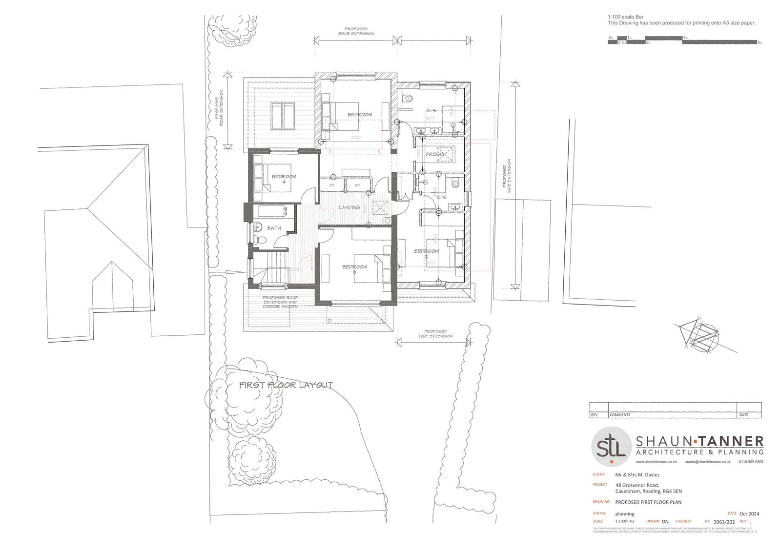
Reference PL/24/1723 Application type Householder planning permission Site address 48 GROSVENOR ROAD, CAVERSHAM, READING, RG4 5EN Description Proposed 2 storey side extension to include replacement garage, part 2 storey rear extension and single storey front extensions for porch and bay window, plus alternations to façade. Status Decision Made Decision Approve Received Date 23/12/2024 Decision Date 22/4/2025
Documents
Have your say
Your comment matters. Councils must consider every representation that raises material planning considerations.