← Reading Borough Council

Status

Pending House extension
Received
Not recorded
New homes
0

Full proposal

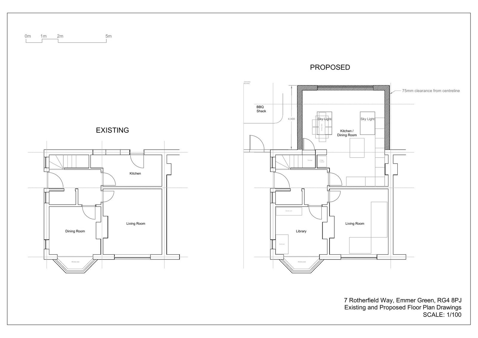
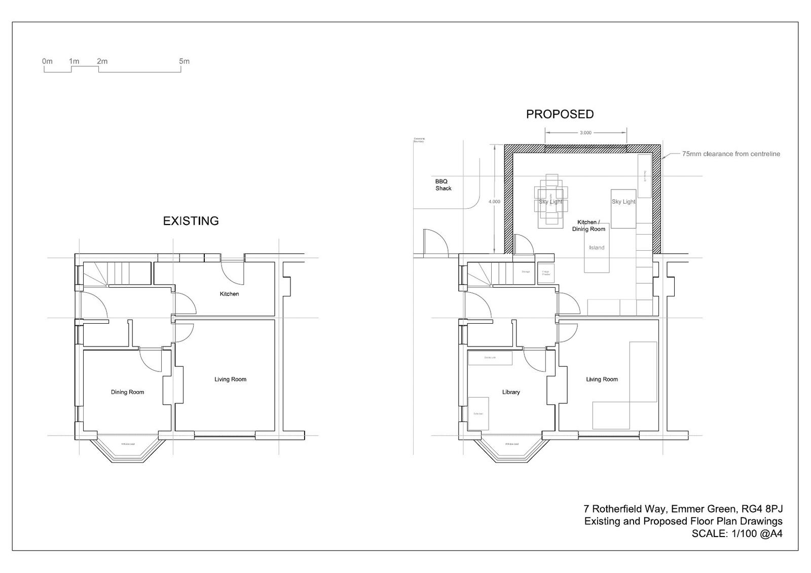
Reference PL/25/0012 Application type Prior approval Part 1 Class A.1(ea): Larger home extension Site address 7 ROTHERFIELD WAY, EMMER GREEN, READING, RG4 8PJ Description Rear extension measuring 4.0m in depth, with a maximum height of 3m, and 3m in height to eaves level. Notification of the construction of an extension under class A Part 1 of Schedule 2 of the Town and Country Planning (General Permitted Development) (England) Order 2015. Status Decision Made Decision Prior Approval Not Required Received Date 06/1/2025 Decision Date 14/2/2025

Documents

Uncategorised
Archived · Original link
Uncategorised
Archived · Original link
Uncategorised
Archived · Original link
Uncategorised
Archived · Original link
Uncategorised
Archived · Original link
Uncategorised
Archived · Original link
Uncategorised
Archived · Original link
Uncategorised
Archived · Original link
Uncategorised
Archived · Original link
Uncategorised
Archived · Original link

Have your say

Your comment matters. Councils must consider every representation that raises material planning considerations.

Write a comment