← Reading Borough Council

Status

Pending New housing
Received
Not recorded
New homes
1

Full proposal

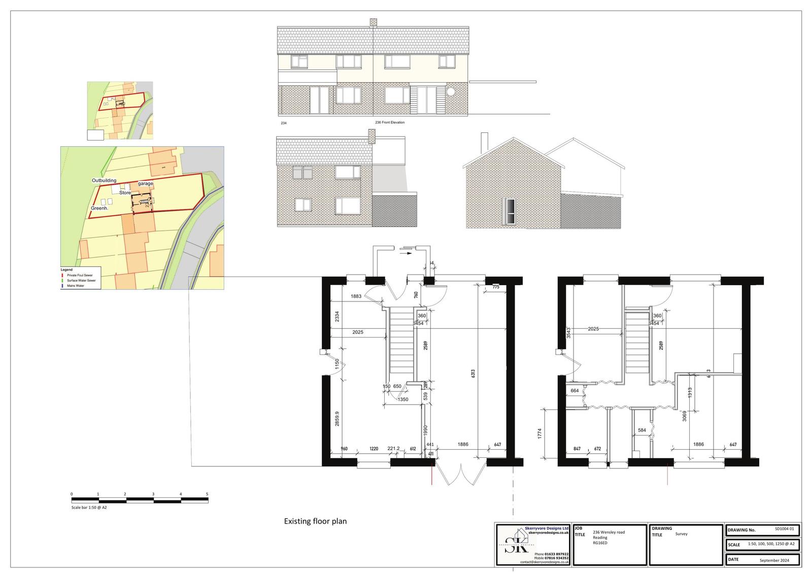
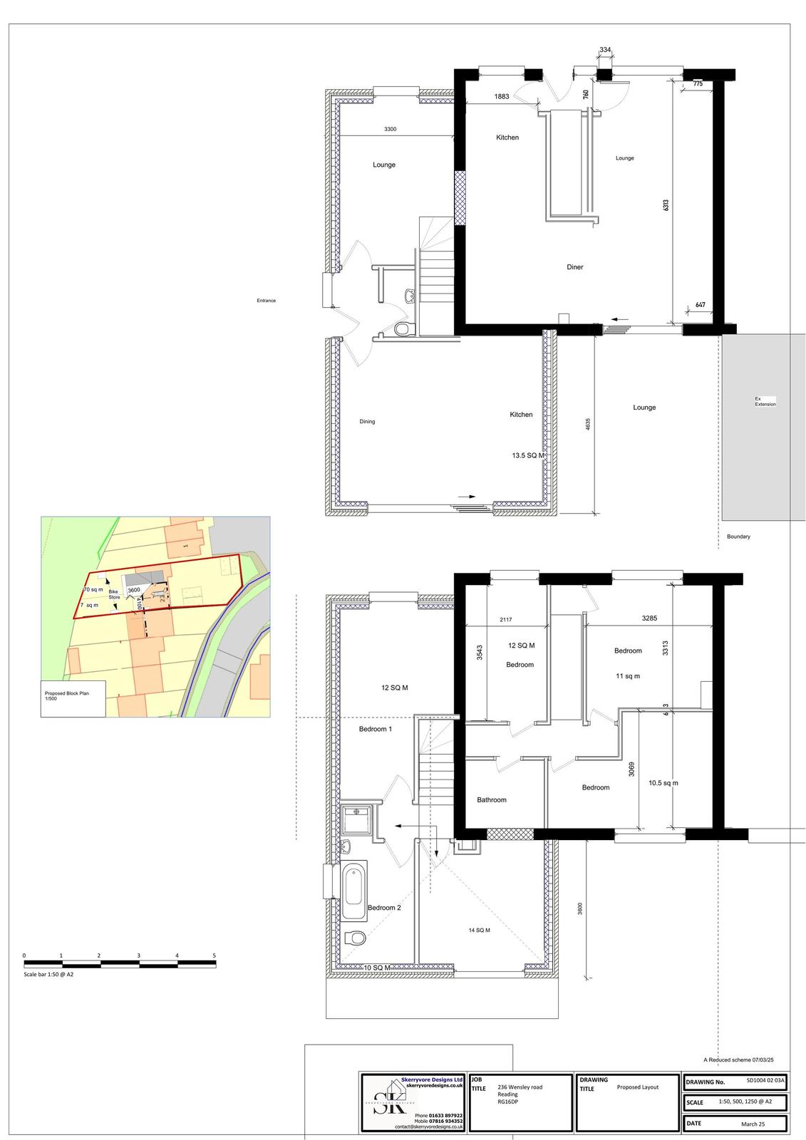
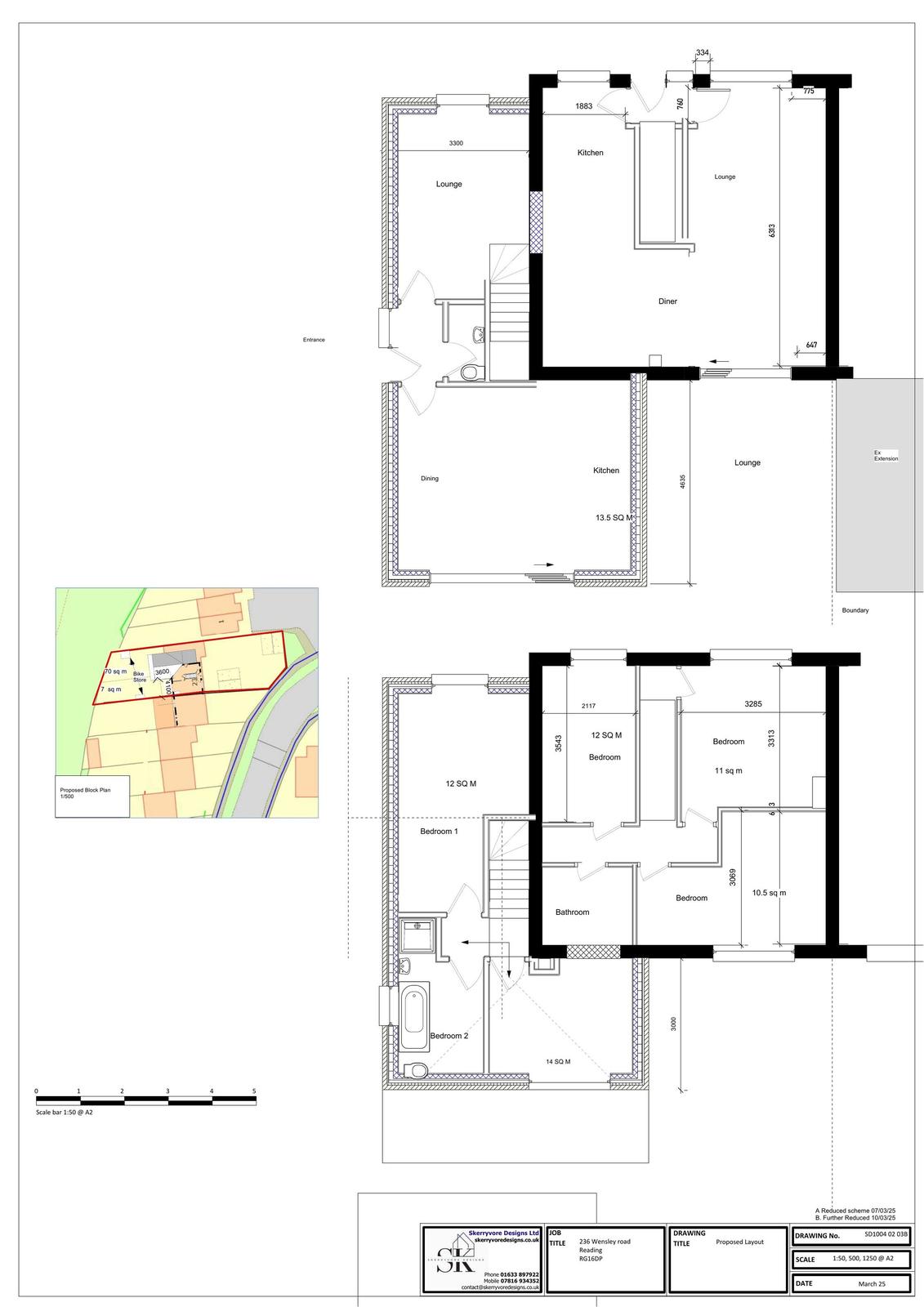
Reference PL/25/0059 Application type Full planning permission Site address 236 WENSLEY ROAD, READING, RG1 6DP Description 1x new 3-bedroom dwelling and two-storey wraparound extension with associated parking Status Decision Made Decision Refuse Received Date 13/1/2025 Decision Date 12/3/2025

Documents

Uncategorised
Archived · Original link
Uncategorised
Archived · Original link
Uncategorised
Archived · Original link
Uncategorised
Archived · Original link
Uncategorised
Archived · Original link
Uncategorised
Archived · Original link
Uncategorised
Archived · Original link
Uncategorised
Archived · Original link
Uncategorised
Archived · Original link
Uncategorised
Archived · Original link
Uncategorised
Archived · Original link
Uncategorised
Archived · Original link
Uncategorised
Archived · Original link
Uncategorised
Archived · Original link
Uncategorised
Archived · Original link
Uncategorised
Archived · Original link
Uncategorised
Archived · Original link
Uncategorised
Archived · Original link
Uncategorised
Archived · Original link
Uncategorised
Archived · Original link

Have your say

Your comment matters. Councils must consider every representation that raises material planning considerations.

Write a comment