← Reading Borough Council

Status

Pending House extension
Received
Not recorded
New homes
0

Full proposal

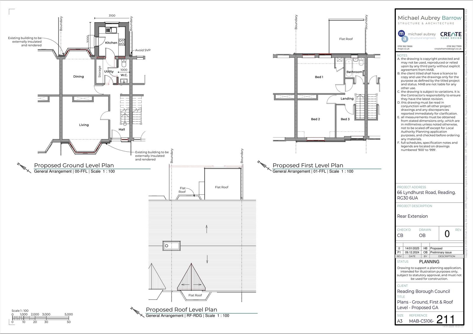
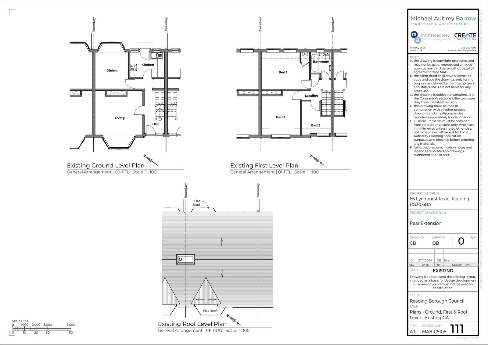
Reference PL/25/0093 Application type Householder planning permission Site address 66 LYNDHURST ROAD, TILEHURST, READING, RG30 6UA Description Single storey rear extension and renovation of existing dwelling (Part Retrospective). Status Decision Made Decision Approve with Conditions Received Date 20/1/2025 Decision Date 08/4/2025

Documents

Uncategorised
Archived · Original link
Uncategorised
Archived · Original link
Uncategorised
Archived · Original link
Uncategorised
Archived · Original link
Uncategorised
Archived · Original link
Uncategorised
Archived · Original link
Uncategorised
Archived · Original link
Uncategorised
Archived · Original link

Have your say

Your comment matters. Councils must consider every representation that raises material planning considerations.

Write a comment