← Reading Borough Council

Status

Pending House extension
Received
Not recorded
New homes
0

Full proposal

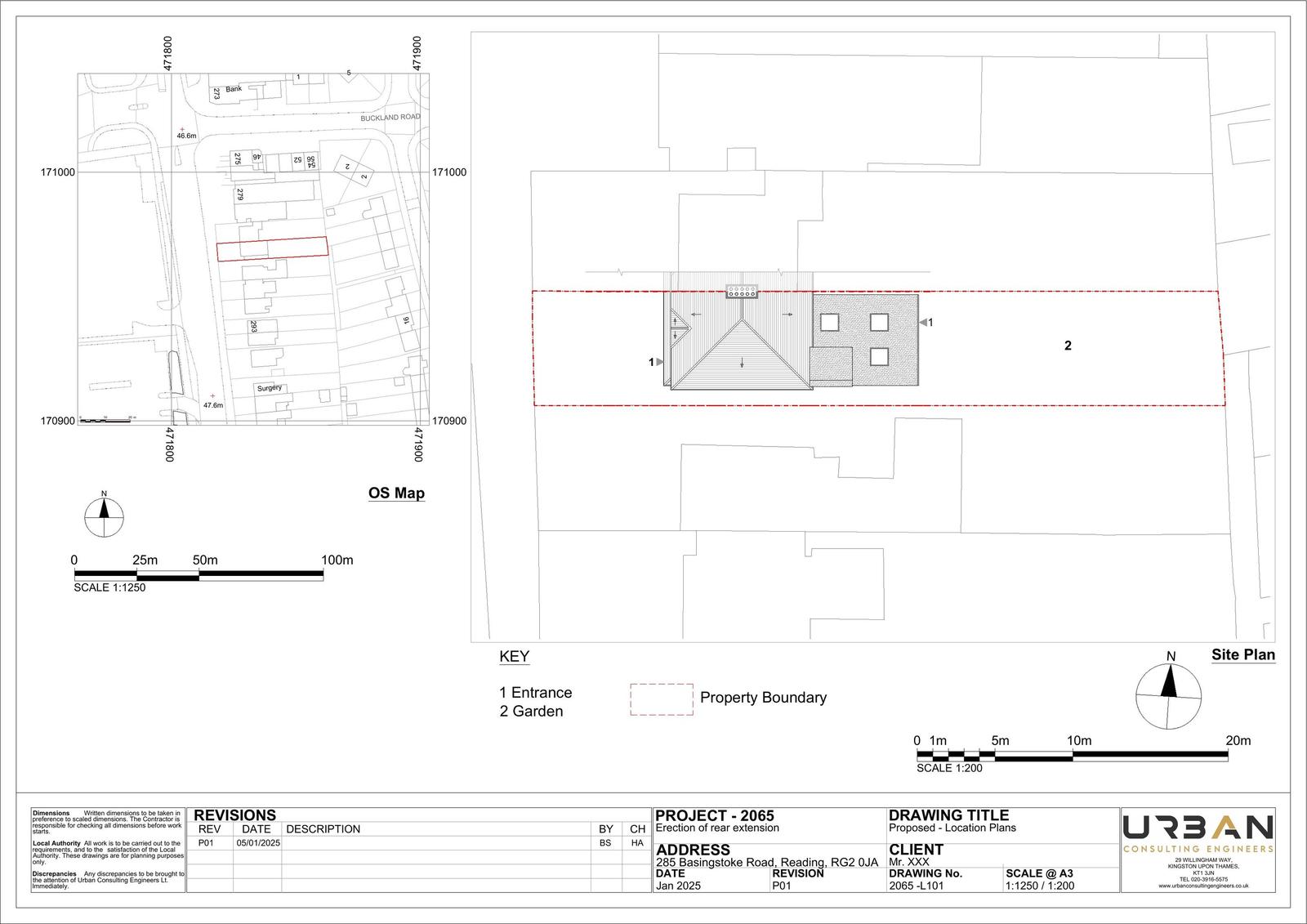
Reference PL/25/0136 Application type Prior approval Part 1 Class A.1(ea): Larger home extension Site address 285 BASINGSTOKE ROAD, READING, RG2 0JA Description Single storey rear extension with a max depth of 7m and height of 2.86m Status Decision Made Decision Refuse Received Date 27/1/2025 Decision Date 07/3/2025

Documents

Uncategorised
Archived · Original link
Uncategorised
Archived · Original link
Uncategorised
Archived · Original link
Uncategorised
Archived · Original link
Uncategorised
Archived · Original link
Uncategorised
Archived · Original link

Have your say

Your comment matters. Councils must consider every representation that raises material planning considerations.

Write a comment