PL/25/0577
Reading Borough Council
Status
Pending
Change of use
Received
Not recorded
New homes
0
Full proposal
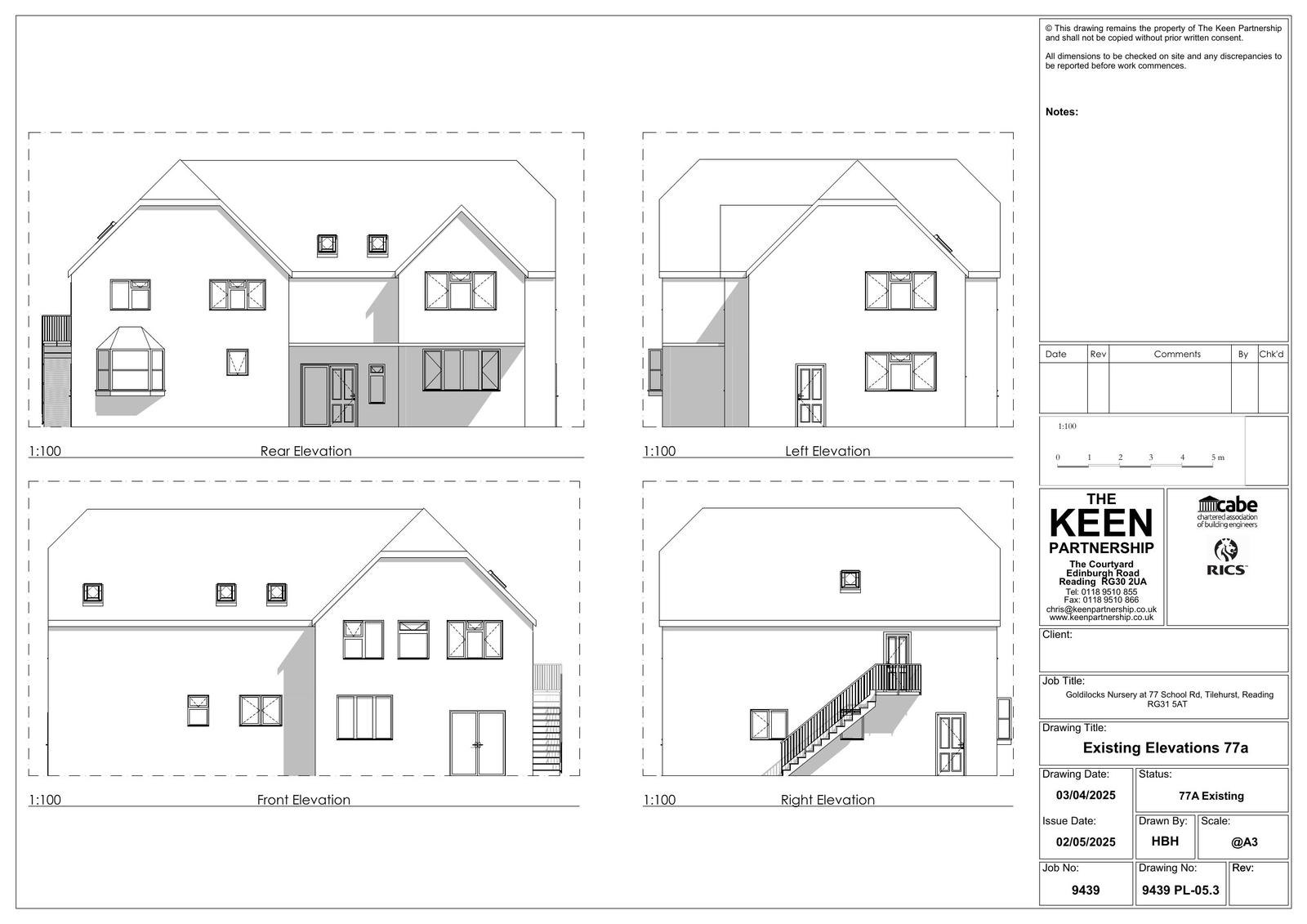
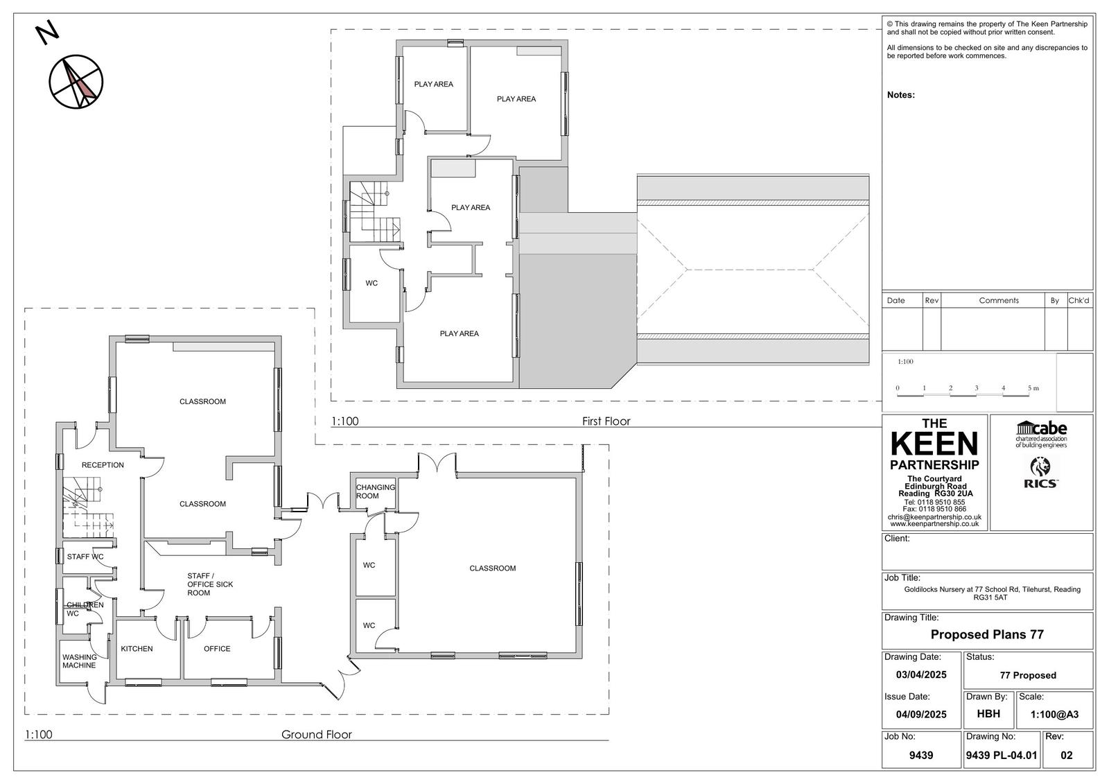
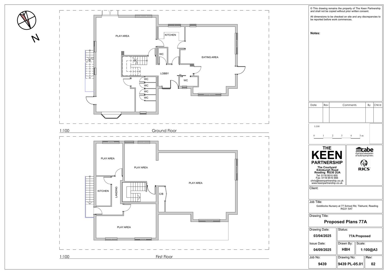
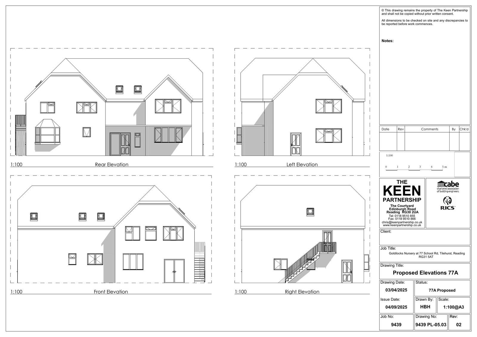
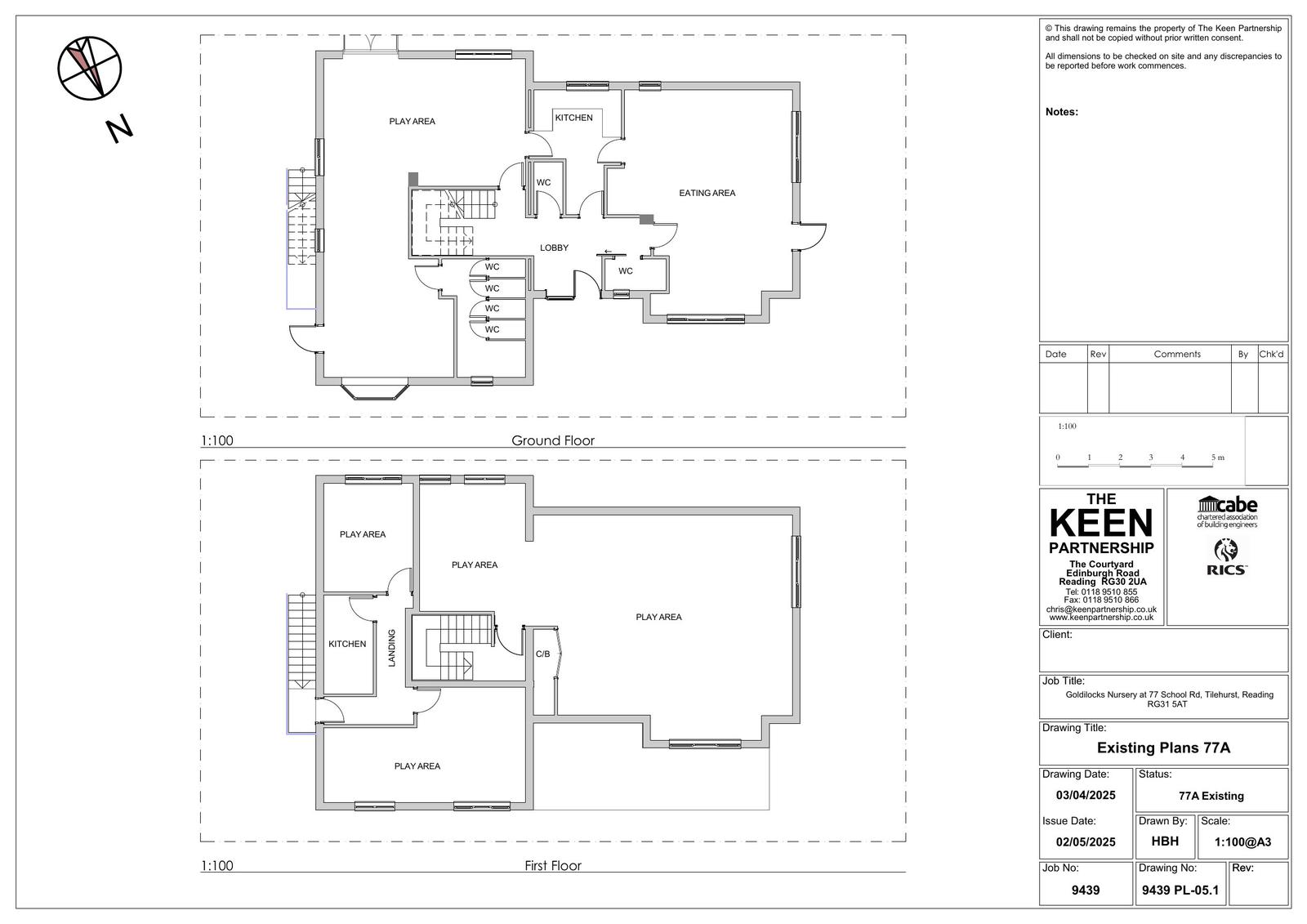
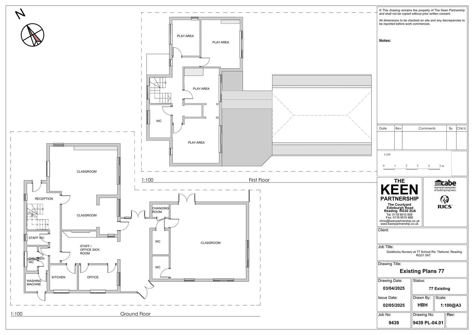
Reference PL/25/0577 Application type Full planning permission Site address Goldilocks Day Nursery, 77 and 77A School Road , Reading, RG31 5AT Description Retrospective change of use from part-residential, part-pre-school/day nursery to pre-school/day nursery (class E(f)) for up to 90 children at any one time, and associated works. Status Decision Made Decision Approve Received Date 14/4/2025 Decision Date 24/10/2025
Documents
Have your say
Your comment matters. Councils must consider every representation that raises material planning considerations.