← Reading Borough Council

Status

Pending House extension
Received
Not recorded
New homes
0

Full proposal

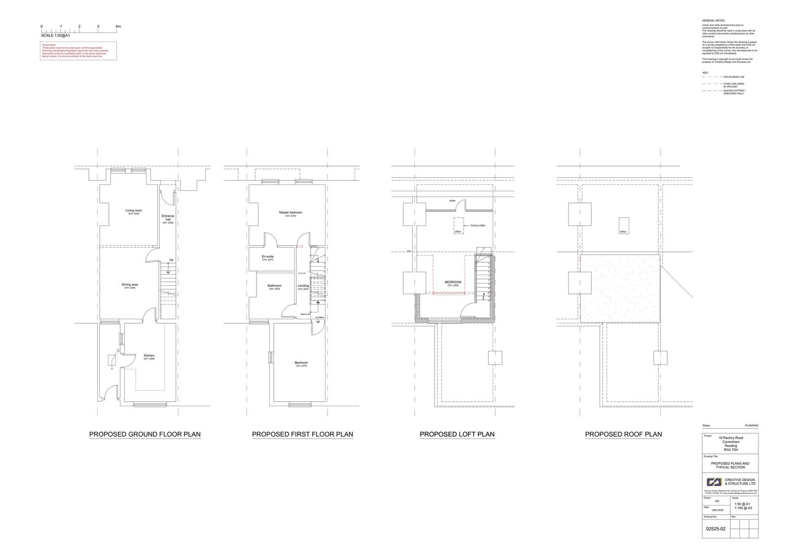
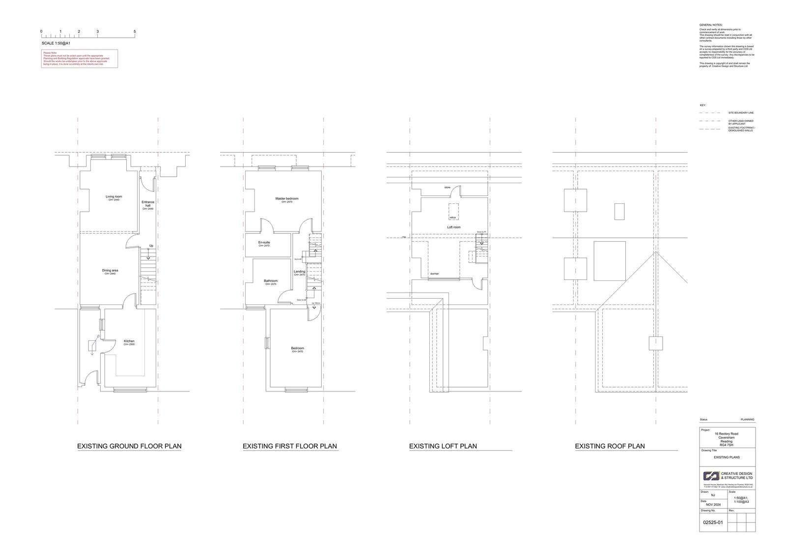
Reference PL/25/0662 Application type Householder planning permission Site address 16 RECTORY ROAD, CAVERSHAM, READING, RG4 7SH Description Loft conversion with rear dormer extension Status Decision Made Decision Approve with Conditions Received Date 01/5/2025 Decision Date

Documents

Uncategorised
Archived · Original link
Uncategorised
Archived · Original link
Uncategorised
Archived · Original link
Uncategorised
Archived · Original link
Uncategorised
Archived · Original link

Have your say

Your comment matters. Councils must consider every representation that raises material planning considerations.

Write a comment