PL/25/0681
Reading Borough Council
Status
Pending
House extension
Received
Not recorded
New homes
0
Full proposal
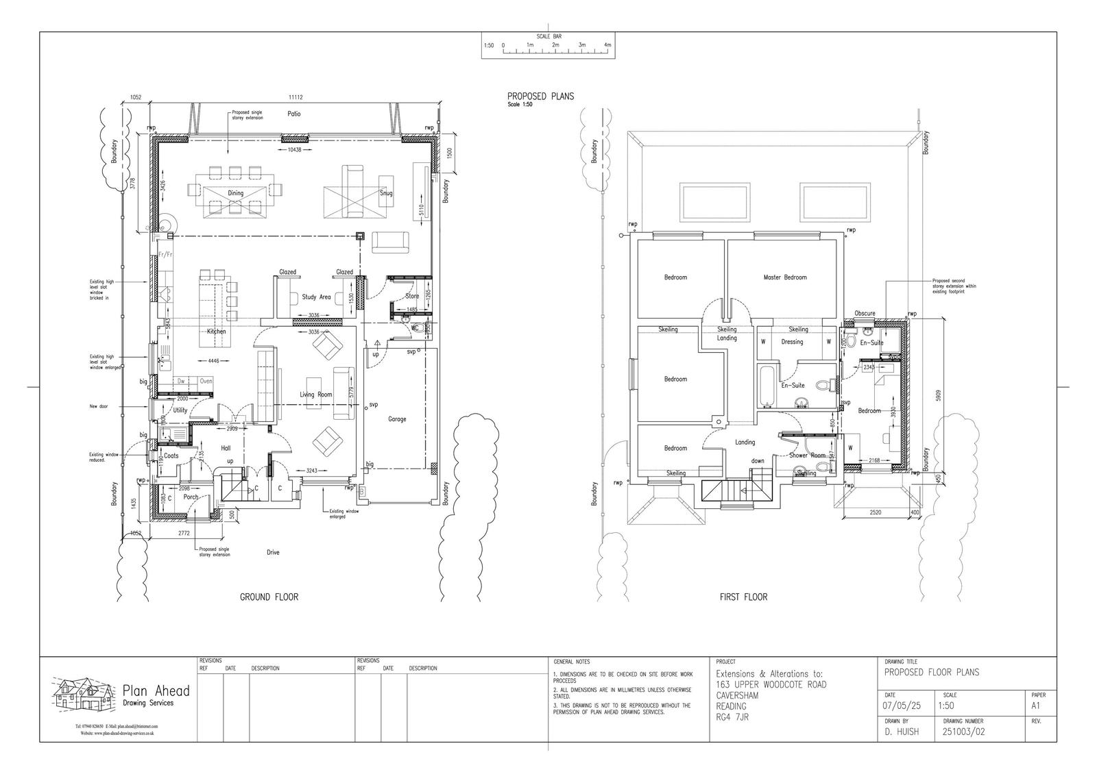
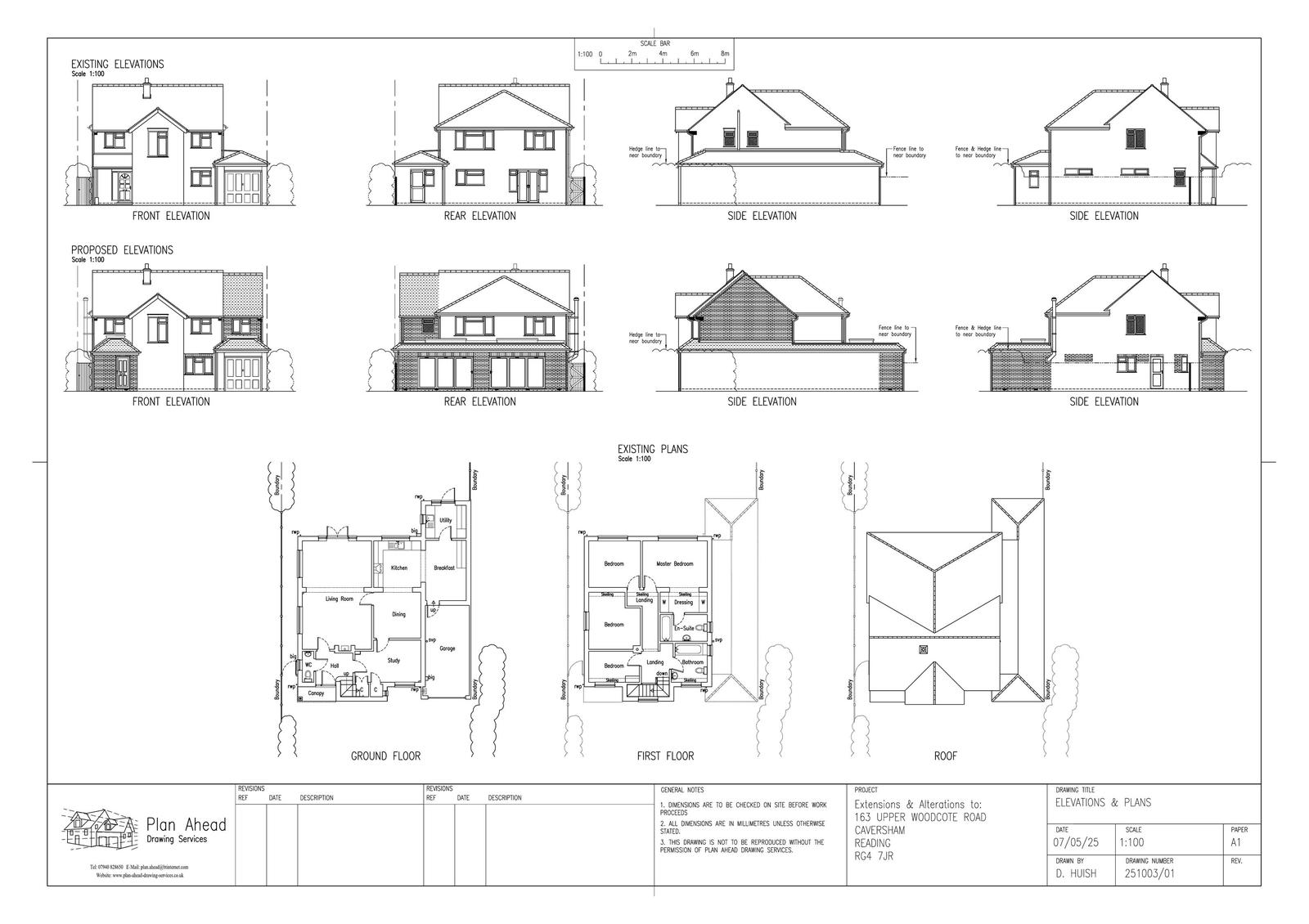
Reference PL/25/0681 Application type Householder planning permission Site address 163 UPPER WOODCOTE ROAD, CAVERSHAM, READING, RG4 7JR Description Front single storey porch extension; New flat top pitched roof to existing attached garage & breakfast area; First floor side extension within the existing ground floor footprint; Single storey rear extension; Alterations to the ground floor fenestration. Status Decision Made Decision Approve with Conditions Received Date 08/5/2025 Decision Date 30/7/2025
Documents
Have your say
Your comment matters. Councils must consider every representation that raises material planning considerations.