← Reading Borough Council

Status

Pending House extension
Received
Not recorded
New homes
0

Full proposal

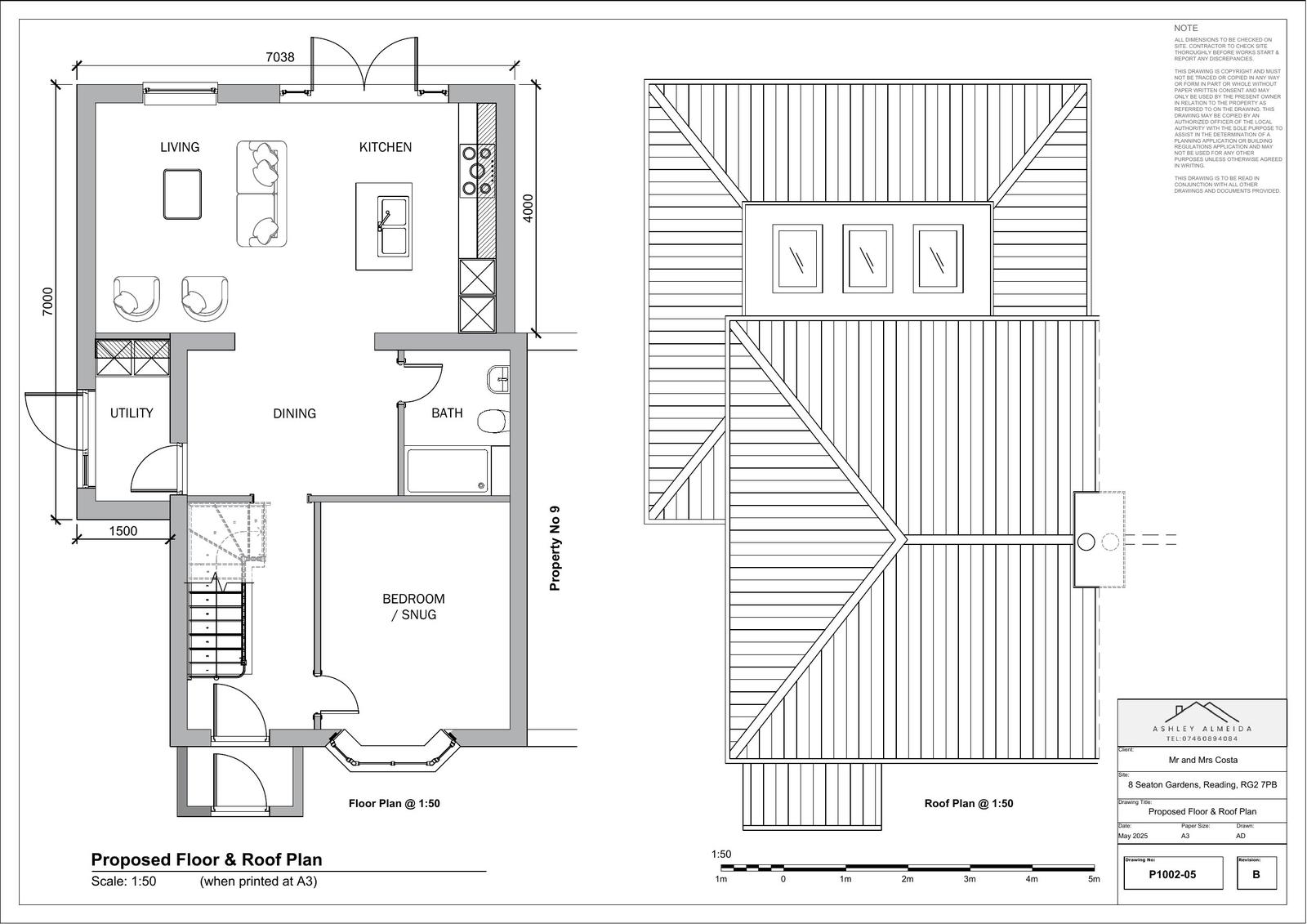
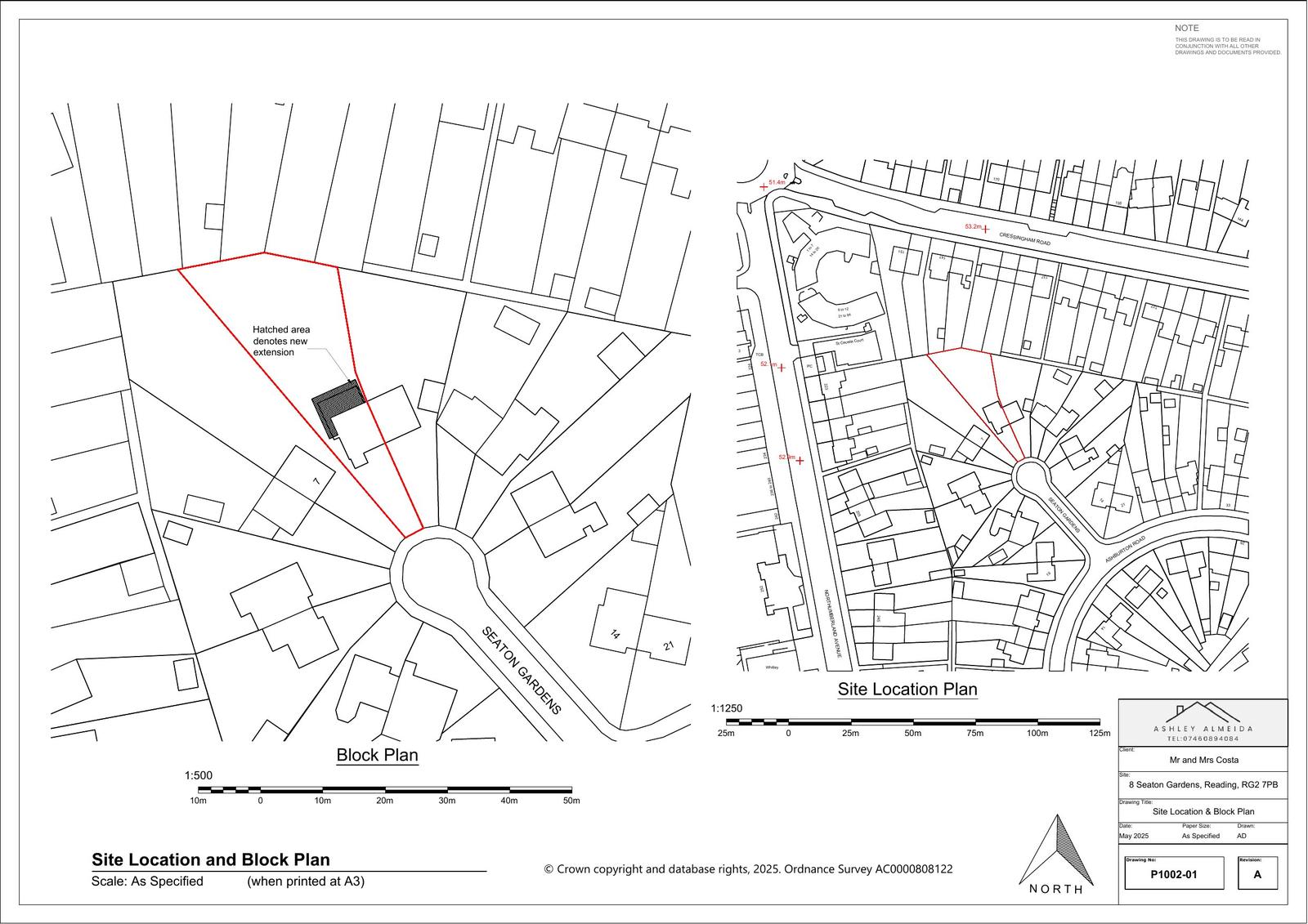
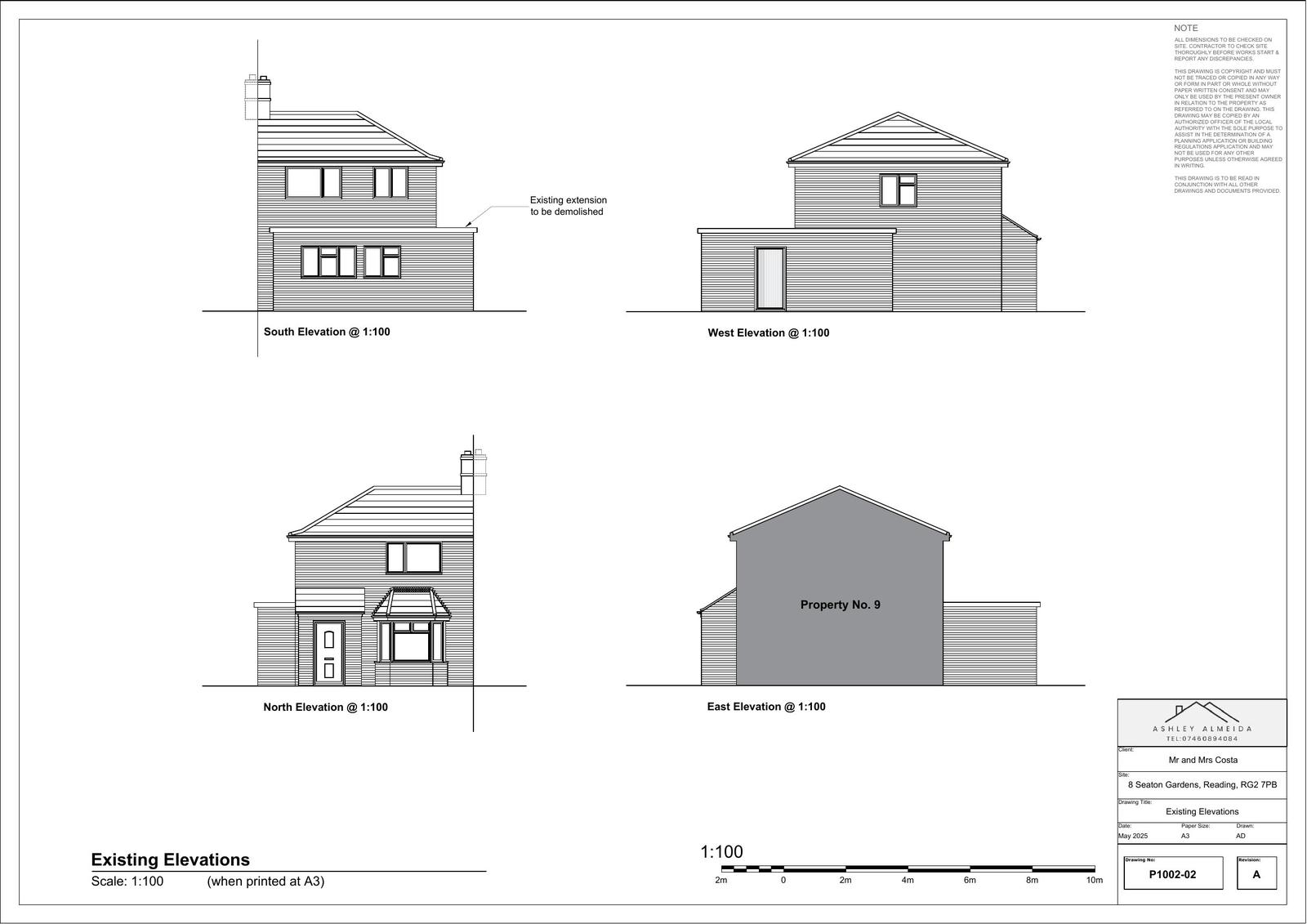
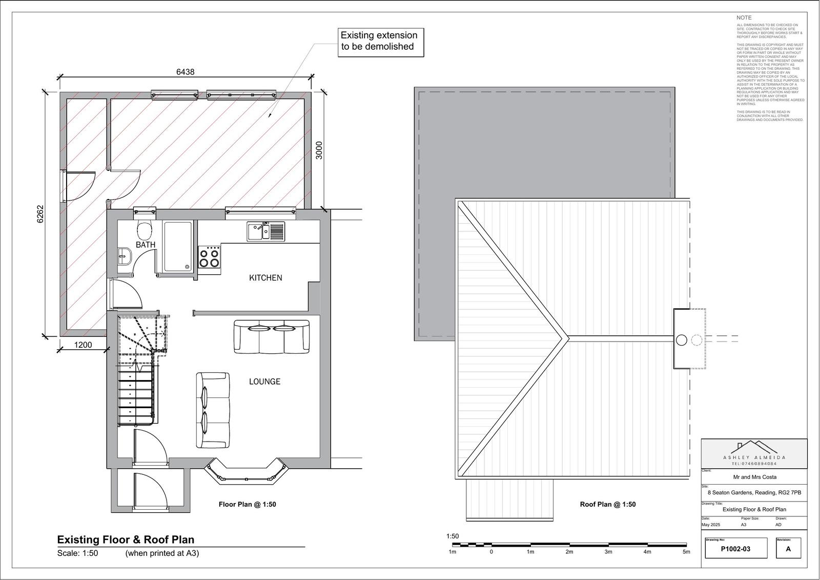
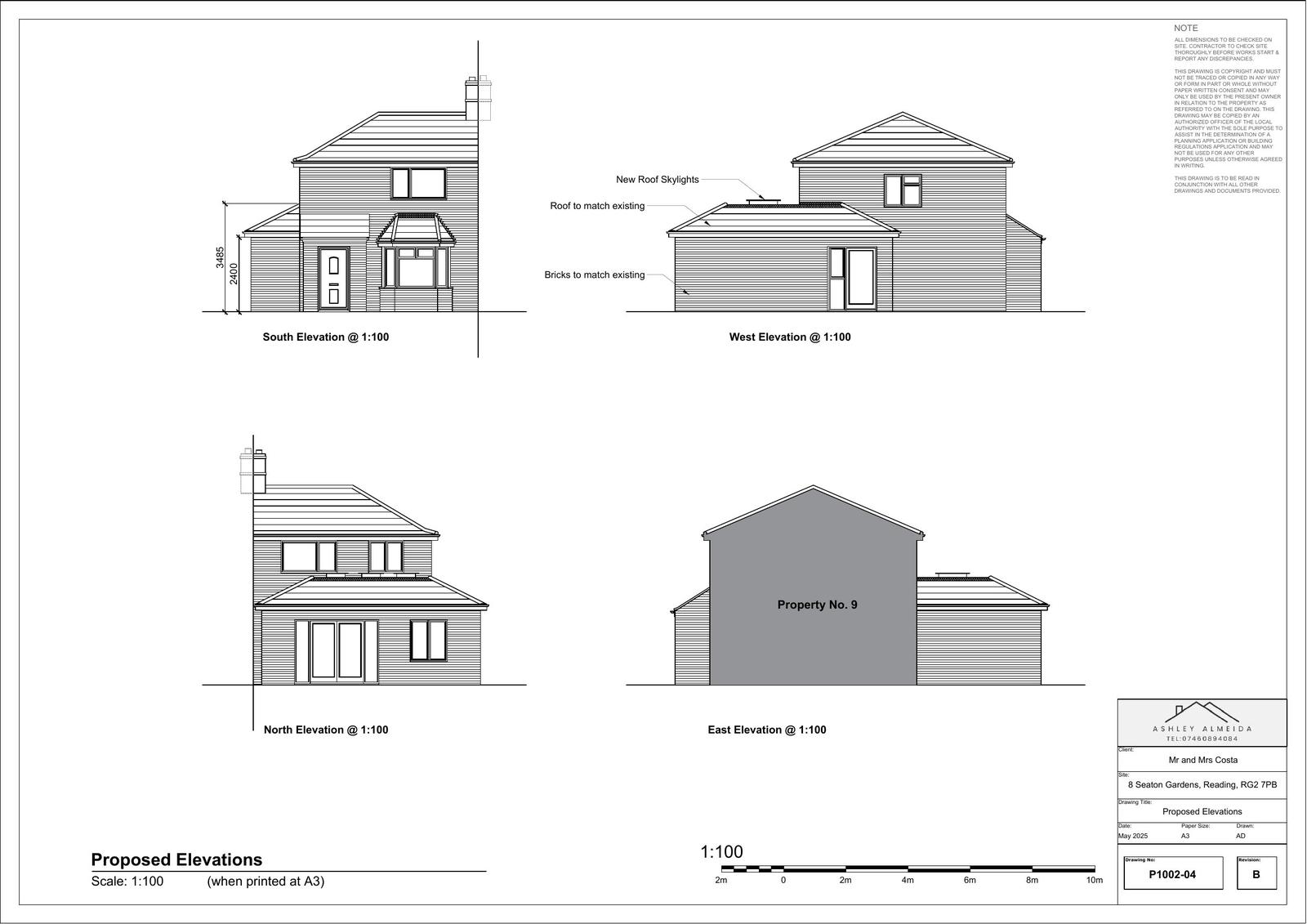
Reference PL/25/0740 Application type Householder planning permission Site address 8 SEATON GARDENS, READING, RG2 7PB Description Demolition of existing extension and erection of new single storey side and rear extension. Status Decision Made Decision Approve Received Date 19/5/2025 Decision Date 07/8/2025

Documents

Uncategorised
Archived · Original link
Uncategorised
Archived · Original link
Uncategorised
Archived · Original link
Uncategorised
Archived · Original link
Uncategorised
Archived · Original link
Uncategorised
Archived · Original link
Uncategorised
Archived · Original link
Uncategorised
Archived · Original link
Uncategorised
Archived · Original link

Have your say

Your comment matters. Councils must consider every representation that raises material planning considerations.

Write a comment