← Reading Borough Council

Status

Pending Commercial
Received
Not recorded
New homes
0

Full proposal

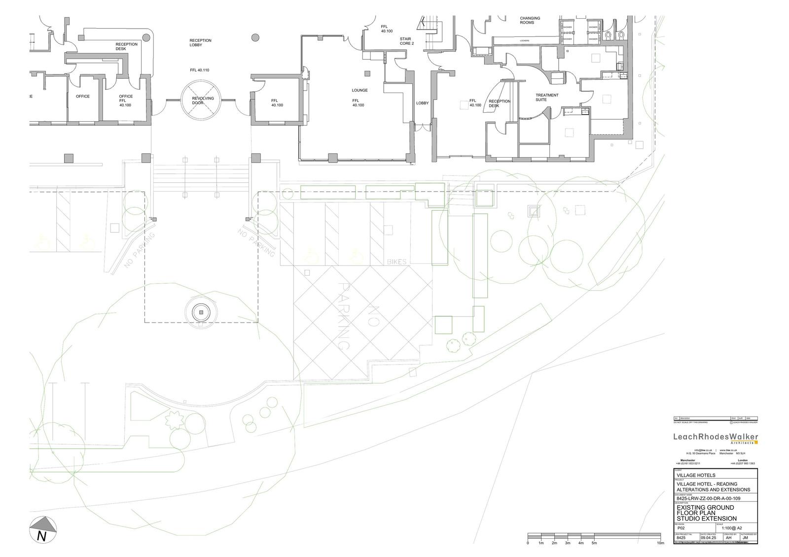
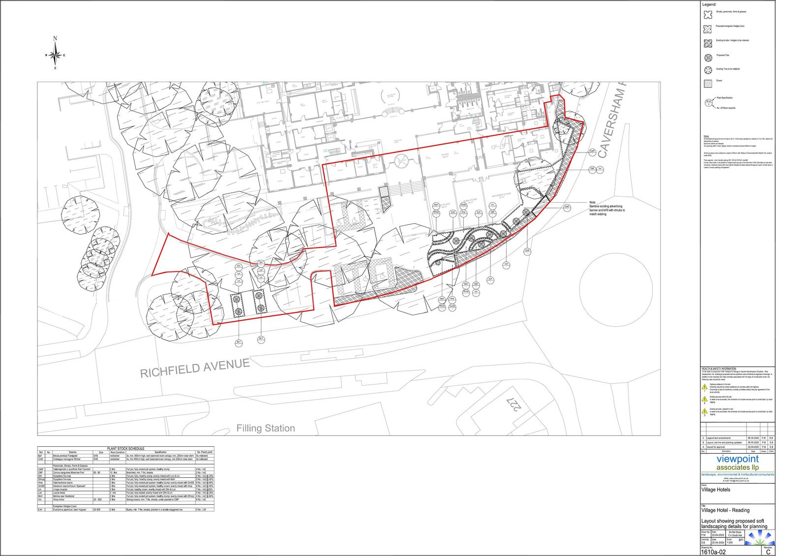
Reference PL/25/0759 Application type Full planning permission Site address CROWNE PLAZA READING, RICHFIELD AVENUE, READING, RG1 8BD Description Full planning application for a single storey, flat roof extension at the ground floor level to the front of existing hotel to create extension to fitness suite Health & Wellness Club and replacement of canopy over to main entrance and associated landscaping and parking. Status Decision Made Decision Approve with Conditions Received Date 21/5/2025 Decision Date 01/8/2025

Documents

Uncategorised
Archived · Original link
Uncategorised
Archived · Original link
Uncategorised
Archived · Original link
Uncategorised
Archived · Original link
Uncategorised
Archived · Original link
Uncategorised
Archived · Original link
Uncategorised
Archived · Original link
Uncategorised
Archived · Original link
Uncategorised
Archived · Original link
Uncategorised
Archived · Original link
Uncategorised
Archived · Original link
Uncategorised
Archived · Original link
Uncategorised
Archived · Original link
Uncategorised
Archived · Original link
Uncategorised
Archived · Original link
Uncategorised
Archived · Original link
Uncategorised
Archived · Original link
Uncategorised
Archived · Original link
Uncategorised
Archived · Original link
Uncategorised
Archived · Original link

Have your say

Your comment matters. Councils must consider every representation that raises material planning considerations.

Write a comment