PL/25/0761
Reading Borough Council
Status
Pending
House extension
Received
Not recorded
New homes
0
Full proposal
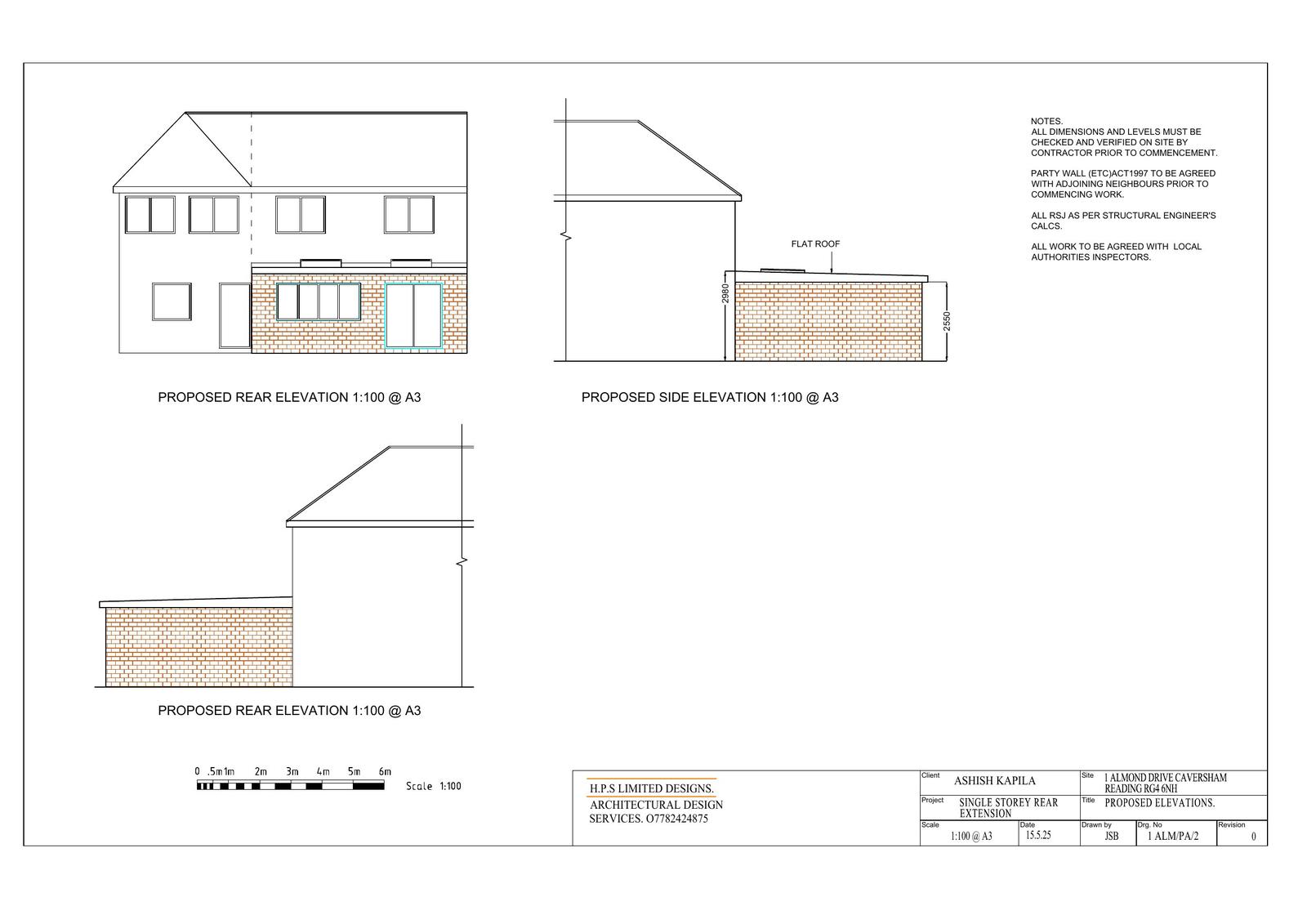
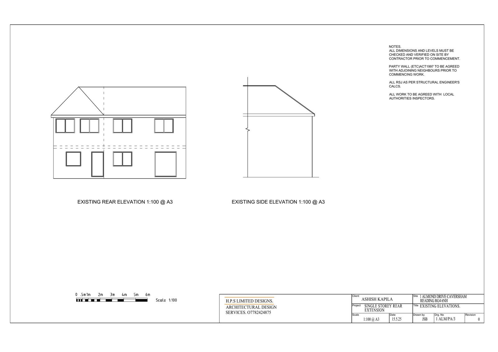
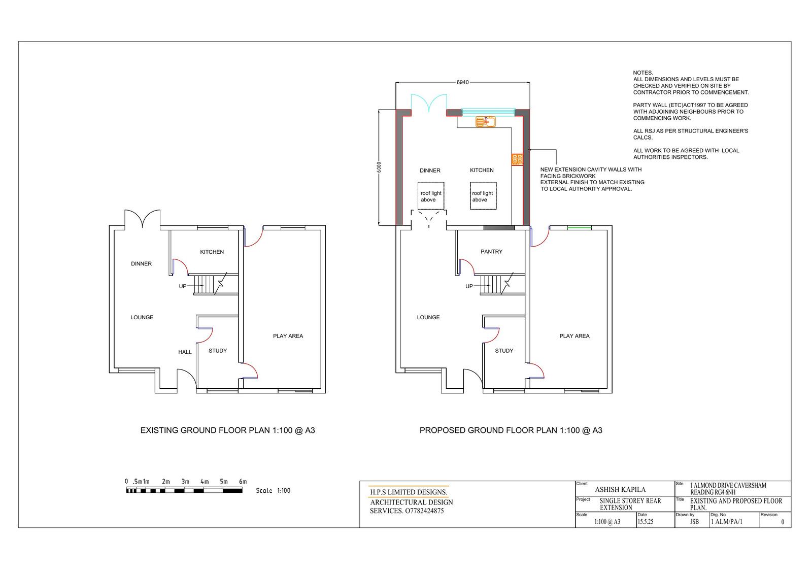
Reference PL/25/0761 Application type Prior approval Part 1 Class A.1(ea): Larger home extension Site address 1 ALMOND DRIVE, CAVERSHAM, READING, RG4 6NH Description Rear extension measuring 6.0m in depth, with a maximum height of 3.0m, and 2.55m in height to eaves level. Notification of the construction of an extension under class A Part 1 of Schedule 2 of the Town and Country Planning (General Permitted Development) (England) Order 2015. Status Decision Made Decision Prior Approval Not Required Received Date 21/5/2025 Decision Date 02/7/2025
Documents
Have your say
Your comment matters. Councils must consider every representation that raises material planning considerations.