← Reading Borough Council

Status

Pending New housing
Received
Not recorded
New homes
20

Full proposal

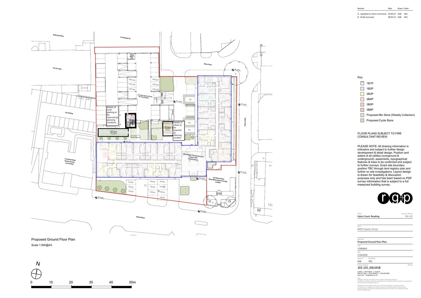
Reference PL/25/0769 Application type Prior approval Part 20 Class AA: New dwellinghouses on detached buildings in commercial or mixed use Site address EATON COURT, 104-112 OXFORD ROAD, READING, RG1 7FU Description Application for prior approval of a proposed: 20 New dwellinghouses on detached buildings in commercial or mixed use - Town and Country Planning (General Permitted Development) (England) Order 2015 (as amended) - Schedule 2, Part 20, Class AA Status Decision Made Decision Refuse Received Date 23/5/2025 Decision Date 16/7/2025

Documents

Uncategorised
Archived · Original link
Uncategorised
Archived · Original link
Uncategorised
Archived · Original link
Uncategorised
Archived · Original link
Uncategorised
Archived · Original link
Uncategorised
Archived · Original link
Uncategorised
Archived · Original link
Uncategorised
Archived · Original link
Uncategorised
Archived · Original link
Uncategorised
Archived · Original link
Uncategorised
Archived · Original link
Uncategorised
Archived · Original link
Uncategorised
Archived · Original link
Uncategorised
Archived · Original link

Have your say

Your comment matters. Councils must consider every representation that raises material planning considerations.

Write a comment