← Reading Borough Council

Status

Pending Change of use
Received
Not recorded
New homes
52

Full proposal

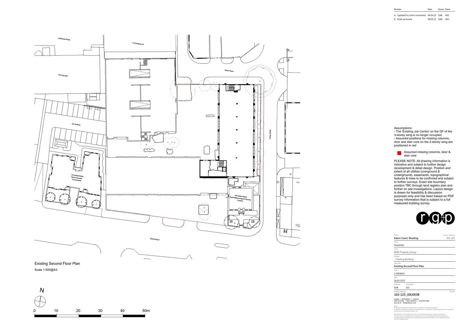
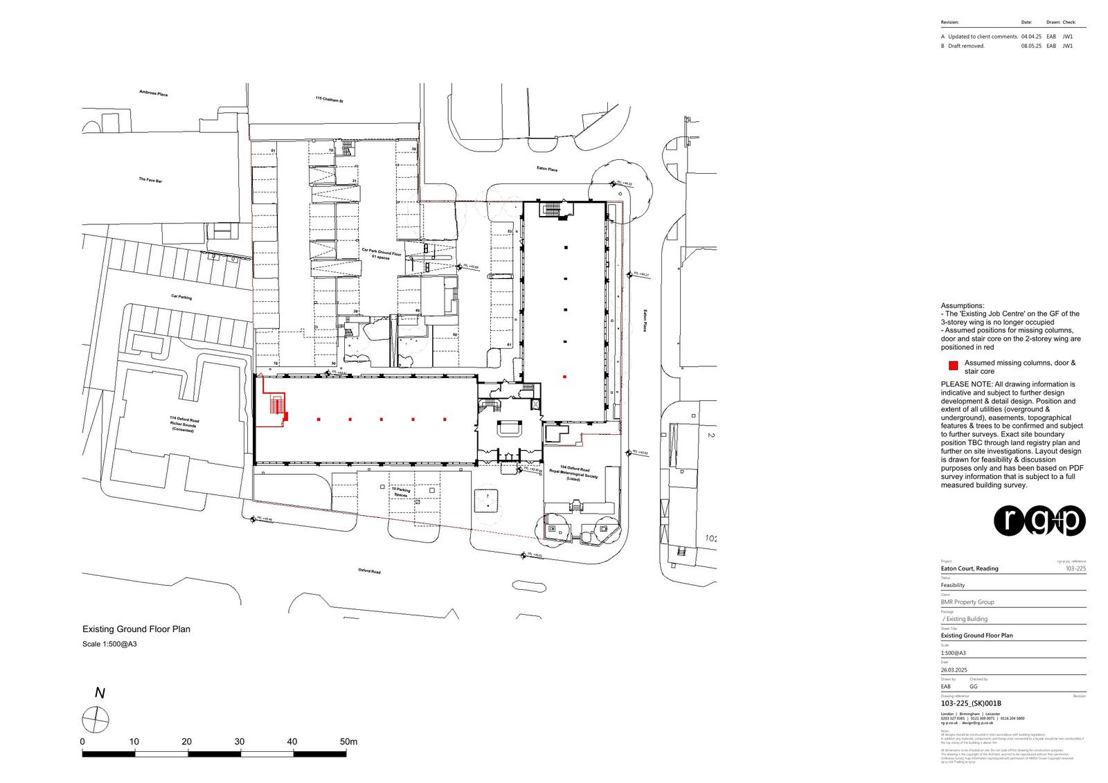
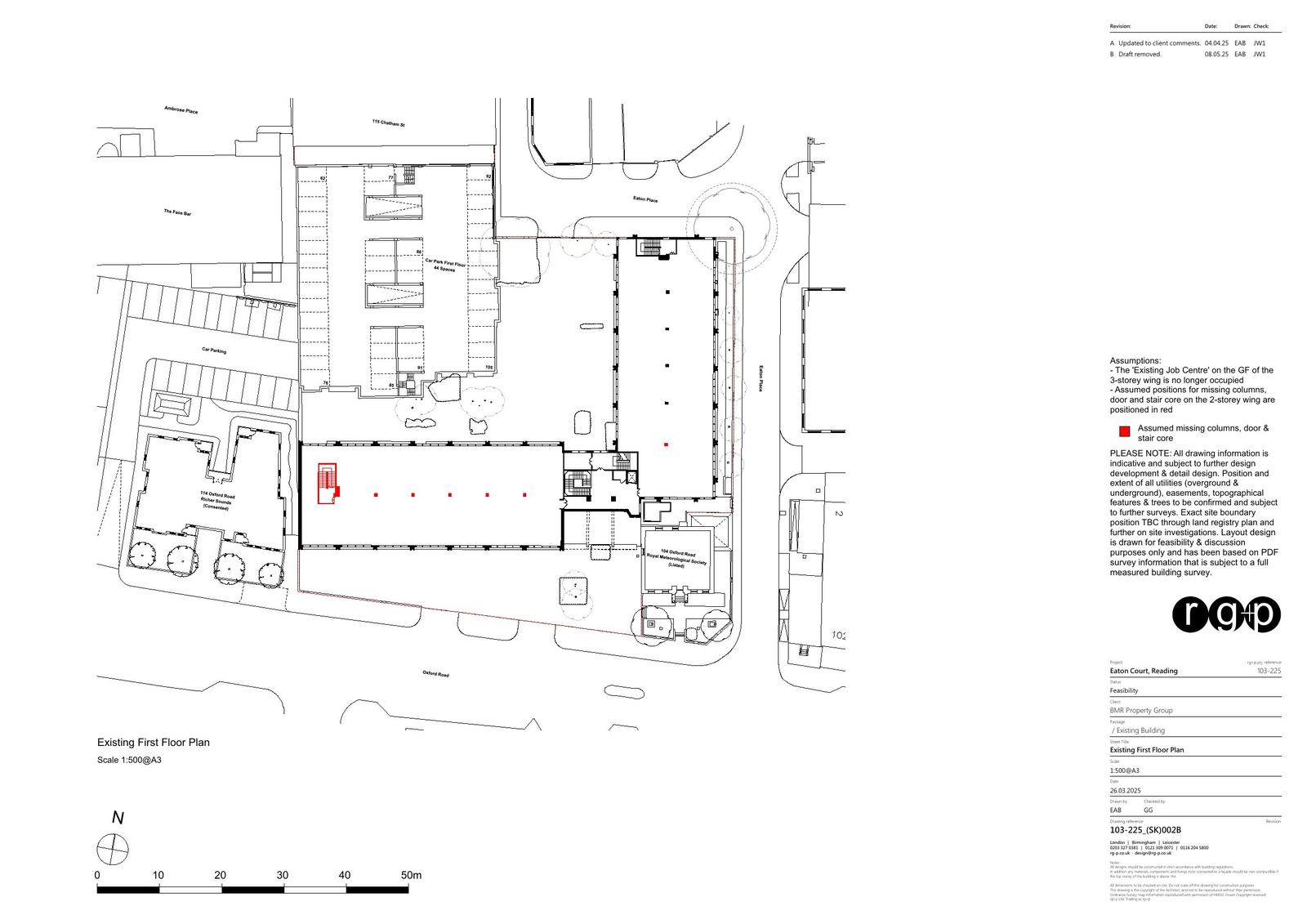
Reference PL/25/0770 Application type Prior approval Part 3 Class MA: Commercial, business and service uses to dwellinghouses Site address EATON COURT, 104-112 OXFORD ROAD, READING, RG1 7FU Description Change of use of building from Class E (offices) to C3 (dwelling houses) to comprise 52 dwelling units. Prior Notification under Class MA, Part 3 of Schedule 2 of the Town and Country Planning (General Permitted Development) Order 2015. Status Decision Made Decision Rejected Received Date 23/5/2025 Decision Date 16/7/2025

Documents

Uncategorised
Archived · Original link
Uncategorised
Archived · Original link
Uncategorised
Archived · Original link
Uncategorised
Archived · Original link
Uncategorised
Archived · Original link
Uncategorised
Archived · Original link
Uncategorised
Archived · Original link
Uncategorised
Archived · Original link
Uncategorised
Archived · Original link
Uncategorised
Archived · Original link
Uncategorised
Archived · Original link
Uncategorised
Archived · Original link
Uncategorised
Archived · Original link
Uncategorised
Archived · Original link

Have your say

Your comment matters. Councils must consider every representation that raises material planning considerations.

Write a comment