← Reading Borough Council

Status

Pending Change of use
Received
Not recorded
New homes
0

Full proposal

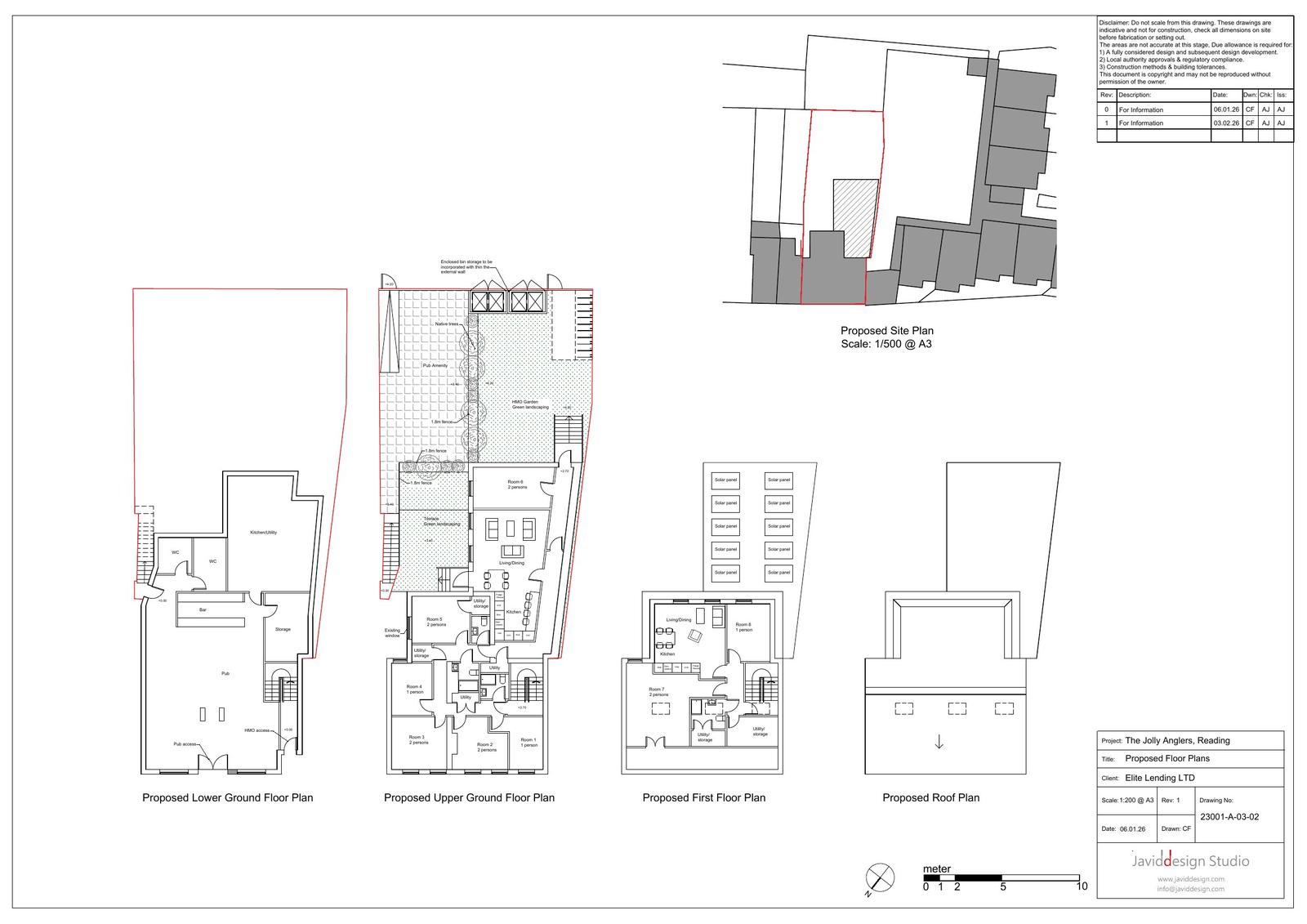
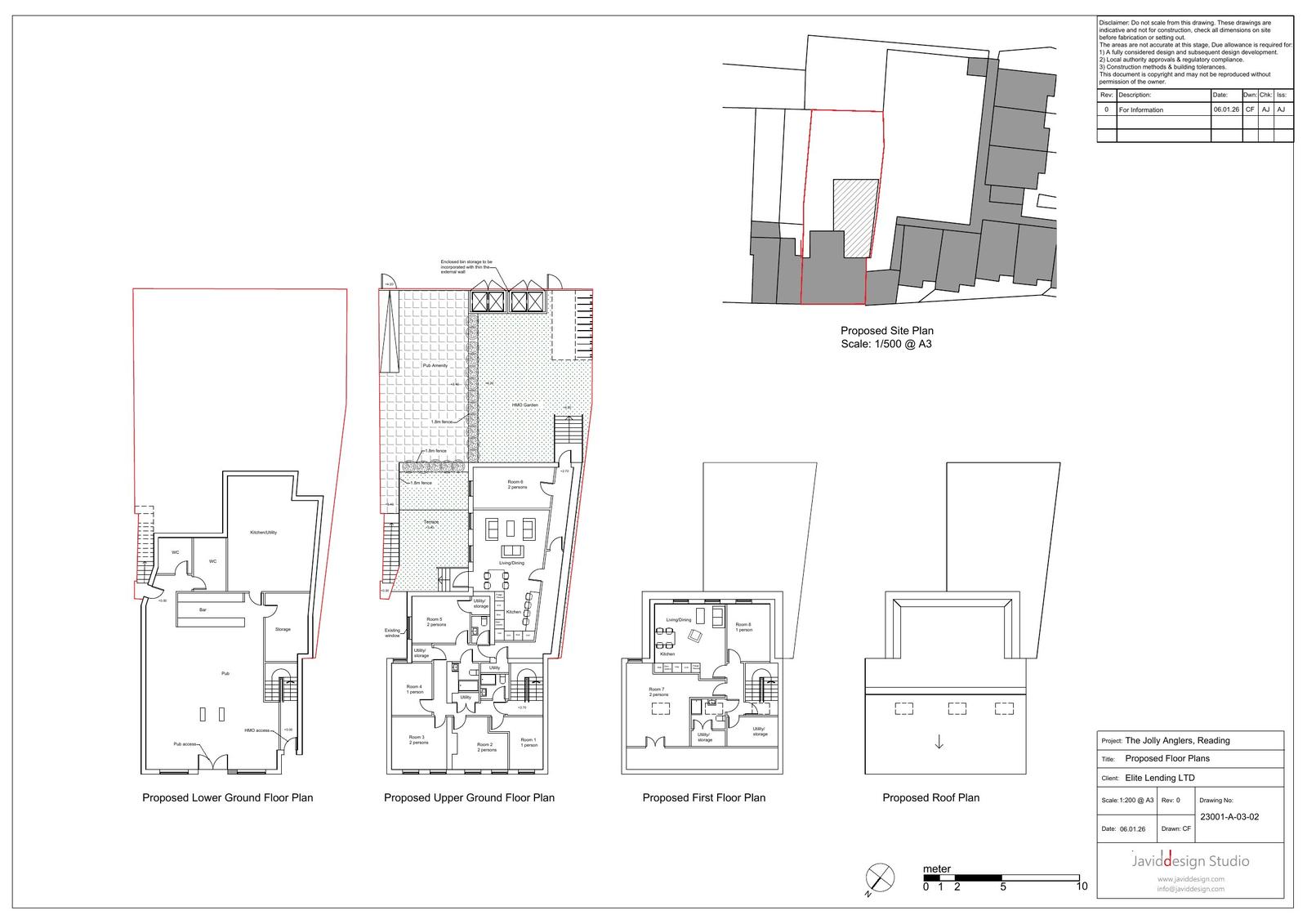
Reference PL/26/0016 Application type Full planning permission Site address JOLLY ANGLERS PH, KENNET SIDE, READING, RG1 3EA Description Erection of a part single part two storey rear extension, raising of ridge height and change of use of upper floors to an 8 bed large Sui Generis HMO and retention of pub at ground floor, with associated external works to create gardens, bin and cycle storage and new rear pedestrian gate (amended). Status Under Consultation Decision Received Date 08/1/2026 Decision Date

Documents

Uncategorised
Archived · Original link
Uncategorised
Archived · Original link
Uncategorised
Archived · Original link
Uncategorised
Archived · Original link
Uncategorised
Archived · Original link
Uncategorised
Archived · Original link
Uncategorised
Archived · Original link
Uncategorised
Archived · Original link
Uncategorised
Archived · Original link
Uncategorised
Archived · Original link
Uncategorised
Archived · Original link
Uncategorised
Archived · Original link
Uncategorised
Archived · Original link

Have your say

Your comment matters. Councils must consider every representation that raises material planning considerations.

Write a comment