← Reading Borough Council

Status

Pending House extension
Received
Not recorded
New homes
0

Full proposal

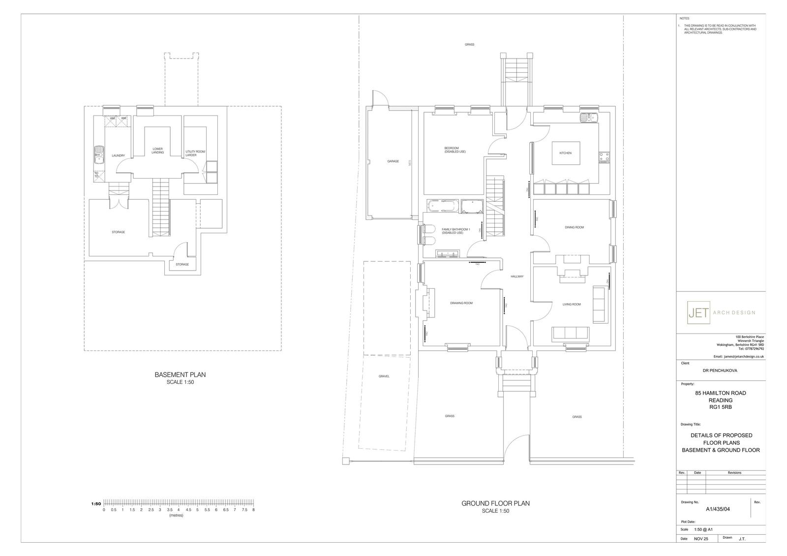
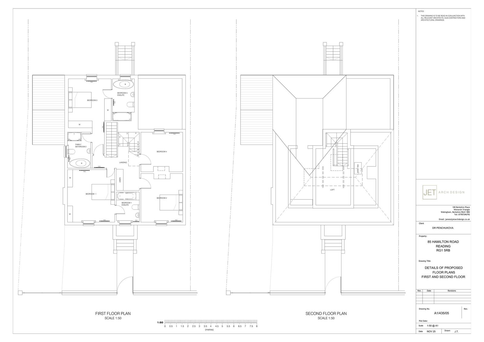
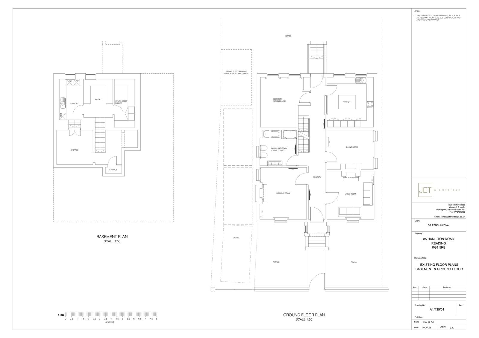
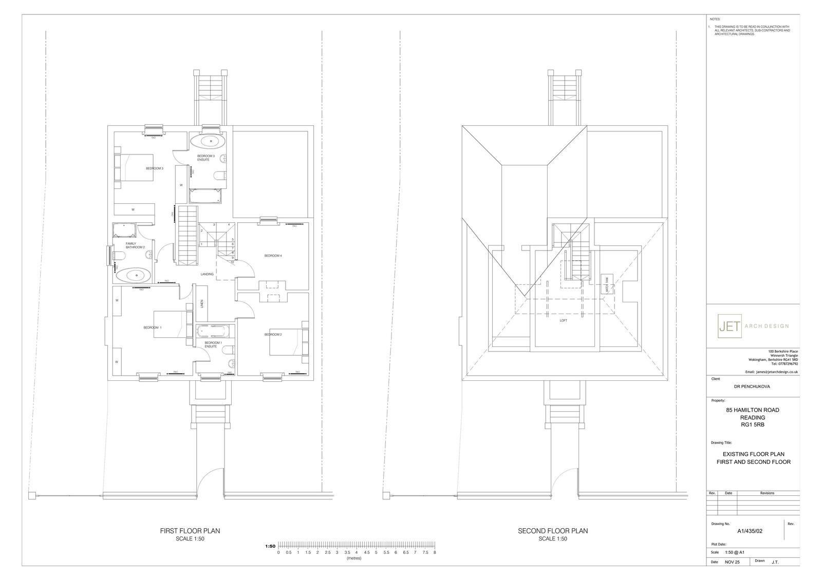
Reference PL/26/0128 Application type Householder planning permission Site address 85 HAMILTON ROAD, READING, RG1 5RB Description Erection of a single storey single garage to adjoin previously approved rear extension Status Under Consultation Decision Received Date 02/2/2026 Decision Date

Documents

Uncategorised
Archived · Original link
Uncategorised
Archived · Original link
Uncategorised
Archived · Original link
Uncategorised
Archived · Original link
Uncategorised
Archived · Original link
Uncategorised
Archived · Original link
Uncategorised
Archived · Original link
Uncategorised
Archived · Original link
Uncategorised
Archived · Original link
Uncategorised
Archived · Original link
Uncategorised
Archived · Original link

Have your say

Your comment matters. Councils must consider every representation that raises material planning considerations.

Write a comment