← Reading Borough Council

Status

Pending House extension
Received
Not recorded
New homes
0

Full proposal

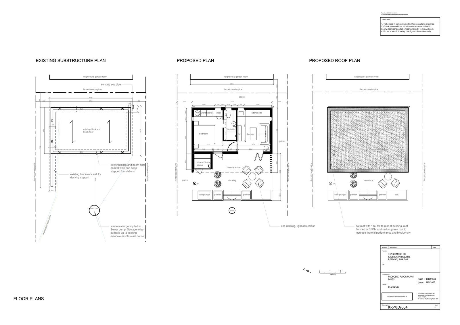
Reference PL/26/0148 Application type Full planning permission Site address 332 KIDMORE ROAD, CAVERSHAM, READING, RG4 7NG Description Erection of a single-storey, timber-clad ancillary residential granny annexe within the rear garden. Status Closed Decision Received Date 03/2/2026 Decision Date

Documents

Uncategorised
Archived · Original link
Uncategorised
Archived · Original link
Uncategorised
Archived · Original link
Uncategorised
Archived · Original link
Uncategorised
Archived · Original link
Uncategorised
Archived · Original link
Uncategorised
Archived · Original link
Uncategorised
Archived · Original link

Have your say

Your comment matters. Councils must consider every representation that raises material planning considerations.

Write a comment