← Reading Borough Council

Status

Pending House extension
Received
Not recorded
New homes
0

Full proposal

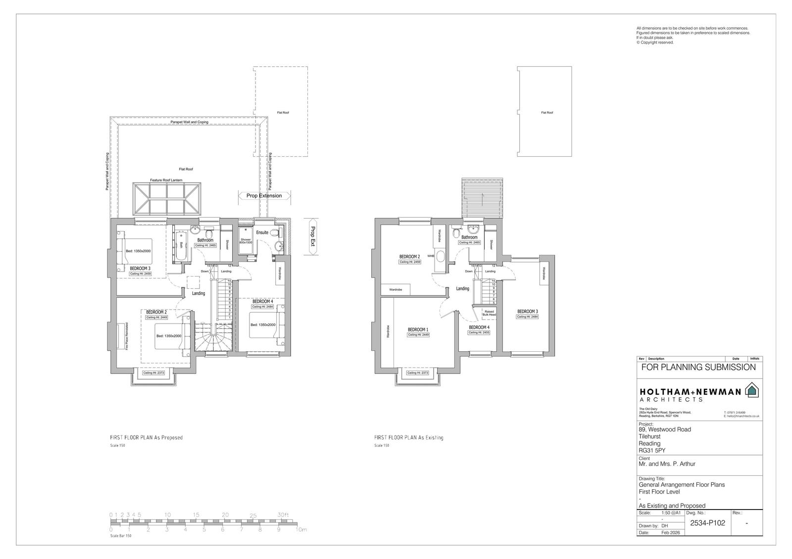
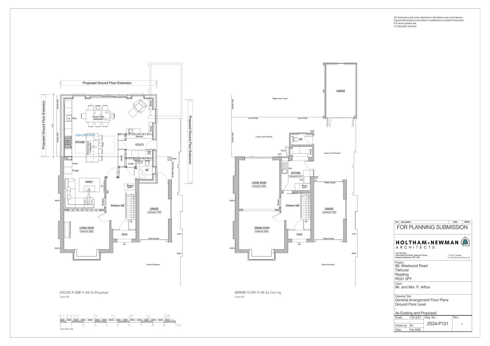
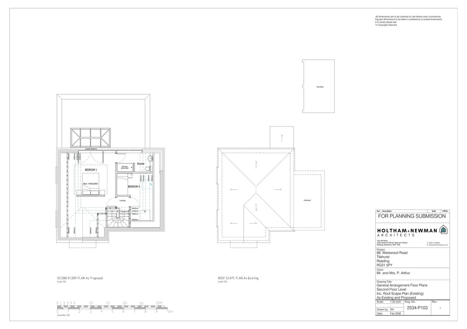
Reference PL/26/0153 Application type Householder planning permission Site address 89 WESTWOOD ROAD, TILEHURST, READING, RG31 5PY Description Single storey rear extension with flat roof, parapet wall and feature roof lantern. First floor rear extension infill and replacement roof with habitable accommodation at second floor level. Status Under Consultation Decision Received Date 04/2/2026 Decision Date

Documents

Uncategorised
Archived · Original link
Uncategorised
Archived · Original link
Uncategorised
Archived · Original link
Uncategorised
Archived · Original link
Uncategorised
Archived · Original link
Uncategorised
Archived · Original link
Uncategorised
Archived · Original link
Uncategorised
Archived · Original link

Have your say

Your comment matters. Councils must consider every representation that raises material planning considerations.

Write a comment