← Reading Borough Council

Status

Pending House extension
Received
Not recorded
New homes
0

Full proposal

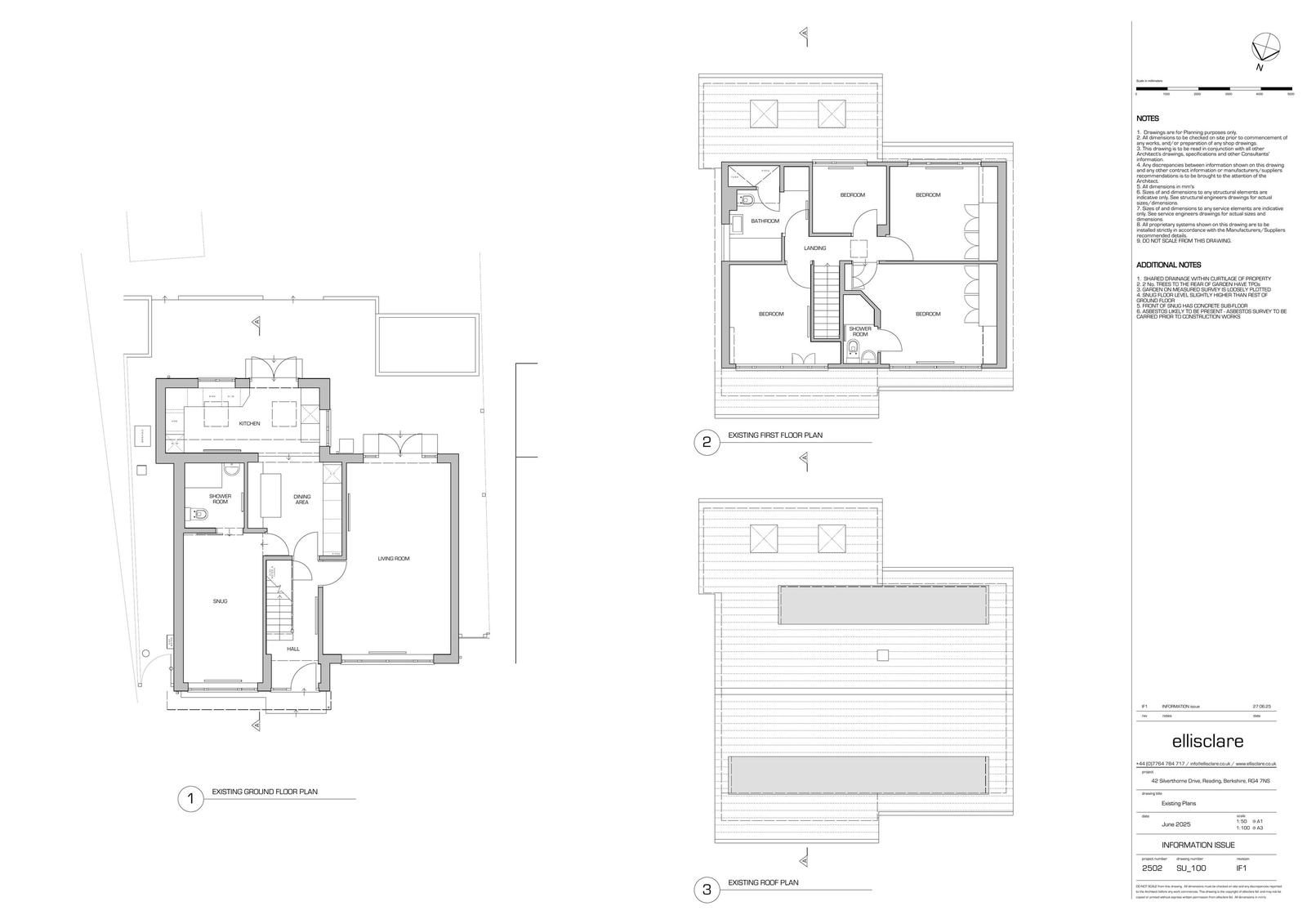
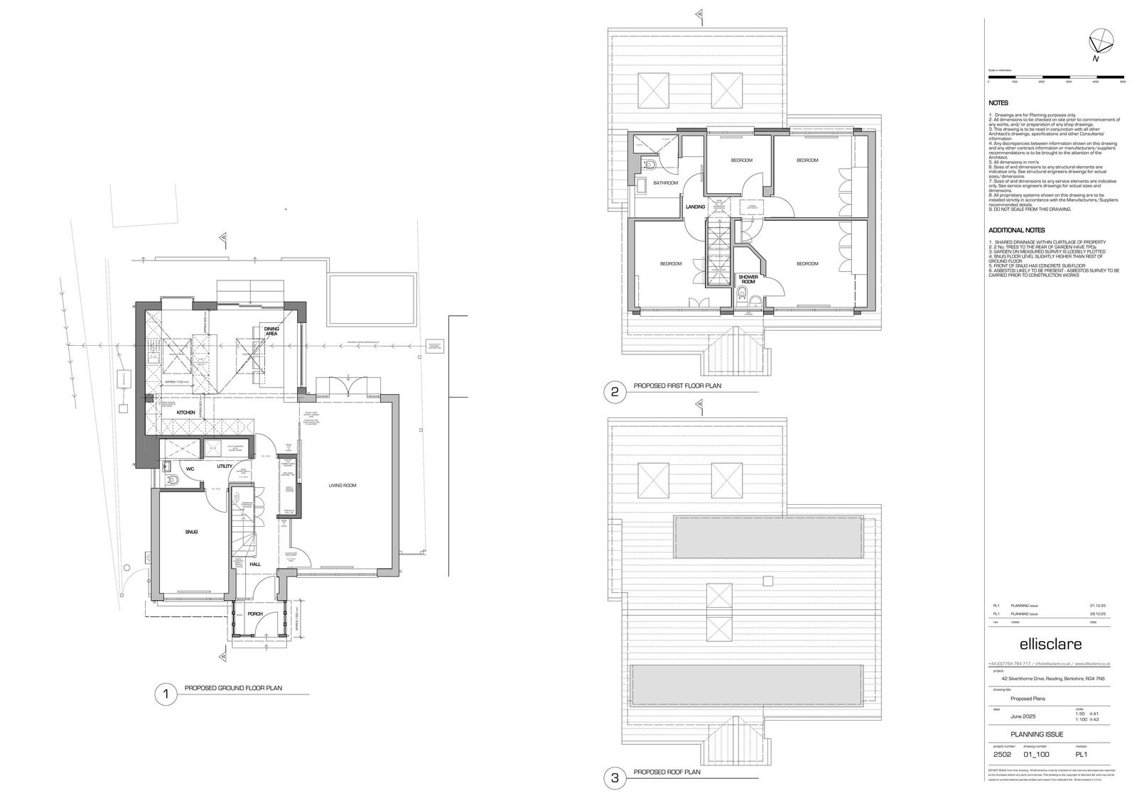
Reference PL/26/0155 Application type Householder planning permission Site address 42 SILVERTHORNE DRIVE, CAVERSHAM, READING, RG4 7NS Description Replacement single storey rear extension. New rooflights to main roof and new window to front elevation. External insulation to the front and rear dormer walls and roof. Enclosed front porch. Status Under Consultation Decision Received Date 05/2/2026 Decision Date

Documents

Uncategorised
Archived · Original link
Uncategorised
Archived · Original link
Uncategorised
Archived · Original link
Uncategorised
Archived · Original link
Uncategorised
Archived · Original link
Uncategorised
Archived · Original link
Uncategorised
Archived · Original link
Uncategorised
Archived · Original link
Uncategorised
Archived · Original link
Uncategorised
Archived · Original link

Have your say

Your comment matters. Councils must consider every representation that raises material planning considerations.

Write a comment