← Reading Borough Council

Status

Pending New housing
Received
Not recorded
New homes
2

Full proposal

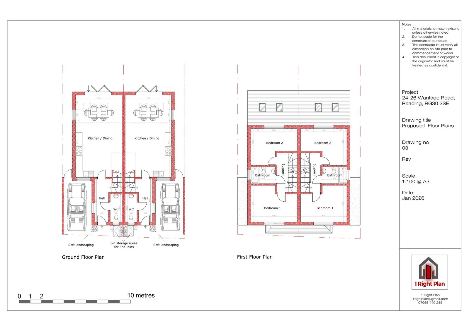
Reference PL/26/0199 Application type Full planning permission Site address Land to the rear of 24-26 Wantage Road, Reading, RG30 2SE Description Proposed erection of 2no. semi-detached dwellings following demolition of the existing garages. Status Under Consultation Decision Received Date 13/2/2026 Decision Date

Documents

Uncategorised
Archived · Original link
Uncategorised
Archived · Original link
Uncategorised
Archived · Original link
Uncategorised
Archived · Original link
Uncategorised
Archived · Original link
Uncategorised
Archived · Original link
Uncategorised
Archived · Original link
Uncategorised
Archived · Original link
Uncategorised
Archived · Original link
Uncategorised
Archived · Original link
Uncategorised
Archived · Original link
Uncategorised
Archived · Original link
Uncategorised
Archived · Original link

Have your say

Your comment matters. Councils must consider every representation that raises material planning considerations.

Write a comment