← Reading Borough Council

Status

Pending Change of use
Received
Not recorded
New homes
3

Full proposal

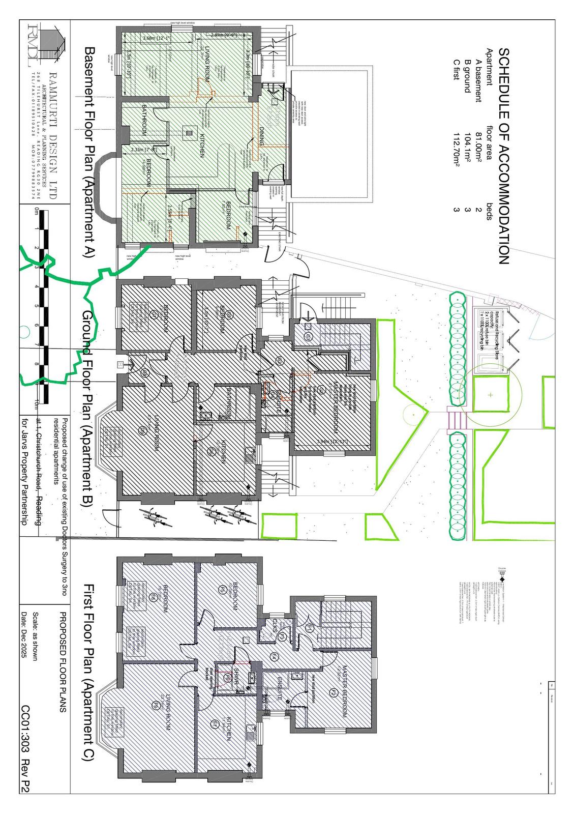
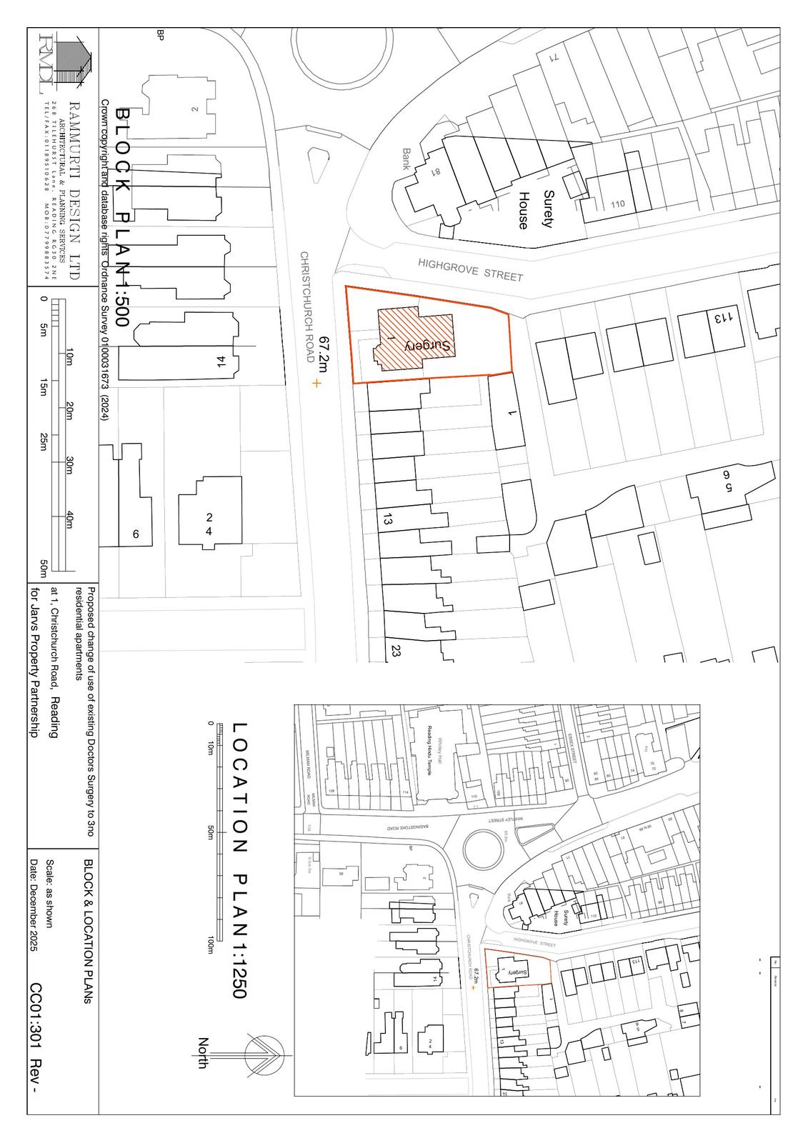
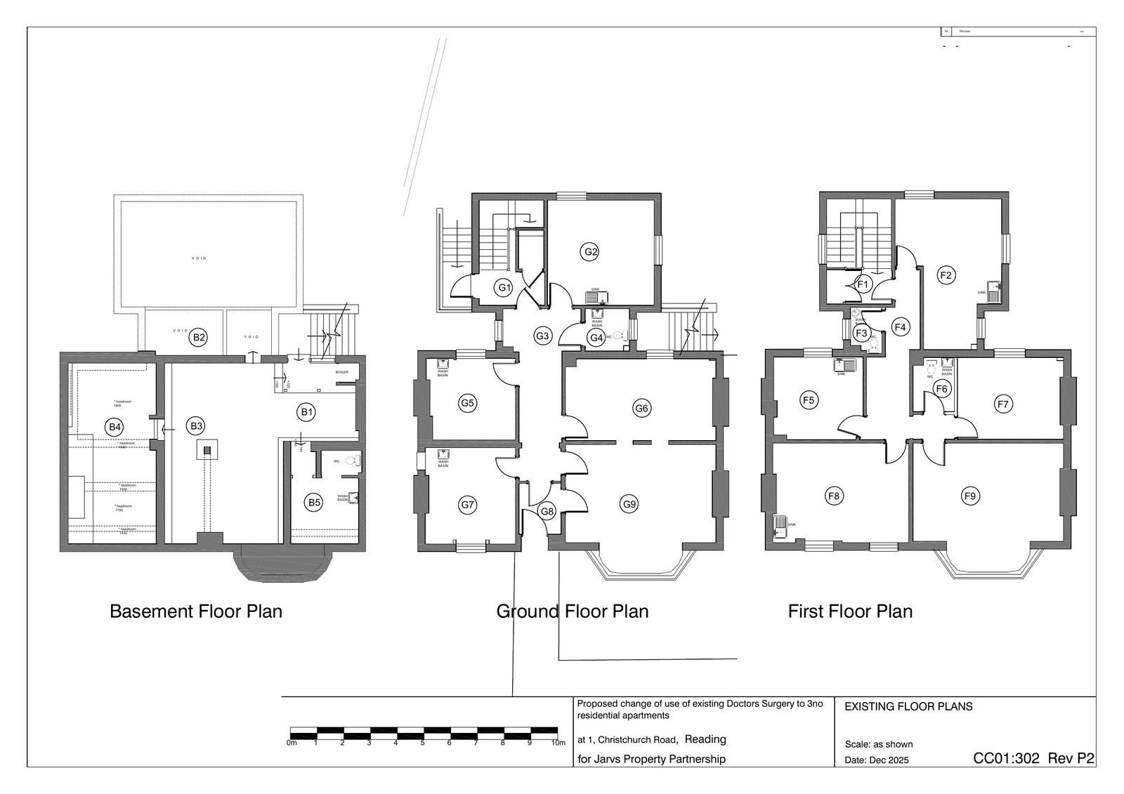
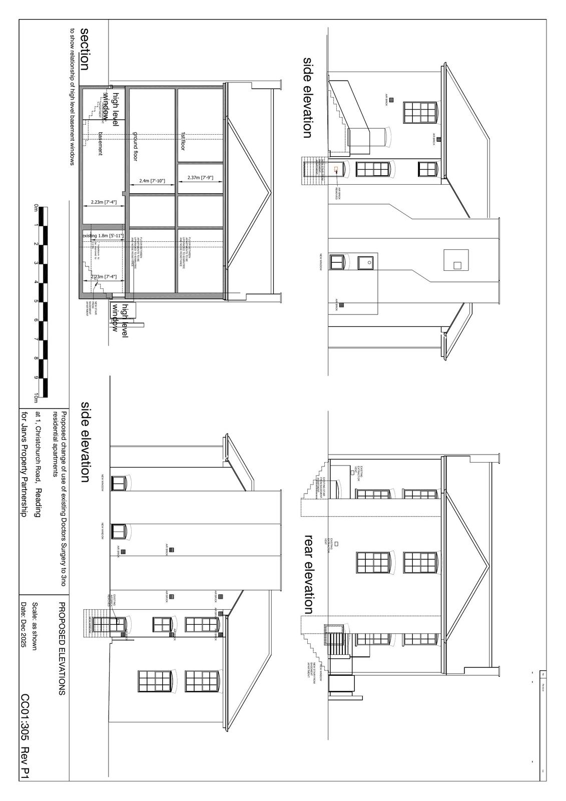
Reference PL/26/0241 Application type Full planning permission Site address 1 CHRISTCHURCH ROAD, READING, RG2 7AB Description Proposed change of use of existing Grade II Listed Building Doctors Surgery to three apartments. Status Under Consultation Decision Received Date 24/11/2025 Decision Date

Documents

Uncategorised
Archived · Original link
Uncategorised
Archived · Original link
Uncategorised
Archived · Original link
Uncategorised
Archived · Original link
Uncategorised
Archived · Original link
Uncategorised
Archived · Original link
Uncategorised
Archived · Original link
Uncategorised
Archived · Original link
Uncategorised
Archived · Original link
Uncategorised
Archived · Original link
Uncategorised
Archived · Original link
Uncategorised
Archived · Original link
Uncategorised
Archived · Original link
Uncategorised
Archived · Original link
Uncategorised
Archived · Original link
Uncategorised
Archived · Original link
Uncategorised
Archived · Original link

Have your say

Your comment matters. Councils must consider every representation that raises material planning considerations.

Write a comment