← Reading Borough Council

Status

Pending House extension
Received
Not recorded
New homes
0

Full proposal

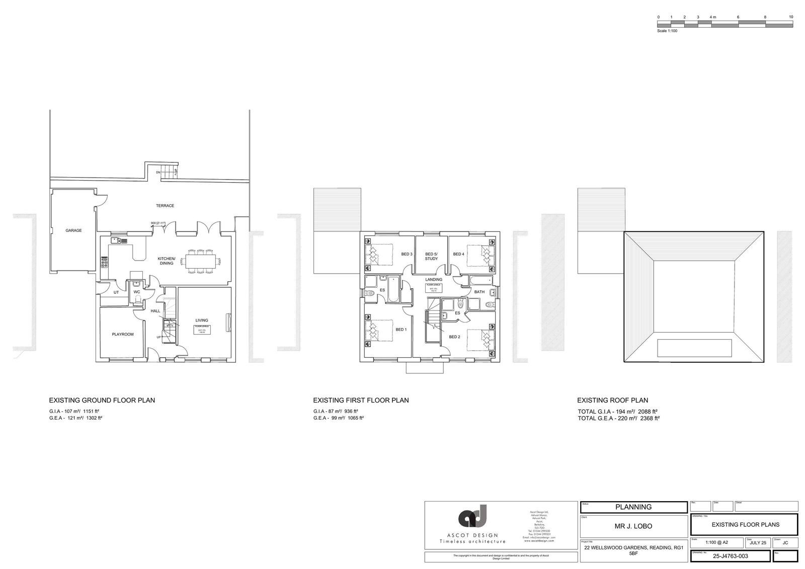
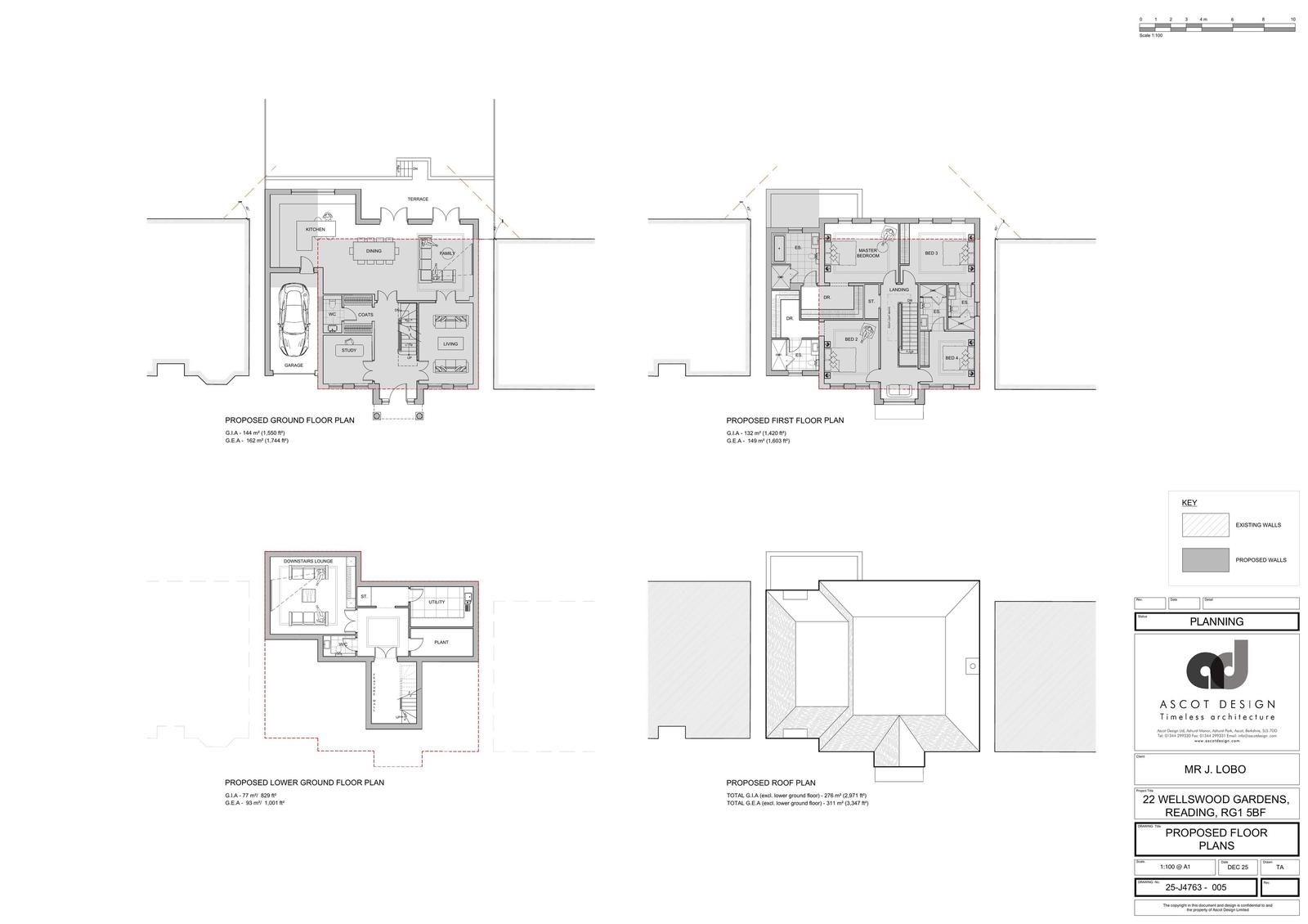
Reference PL/26/0247 Application type Householder planning permission Site address 22 WELLSWOOD GARDENS, READING, RG1 5BF Description Erection of a two-storey side and rear extension with single-storey element, full-height front portico, roof alterations, internal reconfiguration, formation of a subterranean lower ground floor and associated fenestration alterations. Status Under Consultation Decision Received Date 23/2/2026 Decision Date

Documents

Uncategorised
Archived · Original link
Uncategorised
Archived · Original link
Uncategorised
Archived · Original link
Uncategorised
Archived · Original link
Uncategorised
Archived · Original link
Uncategorised
Archived · Original link
Uncategorised
Archived · Original link
Uncategorised
Archived · Original link
Uncategorised
Archived · Original link
Uncategorised
Archived · Original link

Have your say

Your comment matters. Councils must consider every representation that raises material planning considerations.

Write a comment