← Back to London Borough of Redbridge
Application
0137/26
London Borough of Redbridge · AGILE
Status
Under Consideration
Full planning permission
Received
24 days ago
New dwellings
n/a
What you can do
Take Action
Make your voice heard. Authorities need to hear from people who support new homes.
Full Proposal
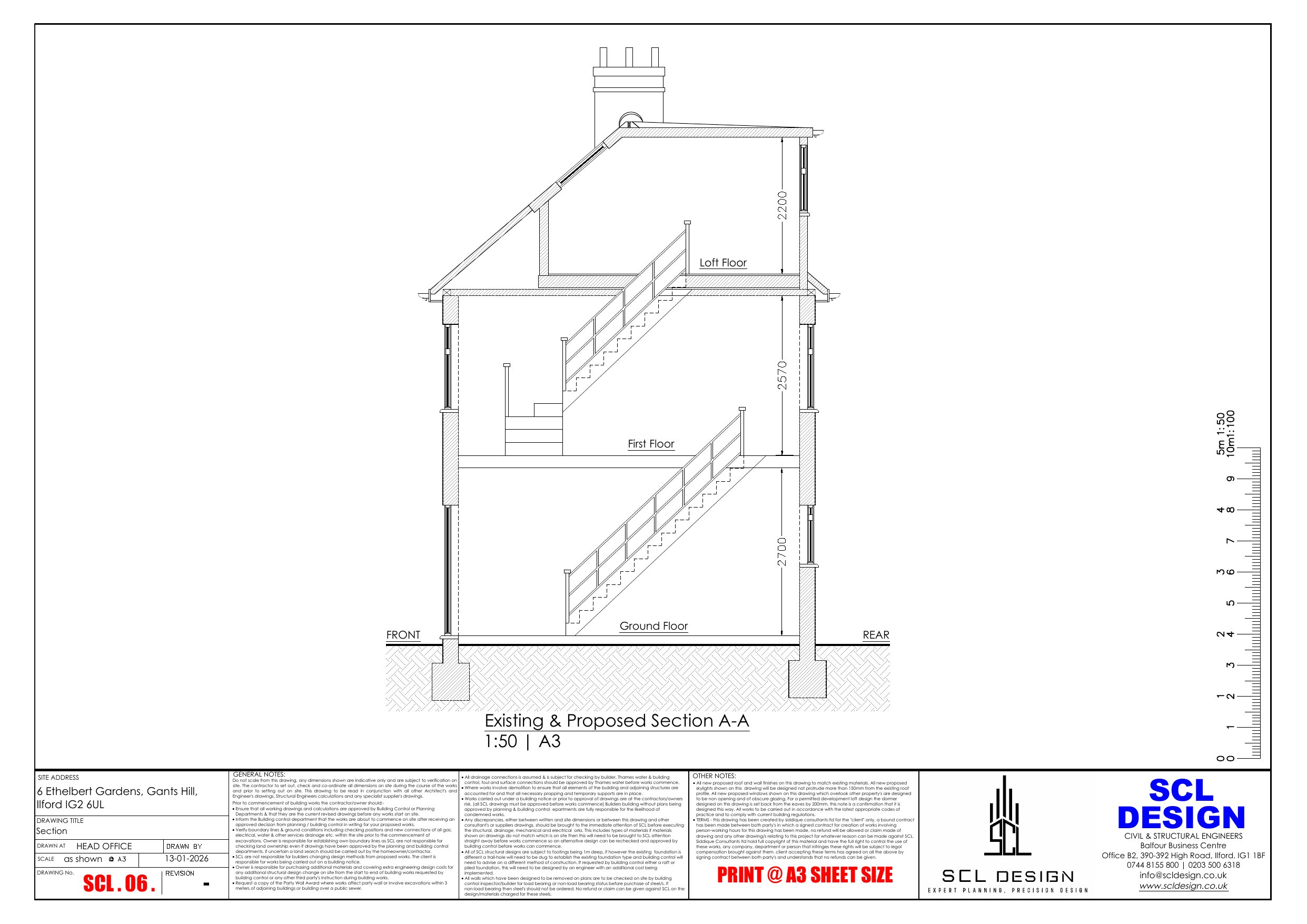
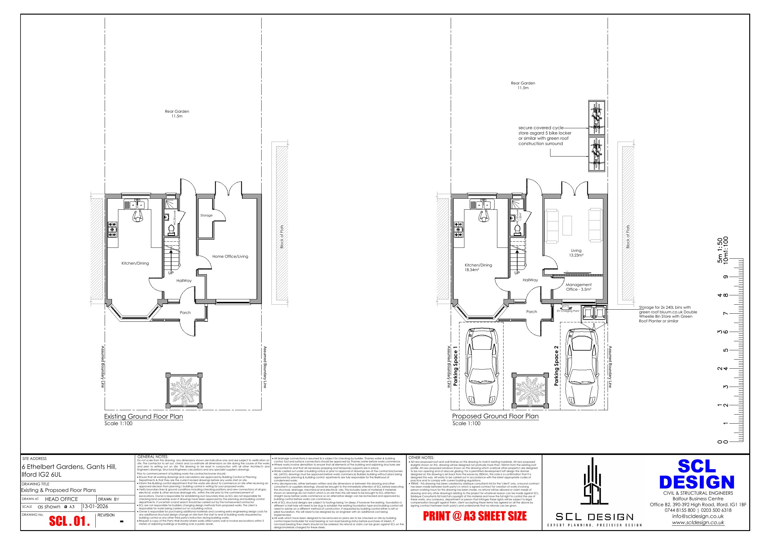
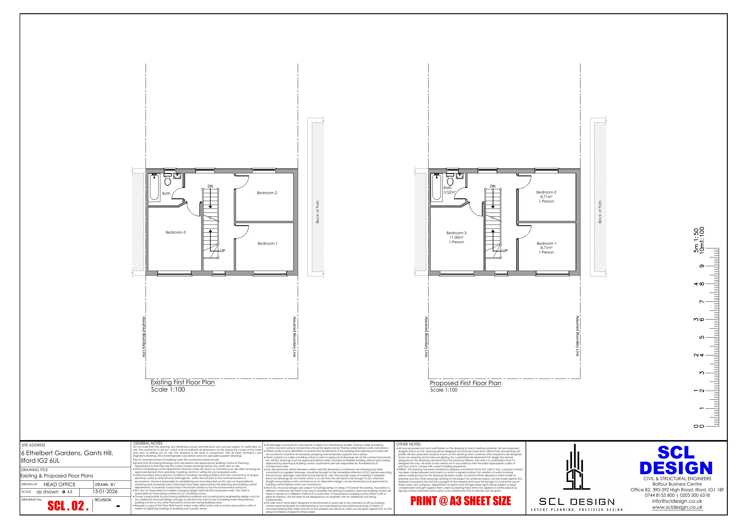
Change of use from a single dwelling house into a small HMO for up to five people with associated waste/refuse, cycle parking and car parking. Internal alterations (summary)
Detail pages
- View live detail on council site
- No archived detail page available.
Documents
ApplicationFormRedacted.pdf
Application form
Not downloaded
· Council link
CIL Form.pdf
CIL supporting document
Not downloaded
· Council link
first
Combined plan - floor plan
Not downloaded
· Council link
ground
Combined plan - floor plan
Not downloaded
· Council link
HMO Management Plan
Supporting document
Not downloaded
· Council link
Planning Design and Access Statement.pdf
Design and access statement
Not downloaded
· Council link
Reasonable Exception Statement.pdf
Fire statement
Not downloaded
· Council link
Scl- 001 Site Location and Block Plan.pdf
Site/block plan
Not downloaded
· Council link
Scl- 004 Loft Floor Plan.pdf
Combined plan - floor plan
Not downloaded
· Council link
Scl- 005 Front and Side Elevation.pdf
Combined plan - elevation
Not downloaded
· Council link
Scl- 006 Rear and Side Elevation.pdf
Combined plan - elevation
Not downloaded
· Council link
Scl- 007 Section Drawing.pdf
Combined plan - elevation
Not downloaded
· Council link
Waste Management Plan
Supporting document
Not downloaded
· Council link