← London Borough of Redbridge

Status

Works Started Change of use
Received
04 Feb 2026
New homes
3

Full proposal

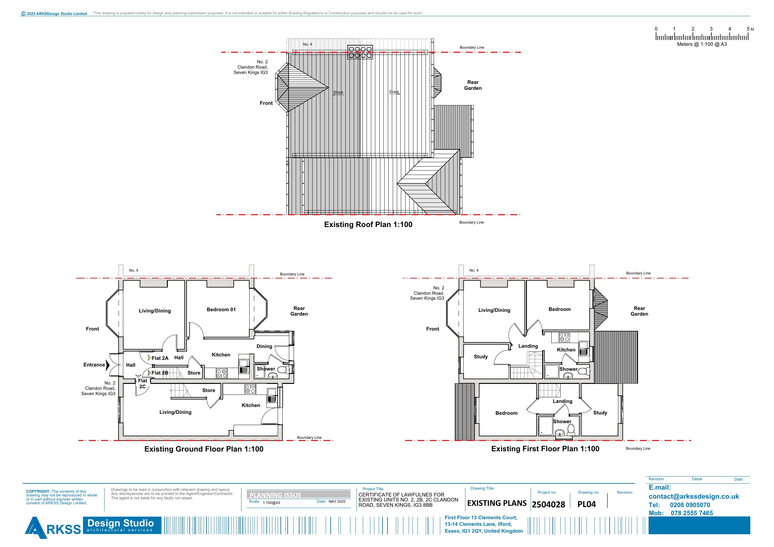
Use of property as three self-contained flats. (summary)

Documents

Officer report
Archived · Original link
Application form
Archived · Original link
Proposed plan - floor plan
Archived · Original link
Proposed plan - elevation
Archived · Original link
Site/block plan
Archived · Original link
Existing plan - floor plan
Archived · Original link
Existing plan - elevation
Archived · Original link

Have your say

Your comment matters. Councils must consider every representation that raises material planning considerations.

Write a comment