← London Borough of Redbridge

Status

Under Consideration Change of use
Received
05 Feb 2026
New homes
0

Full proposal

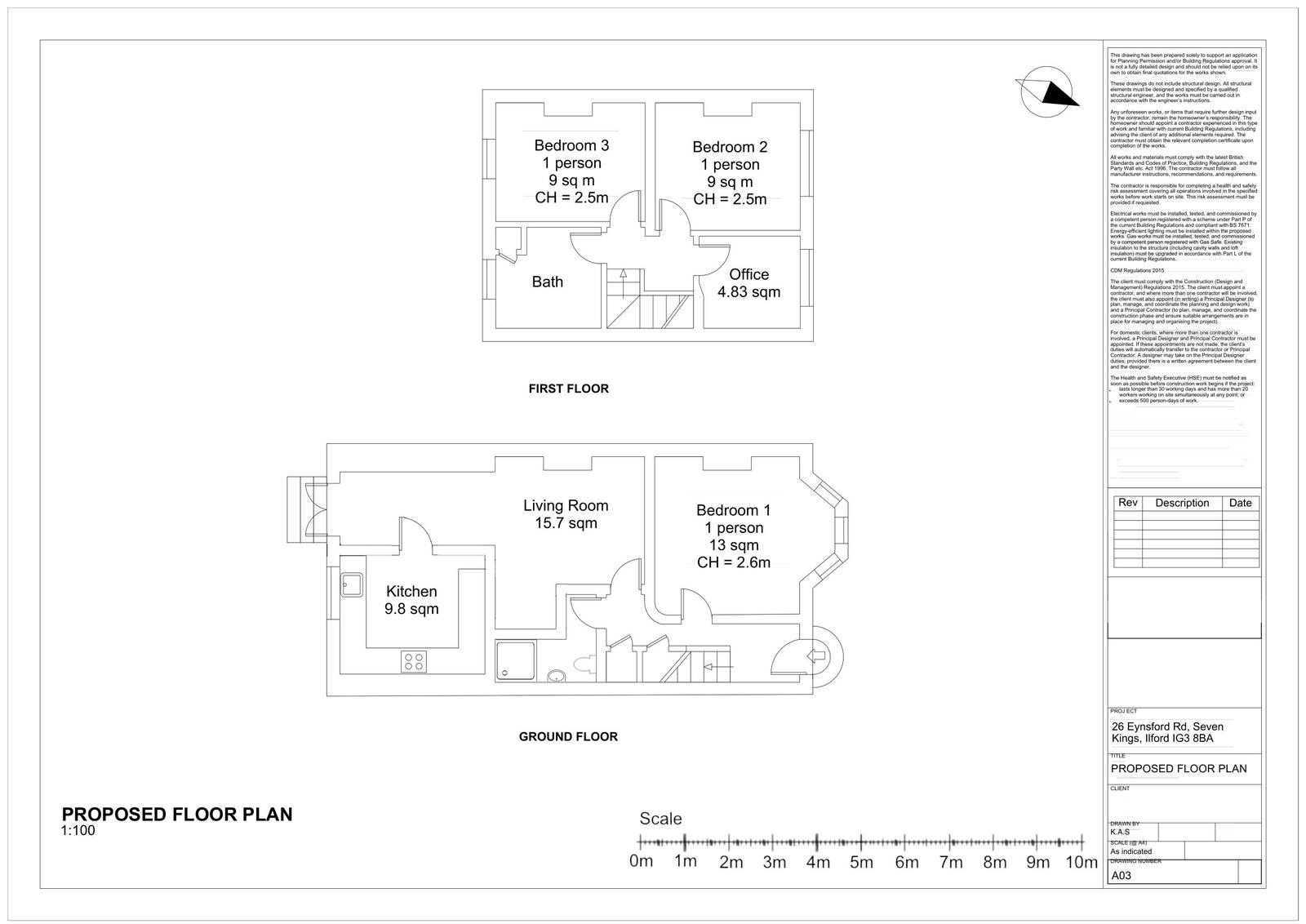
Change of use from dwellinghouse (C3) to a small HMO (C4) for 3 people (supported living) with associated waste/refuse, cycle store and private amenity space (summary)

Documents

Site/block plan
Archived · Original link
Existing plan - floor plan
Archived · Original link
Proposed plan - floor plan
Archived · Original link
Planning statement
Archived · Original link
Fire statement
Archived · Original link
CIL liability notice
Archived · Original link
Application form
Archived · Original link
Combined plan
Archived · Original link
Supporting document
Archived · Original link
Site/block plan
Archived · Original link

Have your say

Your comment matters. Councils must consider every representation that raises material planning considerations.

Write a comment