0417/26
London Borough of Redbridge
Status
Under Consideration
House extension
Received
Last month
New homes
0
Full proposal
Conversion of garage into a habitable room. Single storey rear and part side extension. First floor side extension. Alterations to front porch and roof. (Summary)
Documents
Site/block plan
Archived
· Original link
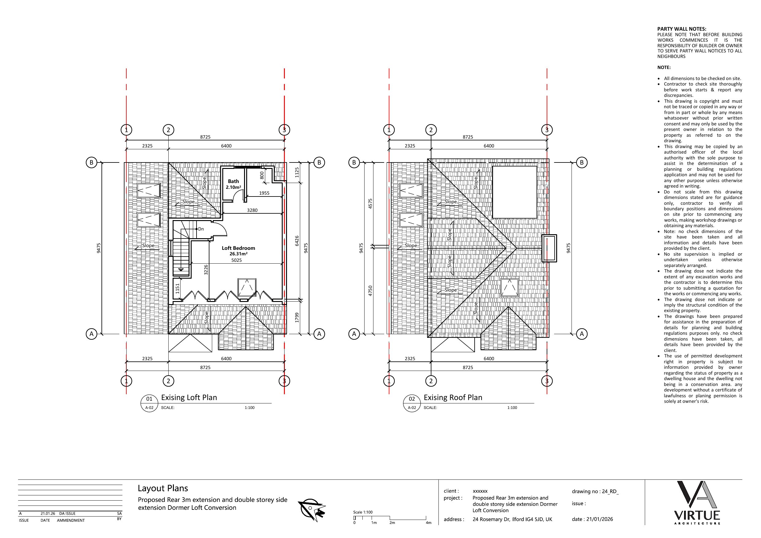
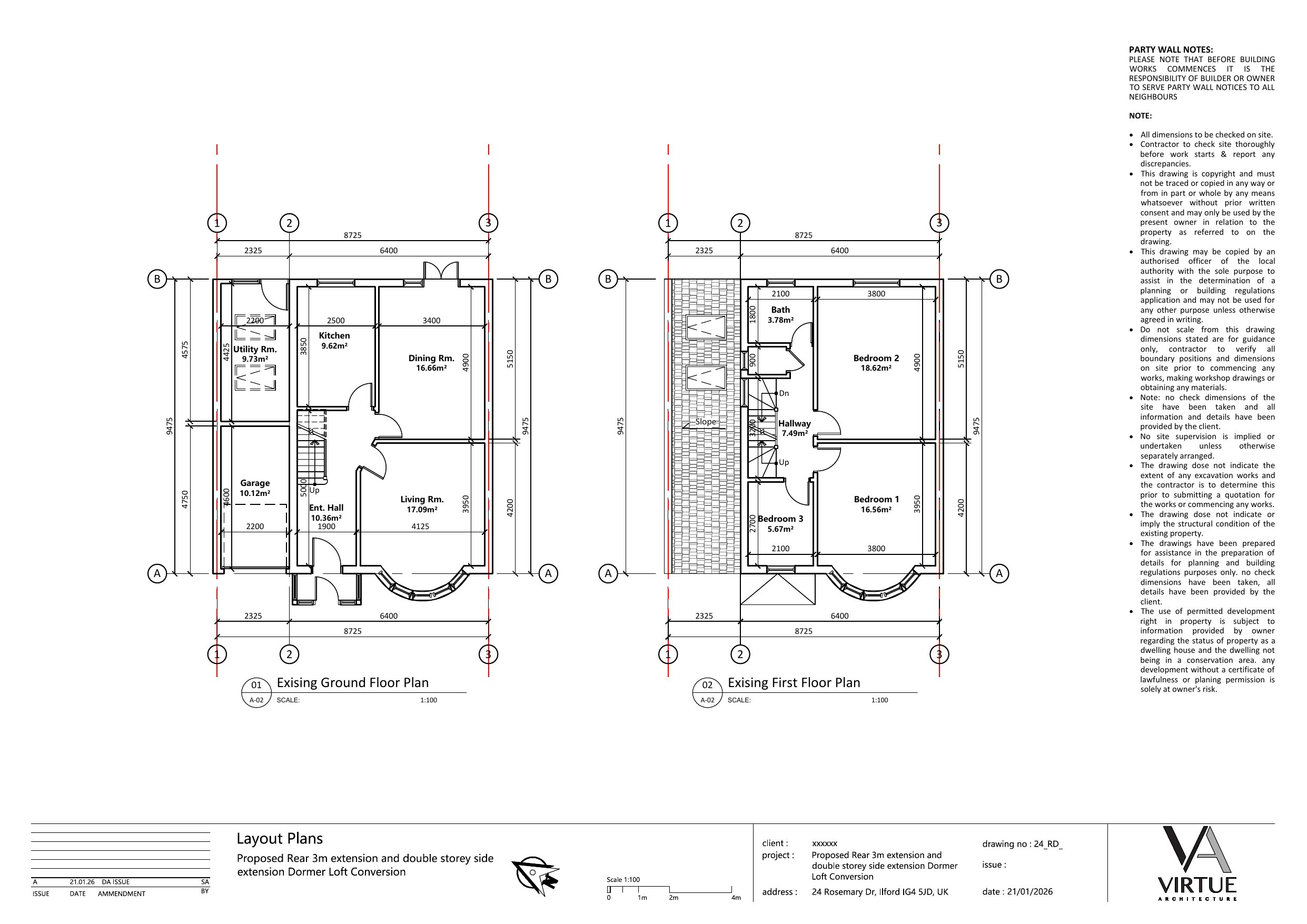
Existing plan - floor plan
Archived
· Original link
Existing plan - roof plan
Archived
· Original link
Proposed plan - floor plan
Archived
· Original link
Proposed plan - roof plan
Archived
· Original link
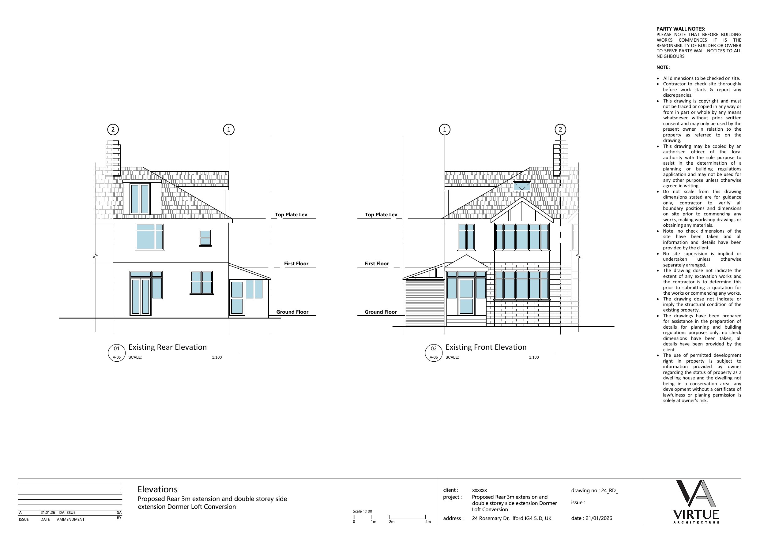
Existing plan - elevation
Archived
· Original link
Existing plan - elevation
Archived
· Original link
Proposed plan - elevation
Archived
· Original link
Proposed plan - elevation
Archived
· Original link
Proposed plan
Archived
· Original link
Supporting document
Archived
· Original link
Have your say
Your comment matters. Councils must consider every representation that raises material planning considerations.