0421/26
London Borough of Redbridge
Status
Under Consideration
Change of use
Received
Last month
New homes
2
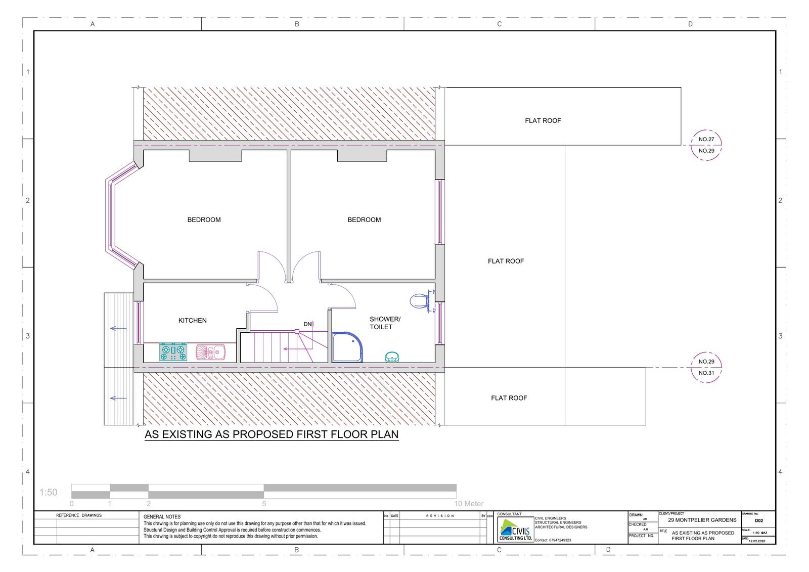
Full proposal
Use of property as 2x self contained flats. (summary)
Documents
Have your say
Your comment matters. Councils must consider every representation that raises material planning considerations.