← London Borough of Redbridge

Status

Under Consideration Change of use
Received
Last month
New homes
0

Full proposal

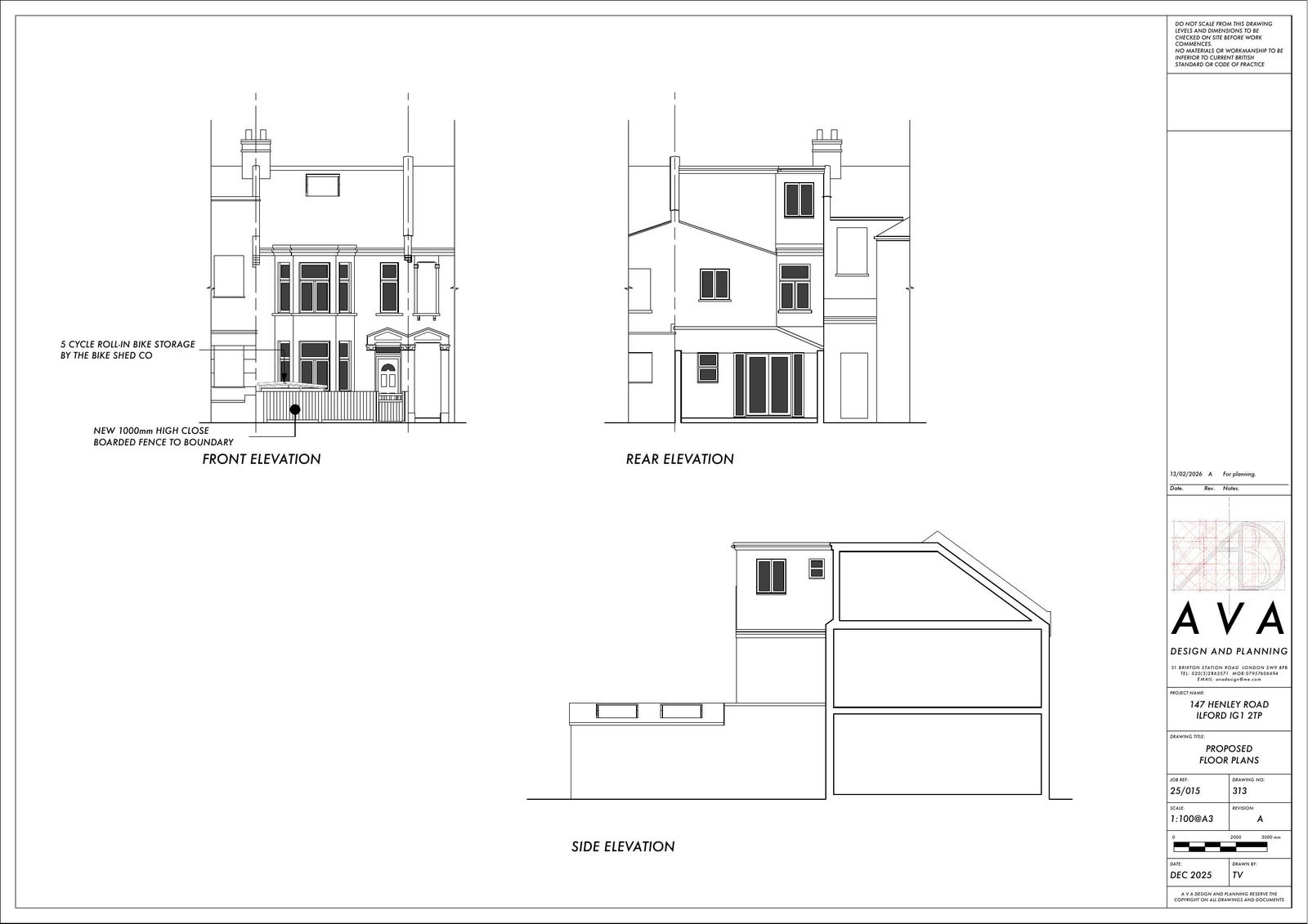
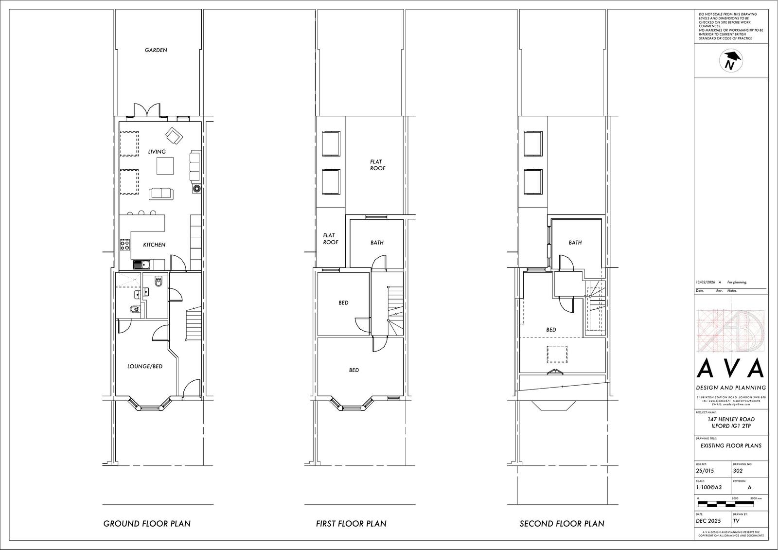
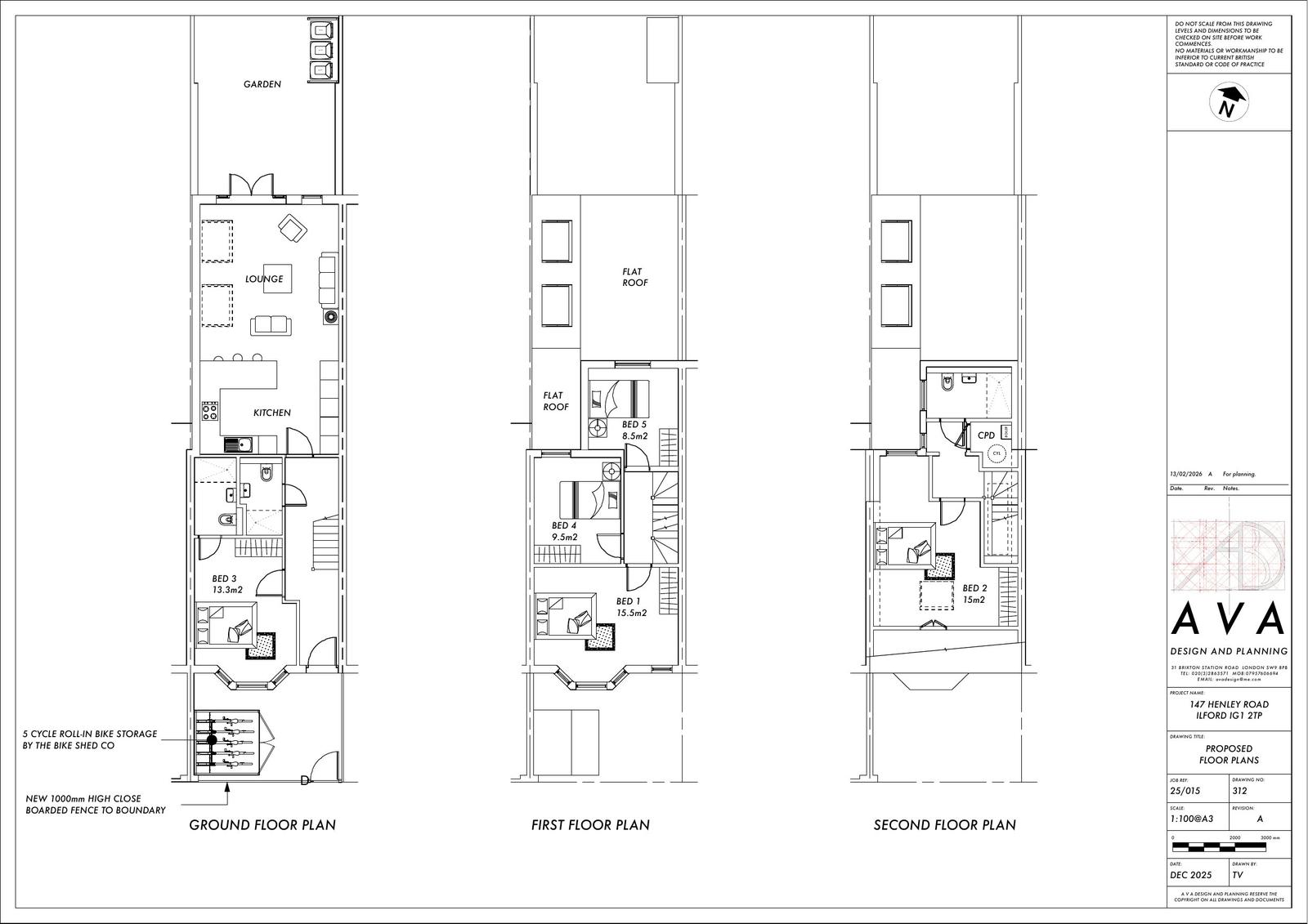
Change of use from single dwellinghouse to a small HMO for up to 5 people with associated waste/refuse, cycle store and amenity space (summary)

Documents

Site/block plan
Archived · Original link
Site/block plan
Archived · Original link
Existing plan - floor plan
Archived · Original link
Existing plan - elevation
Archived · Original link
Site/block plan
Archived · Original link
Proposed plan - floor plan
Archived · Original link
Proposed plan - elevation
Archived · Original link
Application form
Archived · Original link
Supporting document
Archived · Original link
Planning statement
Archived · Original link
Transport assessment
Archived · Original link

Have your say

Your comment matters. Councils must consider every representation that raises material planning considerations.

Write a comment