← London Borough of Redbridge

Status

Under Consideration House extension
Received
Last month
New homes
0

Full proposal

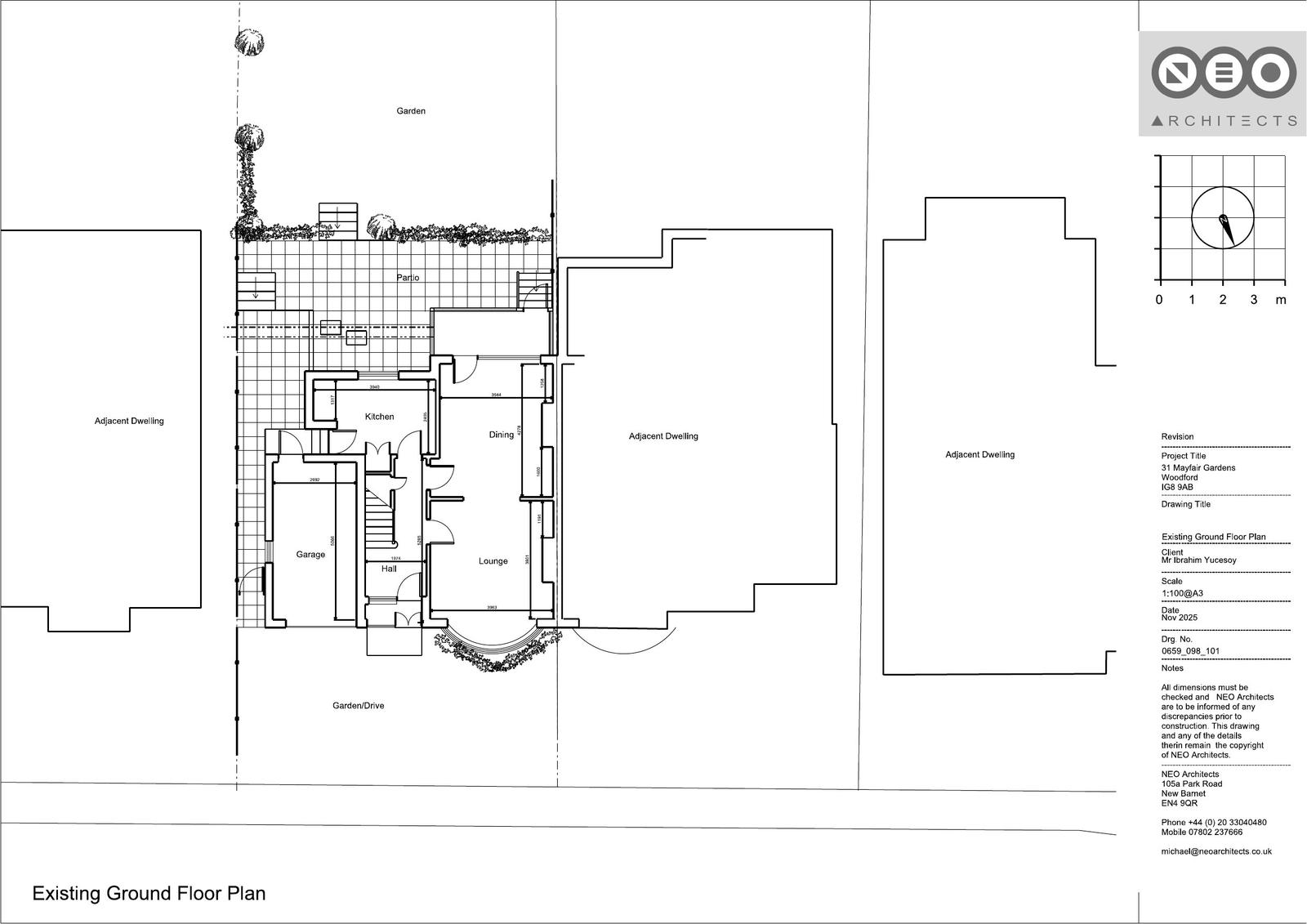
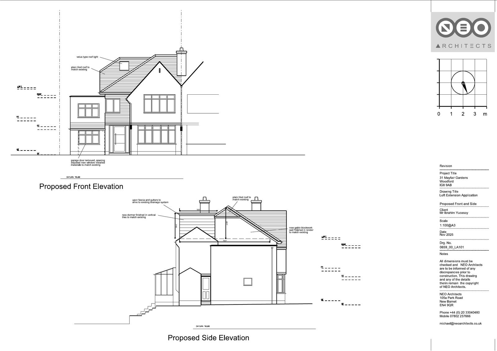
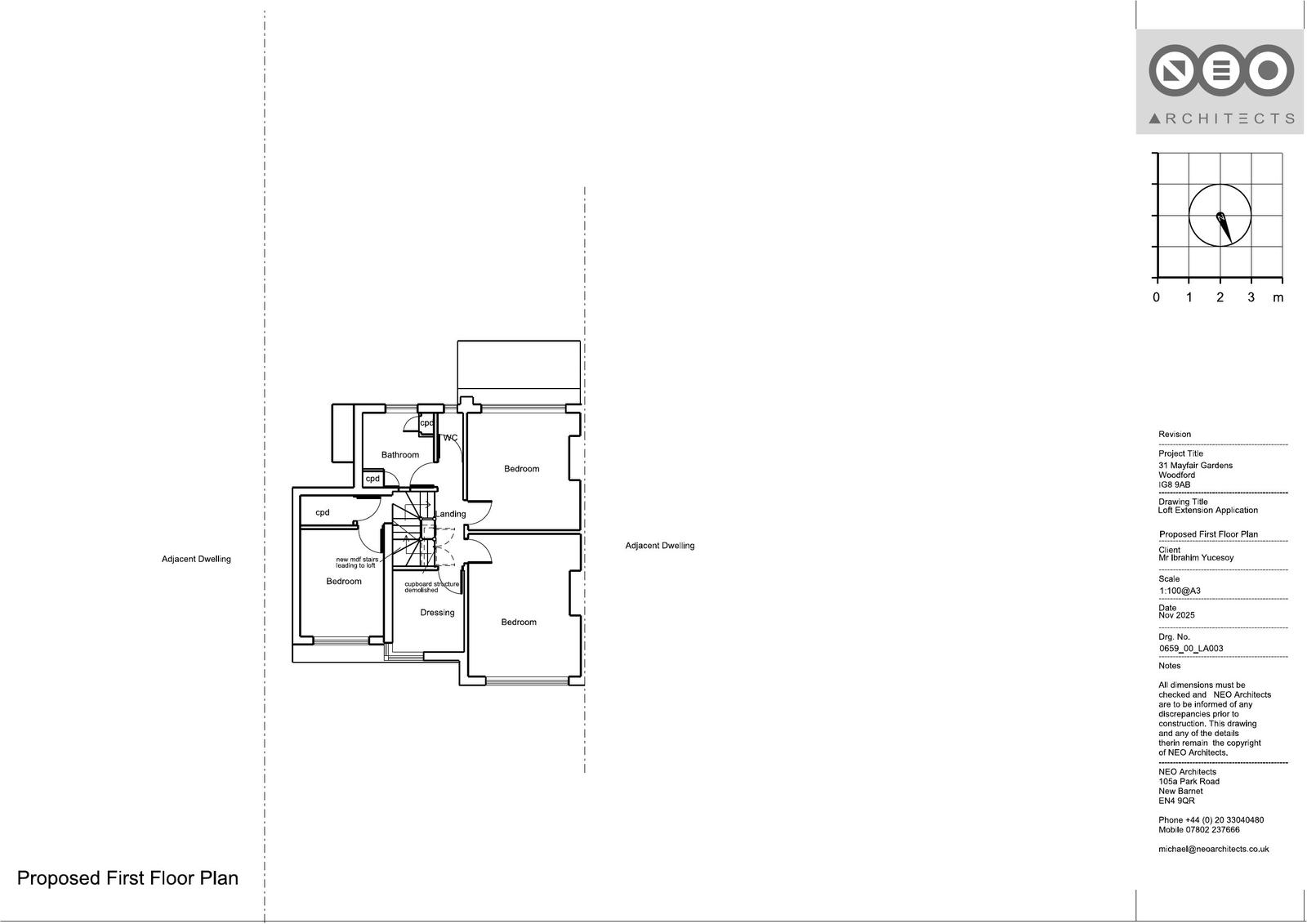
Conversion of garage into a habitable room. Replace garage door with a flush window. Remove chimney. Loft conversion with a rear dormer incorporating a Juliet balcony.. Hip to gable roof alterations. One front rooflights. (Summary).

Documents

Proposed plan - floor plan
Archived · Original link
Proposed plan - floor plan
Archived · Original link
Proposed plan - floor plan
Archived · Original link
Site/block plan
Archived · Original link
Site/block plan
Archived · Original link
Existing plan - floor plan
Archived · Original link
Existing plan - floor plan
Archived · Original link
Existing plan - elevation
Archived · Original link
Existing plan - elevation
Archived · Original link
Application form
Archived · Original link
CIL supporting document
Archived · Original link

Have your say

Your comment matters. Councils must consider every representation that raises material planning considerations.

Write a comment