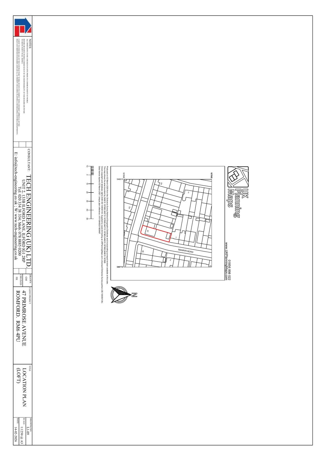
← London Borough of Redbridge

Status

Under Consideration House extension
Received
Last month
New homes
0

Full proposal

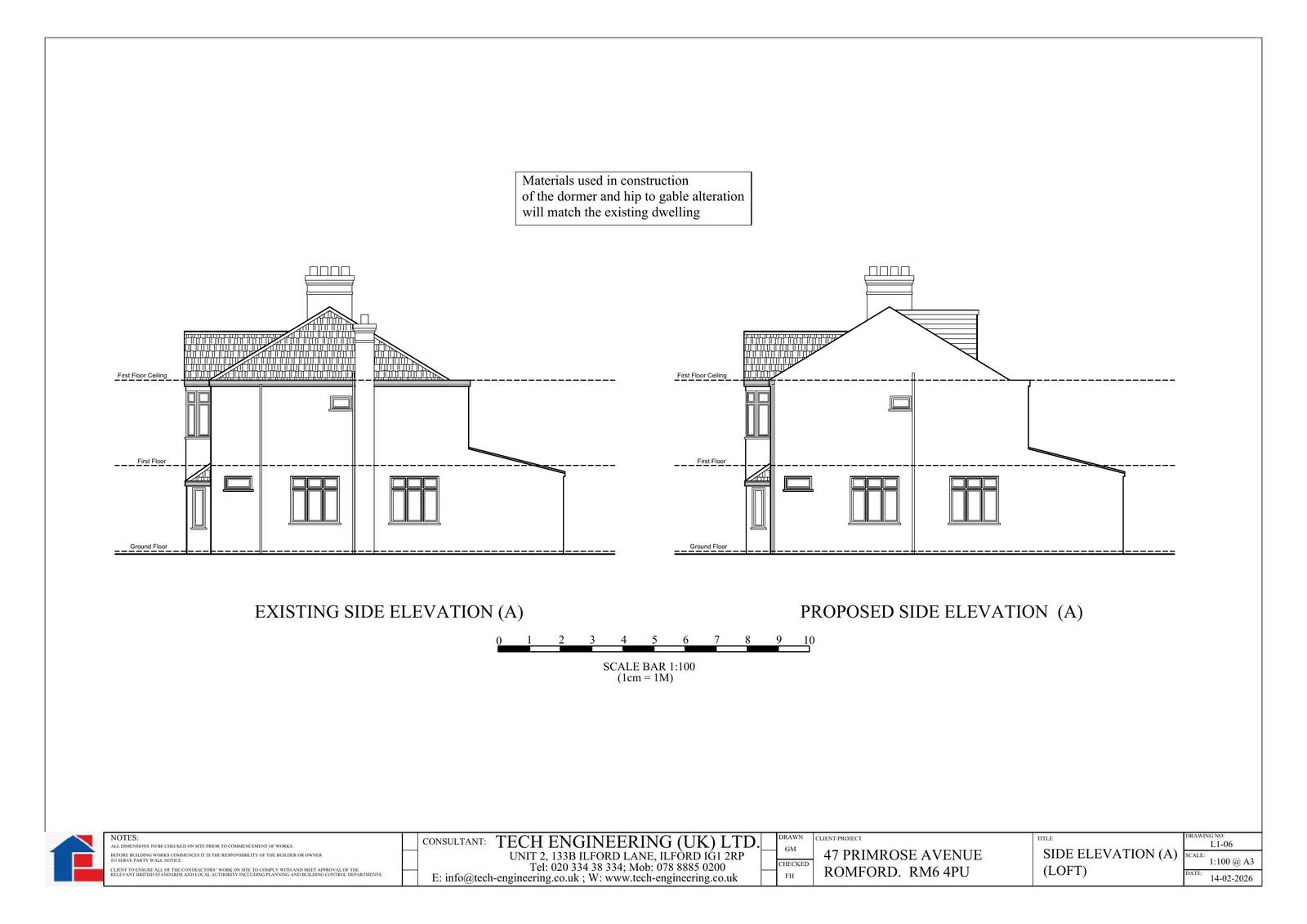
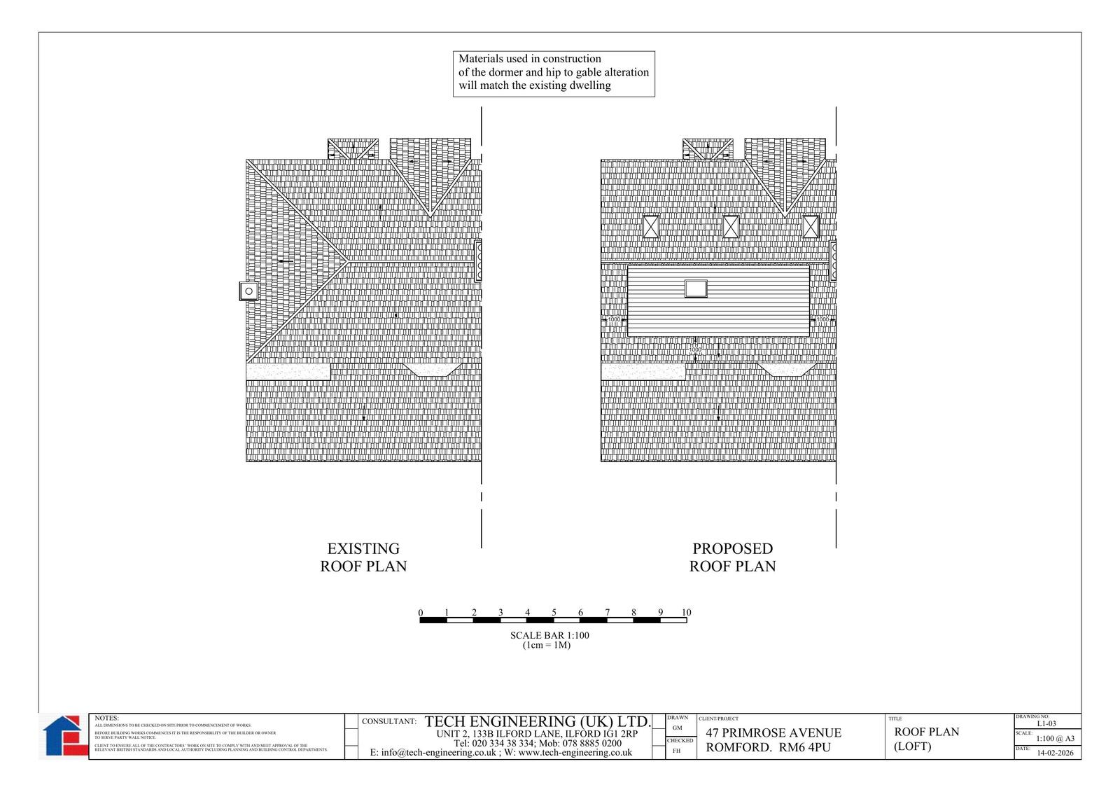
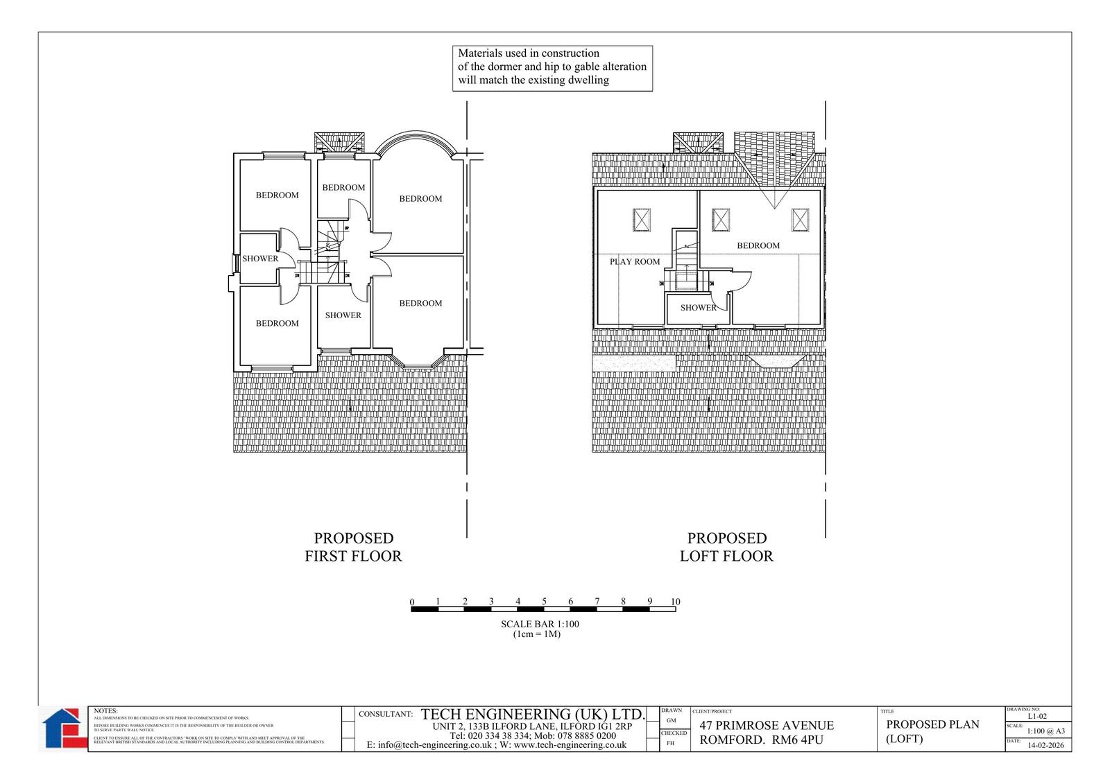
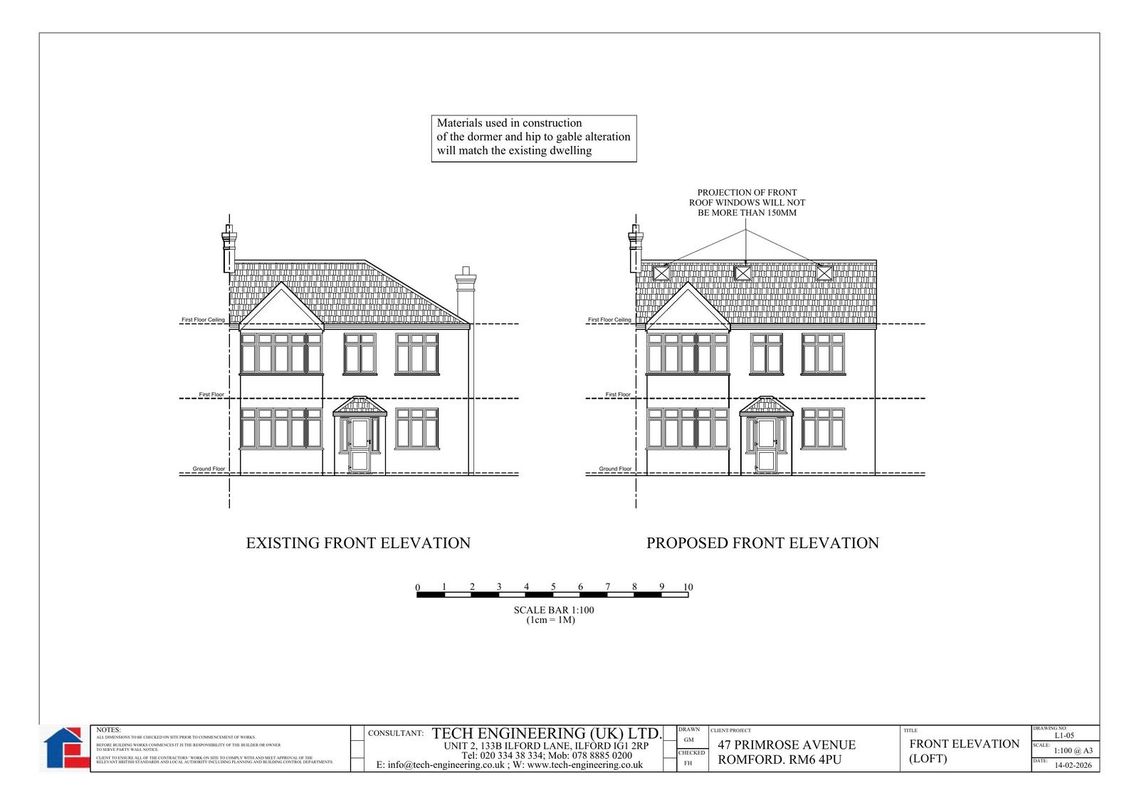
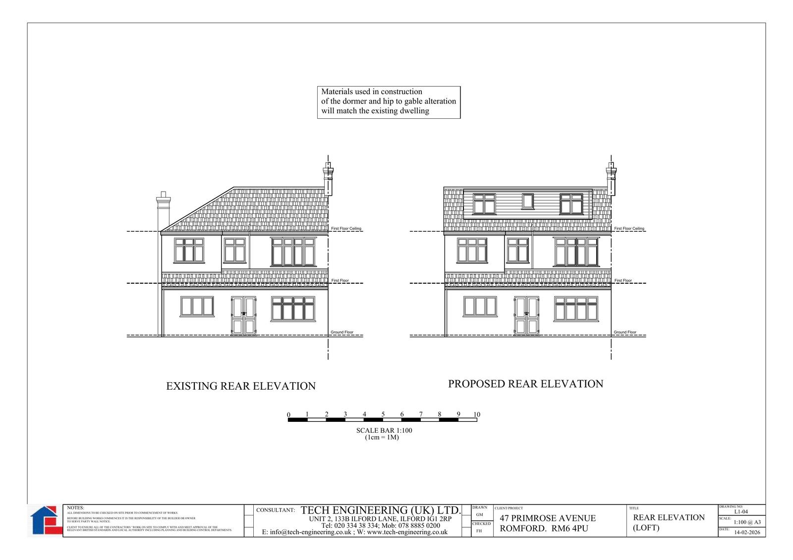
Loft conversion with a rear dormer. hip to gable roof alterations. Three front roof lights (summary)

Documents

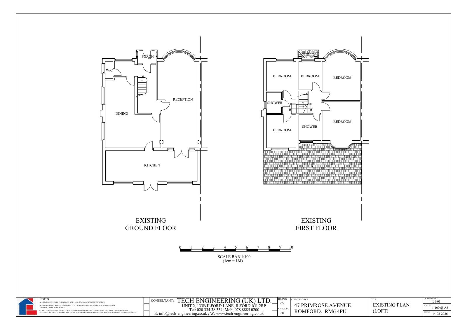
Existing plan - floor plan
Archived · Original link
Proposed plan - floor plan
Archived · Original link
Combined plan - roof plan
Archived · Original link
Combined plan - elevation
Archived · Original link
Combined plan - elevation
Archived · Original link
Combined plan - elevation
Archived · Original link
Combined plan - elevation
Archived · Original link

Have your say

Your comment matters. Councils must consider every representation that raises material planning considerations.

Write a comment