← London Borough of Redbridge

Status

Under Consideration House extension
Received
Last month
New homes
0

Full proposal

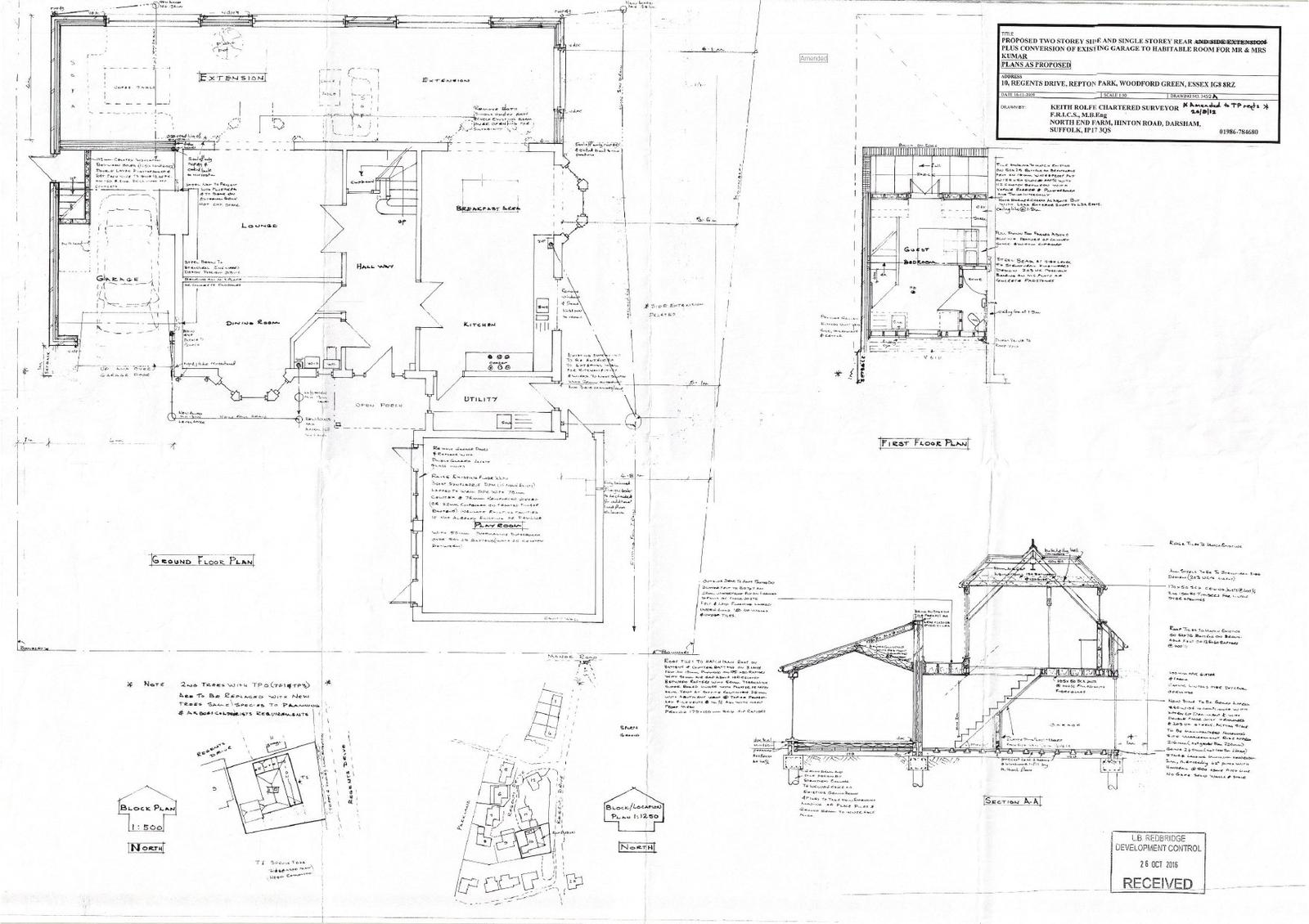
Conversion of garage into a habitable room. Single storey rear extension. Double storey side extension with front and rear dormer and balcony (summary)

Documents

Combined plan - elevation
Archived · Original link
Combined plan - roof plan
Archived · Original link
Site/block plan
Archived · Original link
Planning statement
Archived · Original link
Proposed plan - elevation
Archived · Original link
Existing plan - floor plan
Archived · Original link
Site/block plan
Archived · Original link

Have your say

Your comment matters. Councils must consider every representation that raises material planning considerations.

Write a comment