← London Borough of Redbridge

Status

Under Consideration House extension
Received
Last month
New homes
0

Full proposal

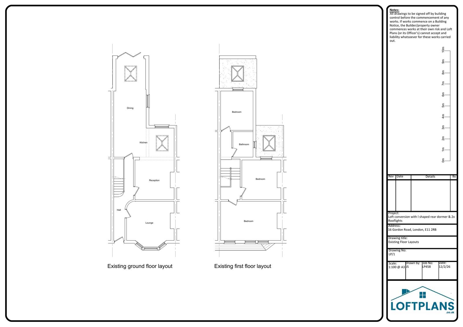
Loft conversion with a rear/side dormer. Two front rooflights. (Summary)

Documents

Existing plan - elevation
Archived · Original link
Existing plan - elevation
Archived · Original link
Existing plan - floor plan
Archived · Original link
Proposed plan - elevation
Archived · Original link
Proposed plan - elevation
Archived · Original link
Proposed plan - floor plan
Archived · Original link
Combined plan - roof plan
Archived · Original link
Site/block plan
Archived · Original link
Site/block plan
Archived · Original link

Have your say

Your comment matters. Councils must consider every representation that raises material planning considerations.

Write a comment