← London Borough of Redbridge

Status

Decision Level House extension
Received
Last month
New homes
0

Full proposal

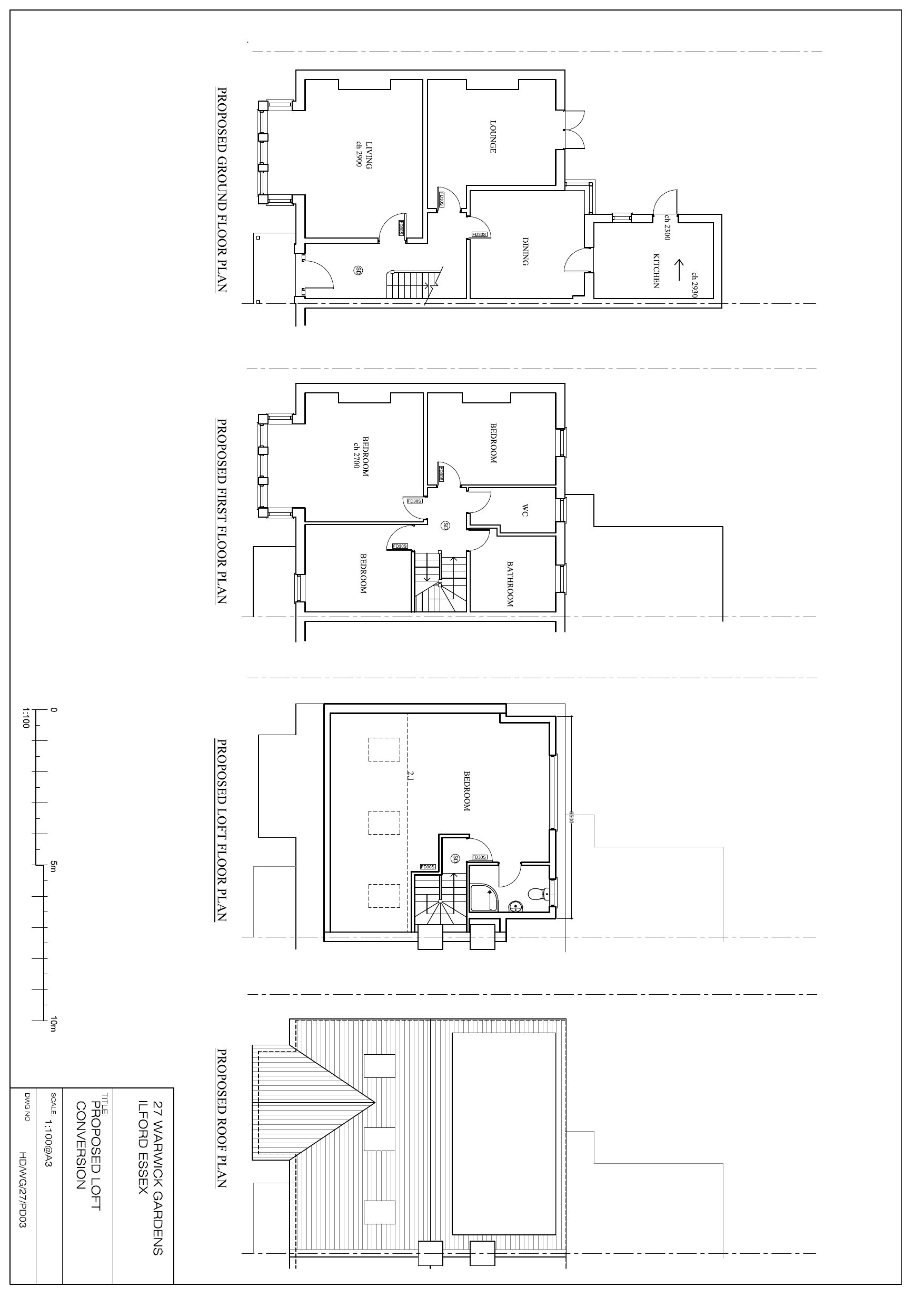
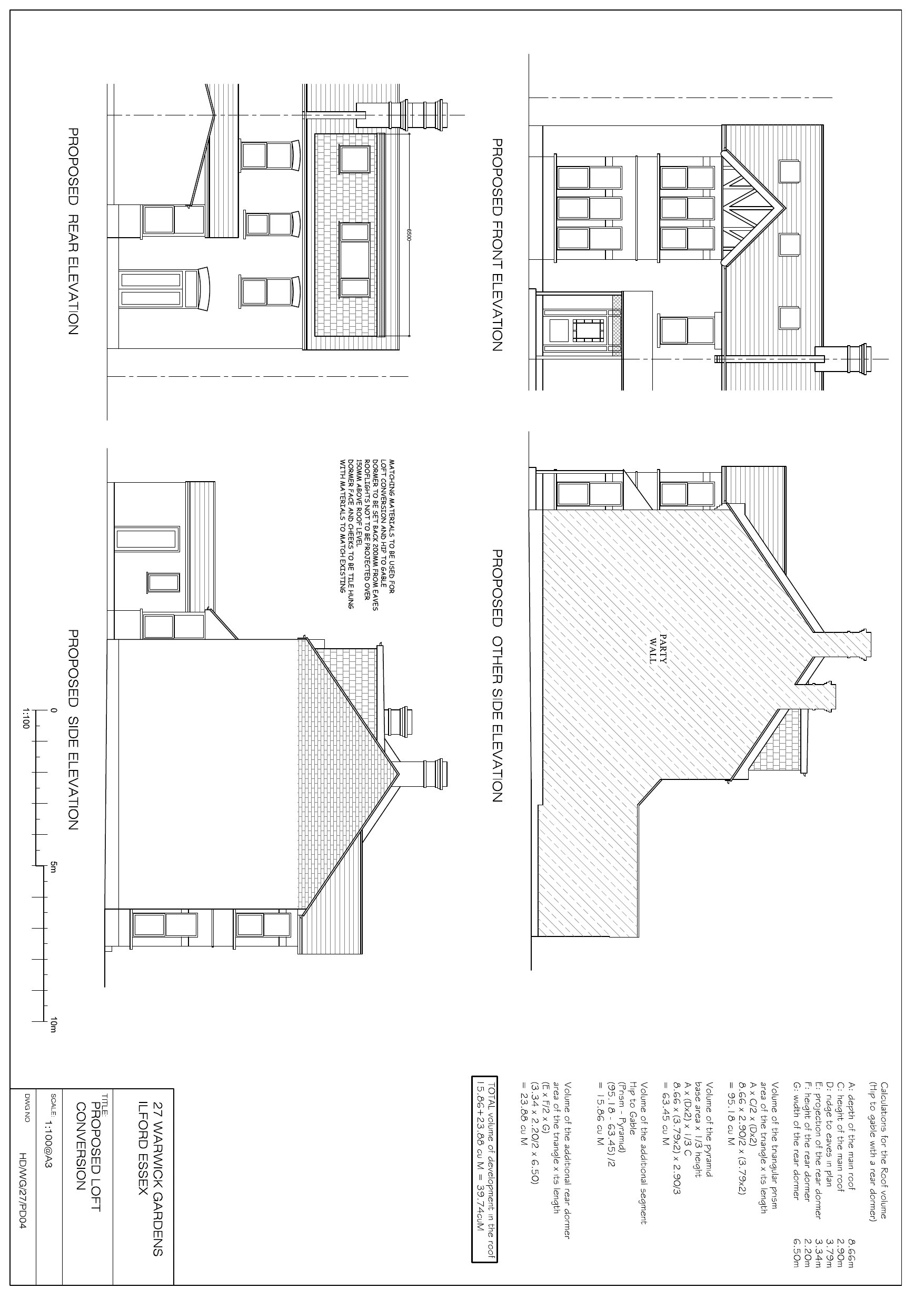
Loft conversion with a rear dormer. Hip to gable roof alterations. Three front rooflights. (Summary)

Documents

Site/block plan
Archived · Original link
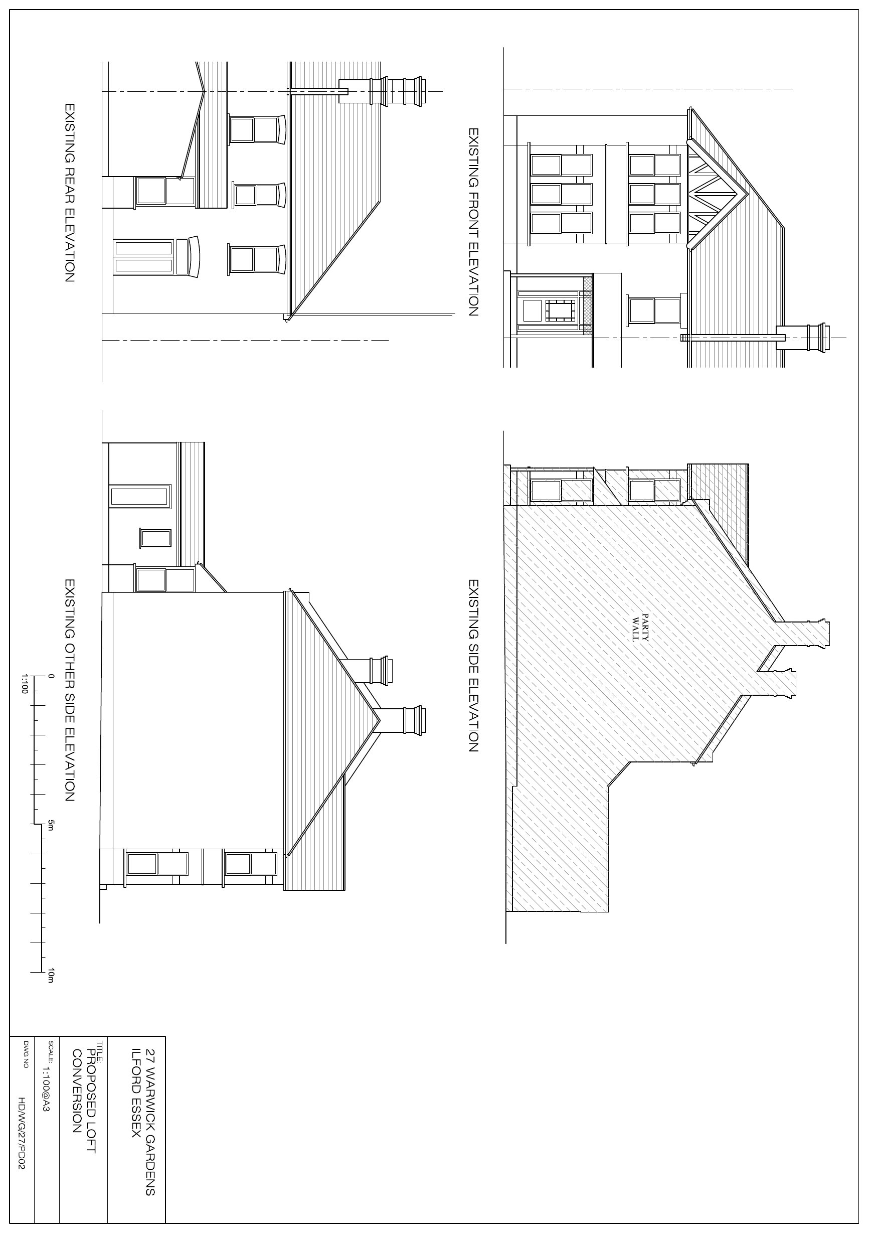
Existing plan - elevation
Archived · Original link
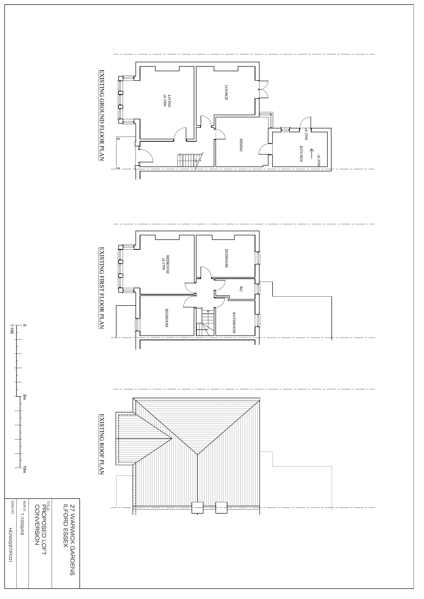
Existing plan - floor plan
Archived · Original link
Proposed plan - elevation
Archived · Original link
Proposed plan - floor plan
Archived · Original link

Have your say

Your comment matters. Councils must consider every representation that raises material planning considerations.

Write a comment