← London Borough of Redbridge

Status

Under Consideration Change of use
Received
Last month
New homes
0

Full proposal

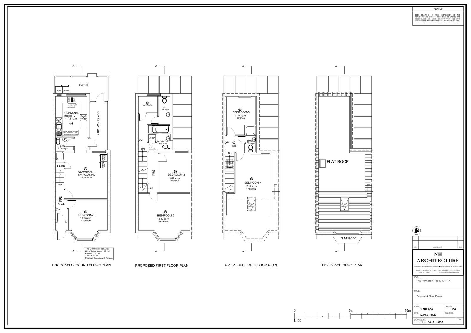
Change of use from a single dwelling house into a small HMO for up to 5 people with associated refuse and cycle storage. (Summary)

Documents

Design and access statement
Archived · Original link
Site/block plan
Archived · Original link
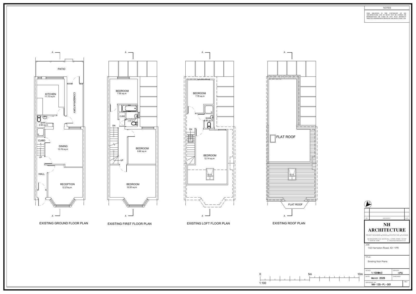
Existing plan - floor plan
Archived · Original link
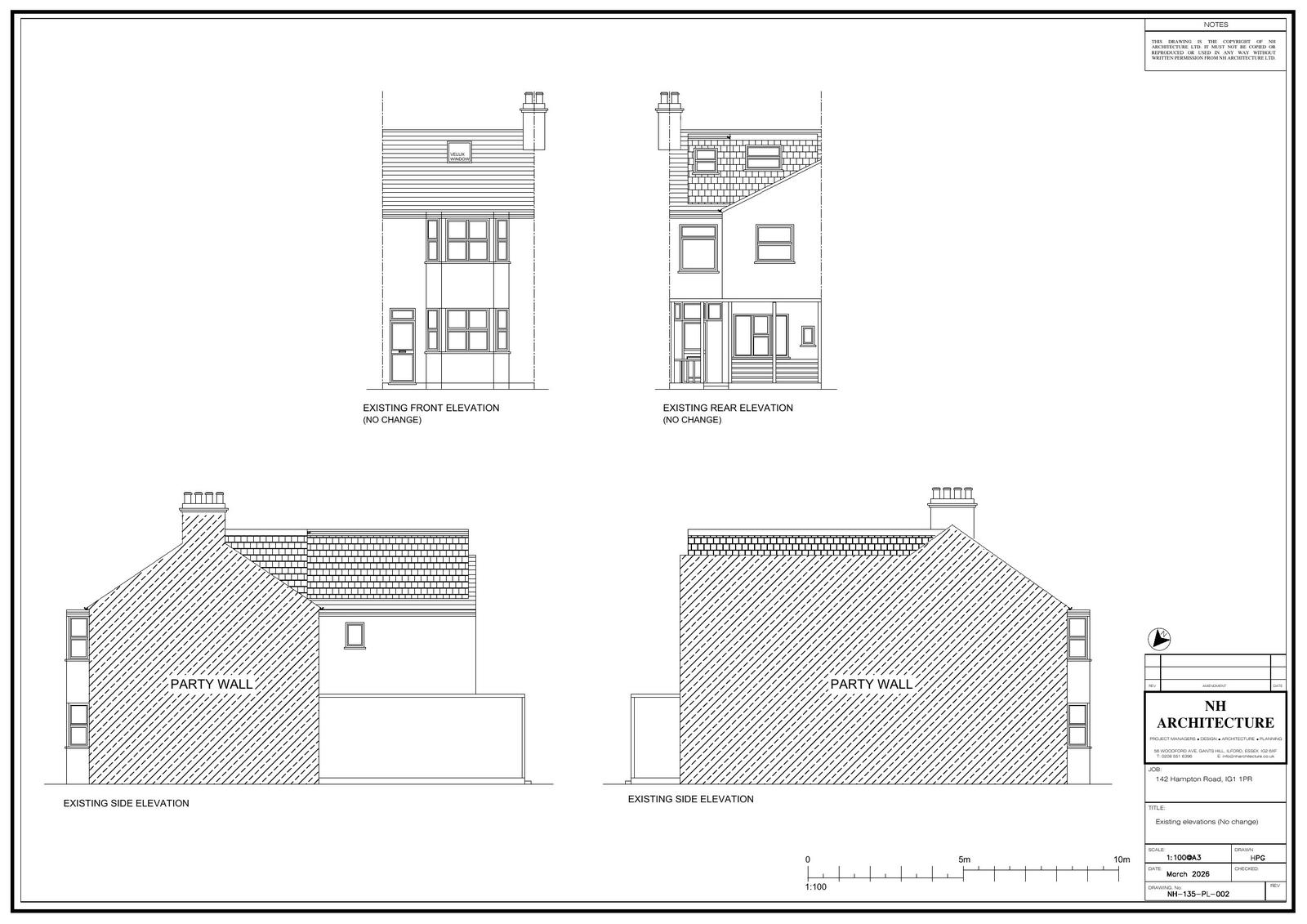
Existing plan - elevation
Archived · Original link
Proposed plan - floor plan
Archived · Original link
Planning statement
Archived · Original link

Have your say

Your comment matters. Councils must consider every representation that raises material planning considerations.

Write a comment