← London Borough of Redbridge

Status

Under Consideration House extension
Received
29 days ago
New homes
0

Full proposal

Single storey rear extension. Loft conversion with rear dormer. Hip to gable roof alterations. Two front rooflights. (summary)

Documents

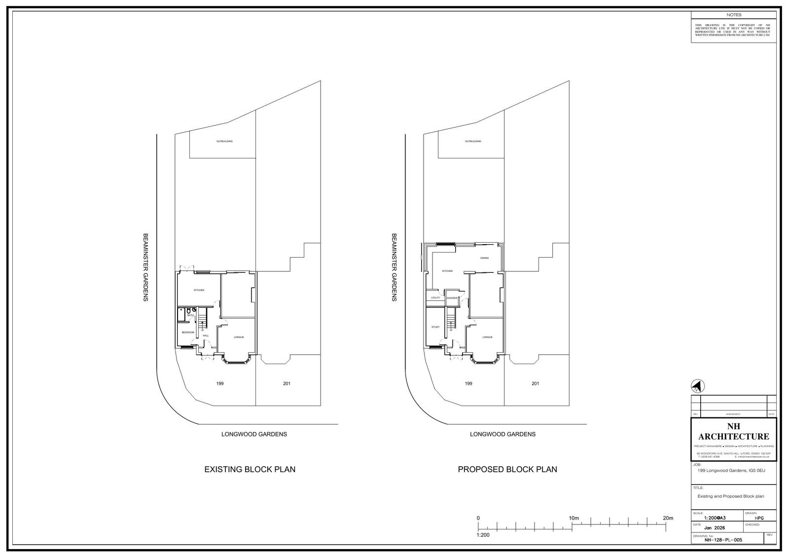
Site/block plan
Archived · Original link
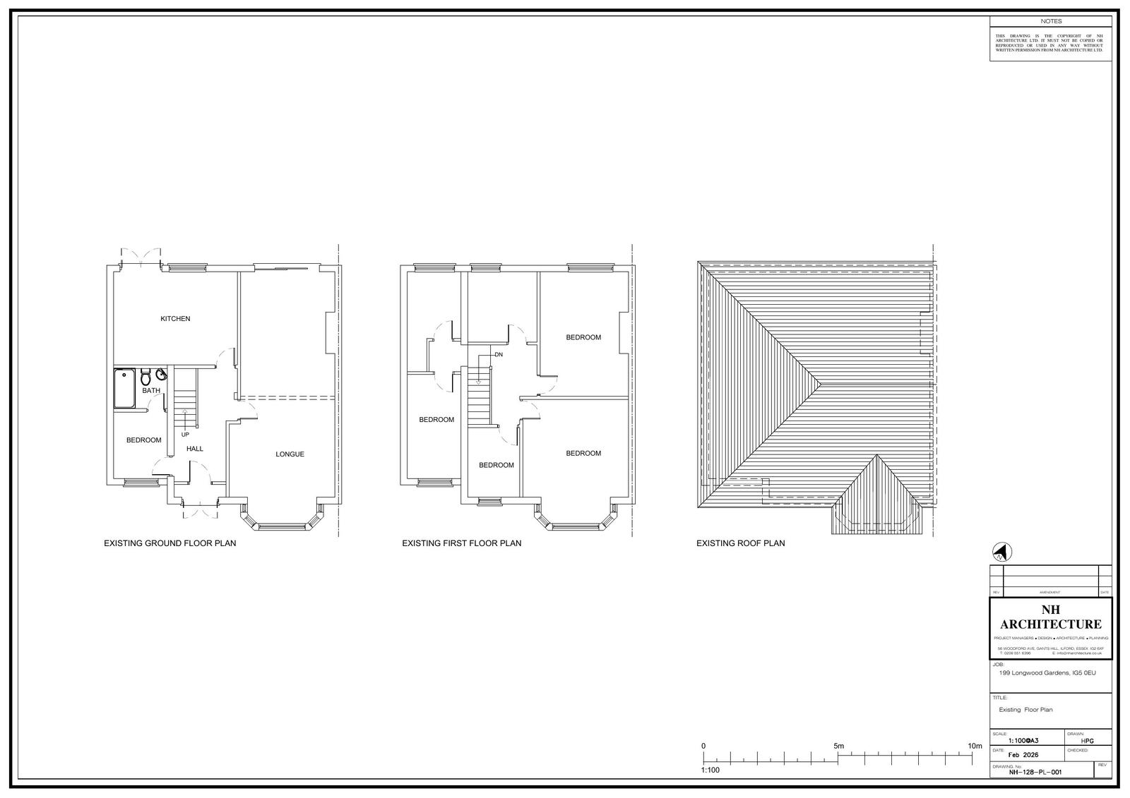
Existing plan - floor plan
Archived · Original link
Existing plan - elevation
Archived · Original link
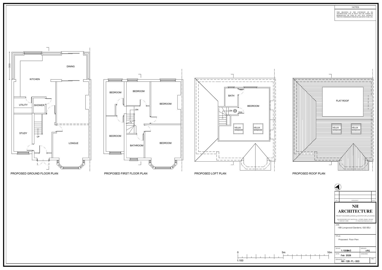
Proposed plan - floor plan
Archived · Original link
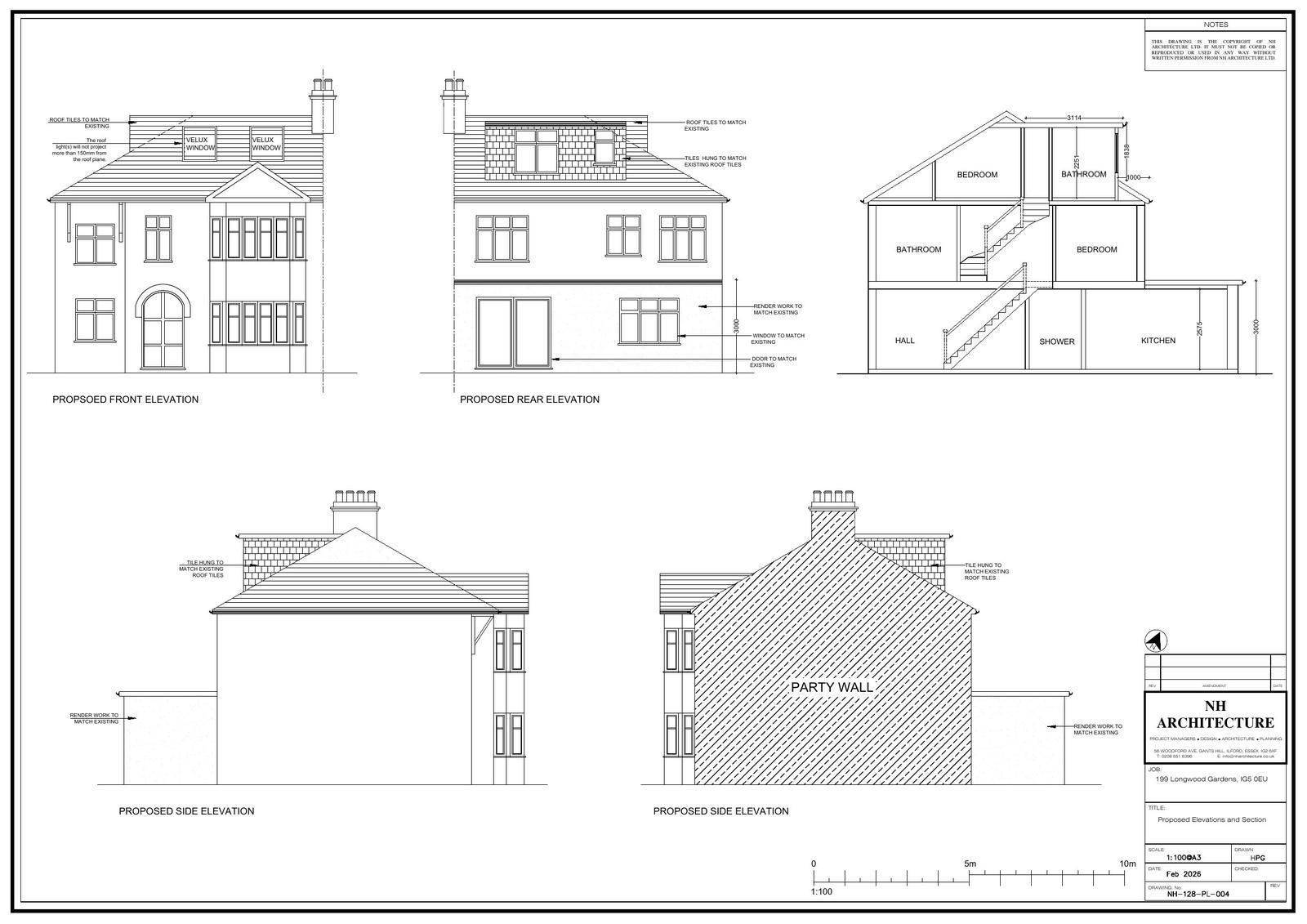
Proposed plan - elevation
Archived · Original link
Site/block plan
Archived · Original link

Have your say

Your comment matters. Councils must consider every representation that raises material planning considerations.

Write a comment