← Back to Redditch Borough Council

Status

Awaiting decision New housing
Received 30 May 2025
New dwellings 1

What you can do

Take Action

Make your voice heard. Authorities need to hear from people who support new homes.

Summary

Construction of one new dwelling and associated works.

Full Proposal

Erection of new dwelling and associated works

Detail pages

Documents

0.2 SITE PLAN-EXTG
Plans
Archived copy · Council link
024-3960 01A-LOCATION PLAN
Plans
Not downloaded · Council link
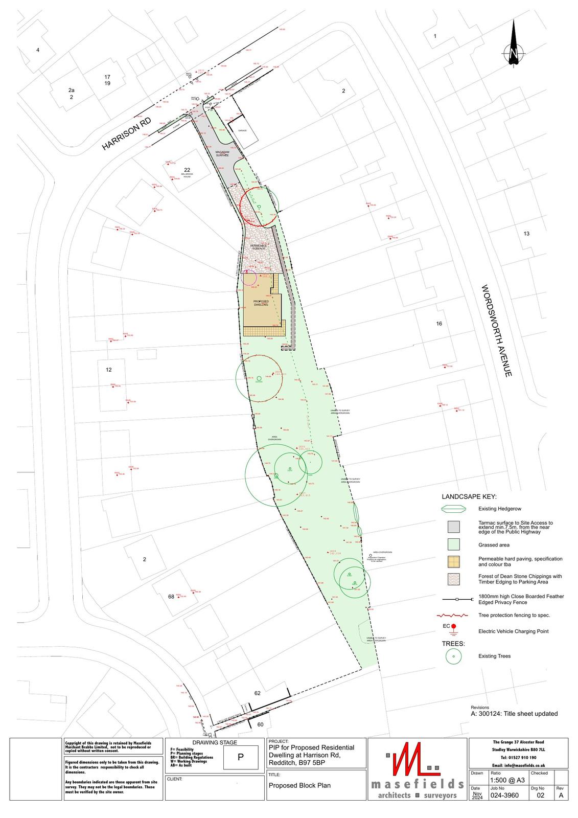
024-3960 02A-BLOCK PLAN
Plans
Not downloaded · Council link
024-3960 03A-PROPOSED DWELLING
Plans
Not downloaded · Council link
APPENDIX 1 - FLOOD MAP REPORT
Supporting Information
Not downloaded · Council link
APPENDIX 2 - SURFACE WATER MAP DATA
Supporting Information
Not downloaded · Council link
APPLICATIONFORMREDACTED
Application Form
Not downloaded · Council link
ATTACHMENTSUMMARY
Other
Not downloaded · Council link
ELEVATION (REAR) - PROPOSED_INCLUDED_IN_ELEVATION (FRONT) - PROPOSED
Plans
Not downloaded · Council link
ELEVATION (SIDE) - PROPOSED_INCLUDED_IN_ELEVATION (FRONT) - PROPOSED
Plans
Not downloaded · Council link
ENVIRONMENTAL HEALTH & LICENSING
Consultee Comments
Not downloaded · Council link
FLOOR PLAN_INCLUDED_IN_ELEVATION (FRONT) - PROPOSED
Plans
Not downloaded · Council link
HIGHWAYS RESPONSE
Consultee Comments
Not downloaded · Council link
NORTH WORCESTERSHIRE WATER MANAGEMENT
Agreement to extend time
Not downloaded · Council link
PEA AND BNG REPORT - HARRISON ROAD
Plans
Not downloaded · Council link
PLANNING STATEMENT_INCLUDED_IN_DESIGN AND ACCESS STATEMENT
Supporting Information
Not downloaded · Council link
PROPOSAL
Other
Not downloaded · Council link
PROTECTED SPECIES SURVEY_INCLUDED_IN_BIODIVERSITY SURVEY AND REPORT
Plans
Not downloaded · Council link
SITEBLOCK PLAN - EXISTING_INCLUDED_IN_SITE LEVELS PLAN - EXISTING
Plans
Not downloaded · Council link
STATEMENT - HARRISON ROAD
Plans
Not downloaded · Council link
STATUTORY_BIODIVERSITY_METRIC_CONDITION_ASSESSMENTS-_MAR 25
Plans
Not downloaded · Council link
THE_STATUTORY_BIODIVERSITY_METRIC_CALCULATION_TOOL
Plans
Not downloaded · Council link
TREE REPORT - HARRISON ROAD
Supporting Information
Not downloaded · Council link
TREES RESPONSE
Consultee Comments
Not downloaded · Council link