← Redditch Borough Council

Status

Pending Consideration New housing
Received
24 Jul 2025
New homes
1

Full proposal

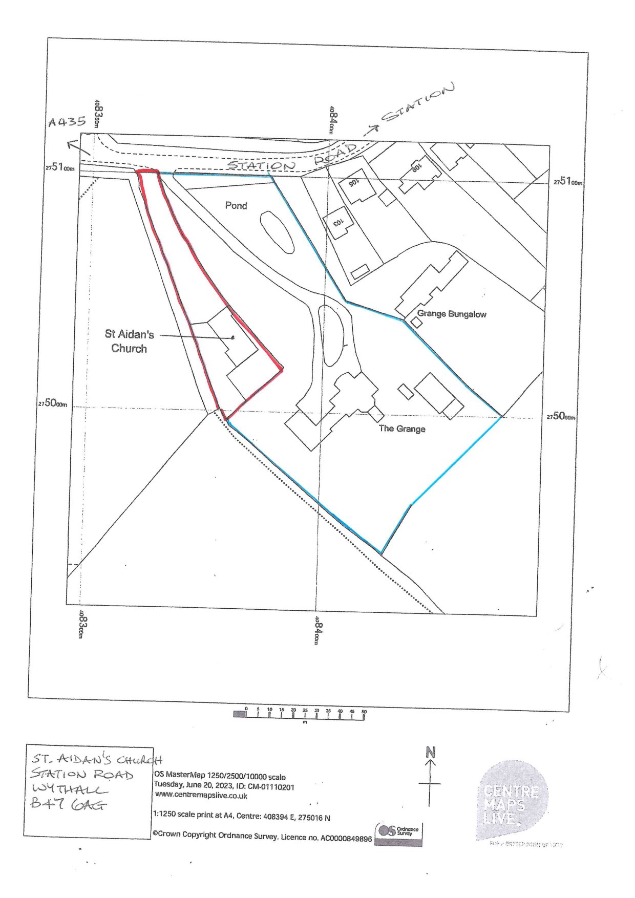
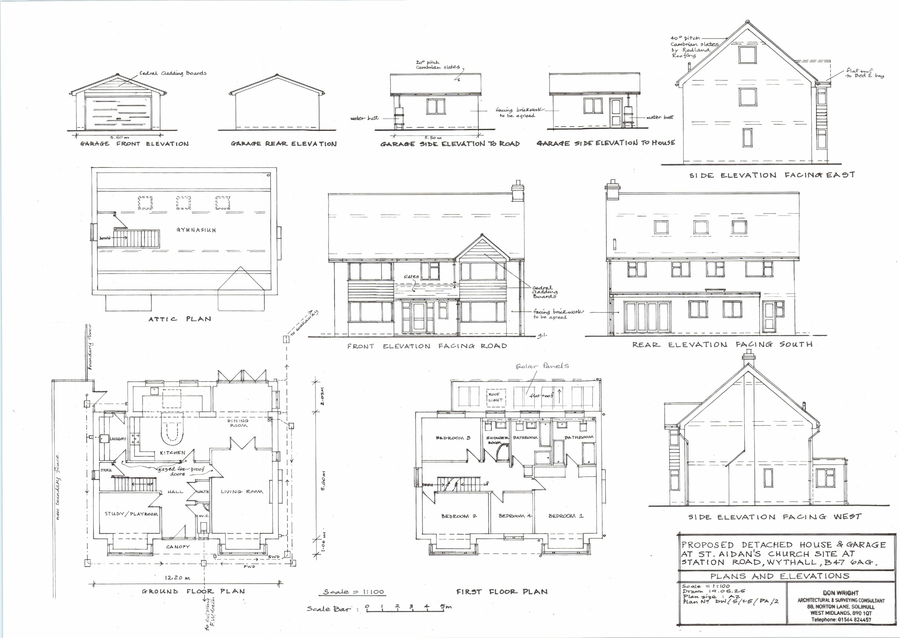
Demolition of church and erection of a dwelling house and garage

Documents

Application Form
Archived · Original link
Supporting Information
Archived · Original link
Supporting Information
Archived · Original link
BNG METRIC
Supporting Information
Not yet archived · Original link
Plans
Archived · Original link
Supporting Information
Archived · Original link
Supporting Information
Archived · Original link
Plans
Archived · Original link
Plans
Archived · Original link
Supporting Information
Archived · Original link

Have your say

Your comment matters. Councils must consider every representation that raises material planning considerations.

Write a comment