← Redditch Borough Council

Status

Pending Consideration Change of use
Received
10 Feb 2026
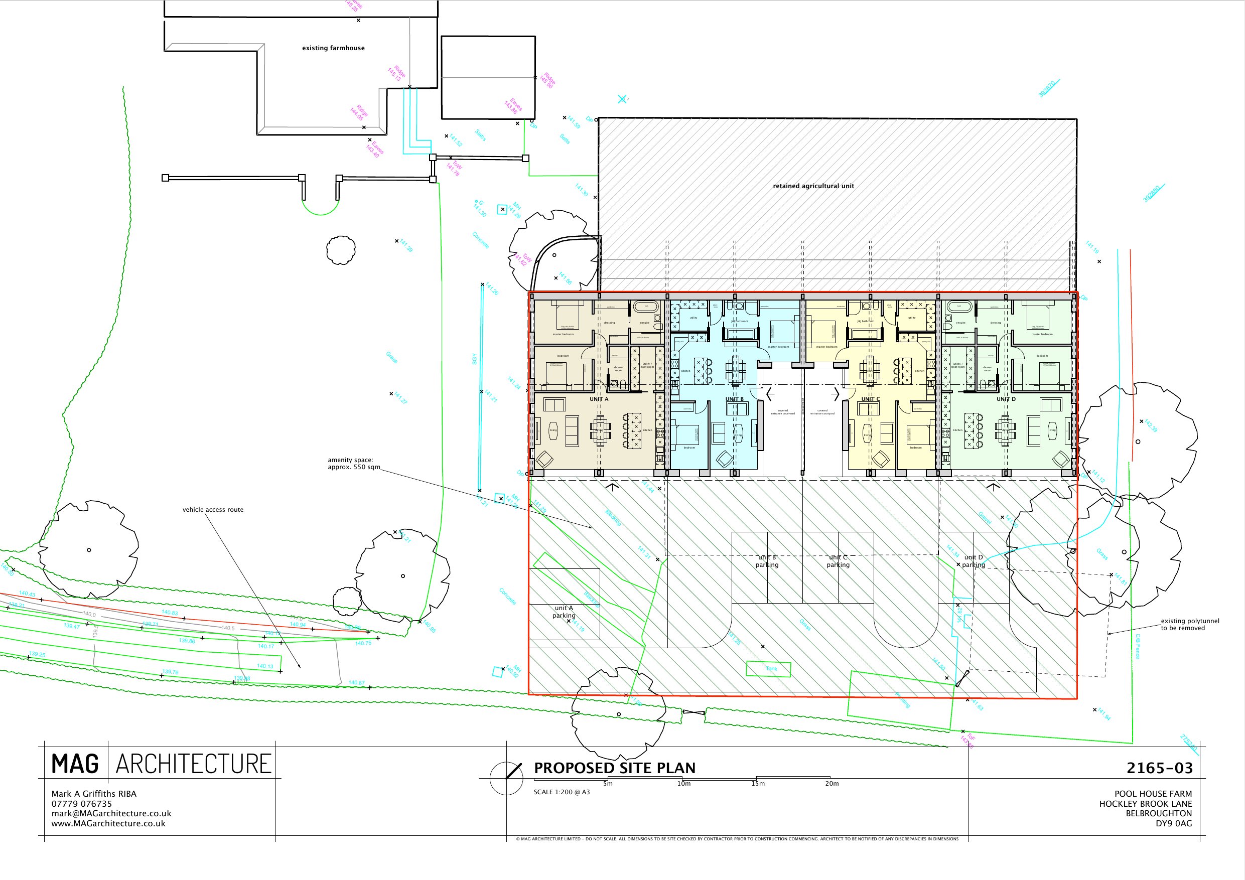
New homes
4

Full proposal

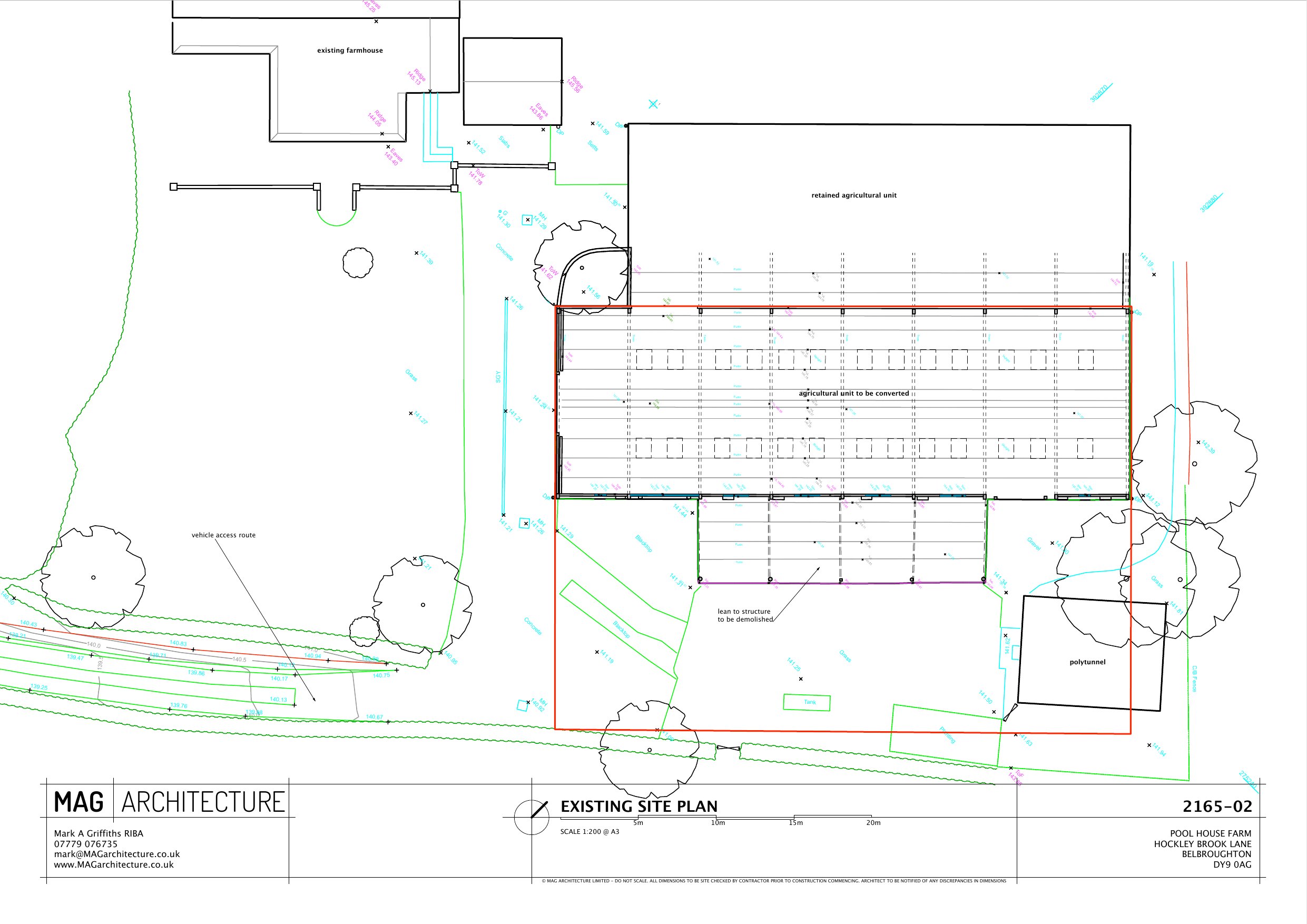
Existing concrete framed agricultural building to be converted into 4 no. dwellings, utilising exising access and driveway. Removal of attached timber framed structure.

Documents

2165 CLASS Q STATEMENT 210126
Supporting Information
Not yet archived · Original link
2165 ECOLOGICAL SURVEY
Supporting Information
Not yet archived · Original link
2165 STRUCTURAL INSPECTION REPORT
Supporting Information
Not yet archived · Original link
2165-04 EXISTING LAYOUT PLAN
Plans
Not yet archived · Original link
2165-05 EXISTING ELEVATIONS 1
Plans
Not yet archived · Original link
2165-06 EXISTING ELEVATIONS 2
Plans
Not yet archived · Original link
2165-07 PROPOSED LAYOUT PLAN
Plans
Not yet archived · Original link
2165-08 PROPOSED ELEVATIONS 1
Plans
Not yet archived · Original link
2165-09 PROPOSED ELEVATIONS 2.
Plans
Not yet archived · Original link
Application Form
Application Form
Not yet archived · Original link
LOCATION PLAN
Plans
Not yet archived · Original link

Have your say

Your comment matters. Councils must consider every representation that raises material planning considerations.

Write a comment