← Ribble Valley Borough Council

Status

Decided - Final Decision New housing
Received
11 Mar 2021
New homes
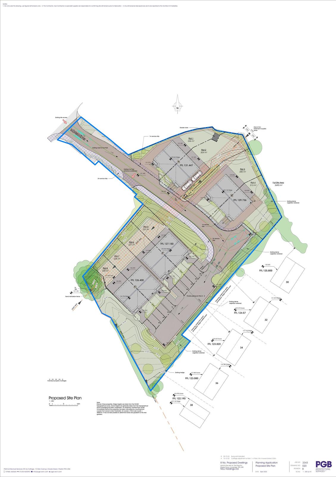
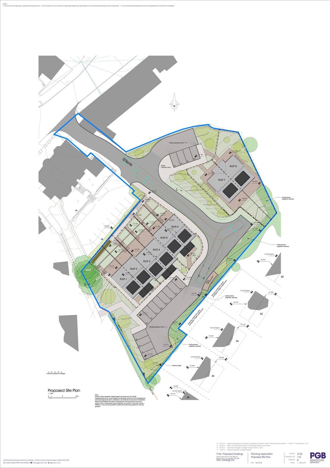
8

Full proposal

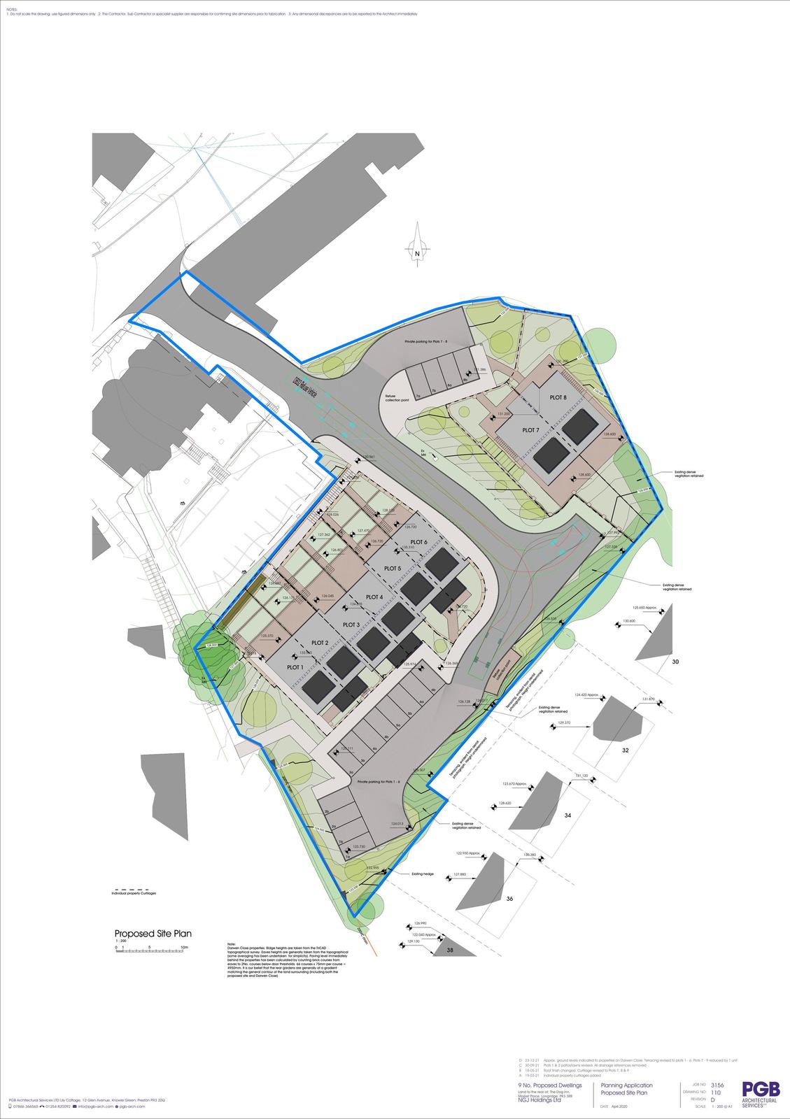
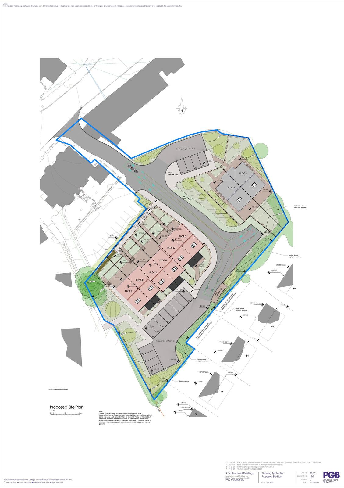
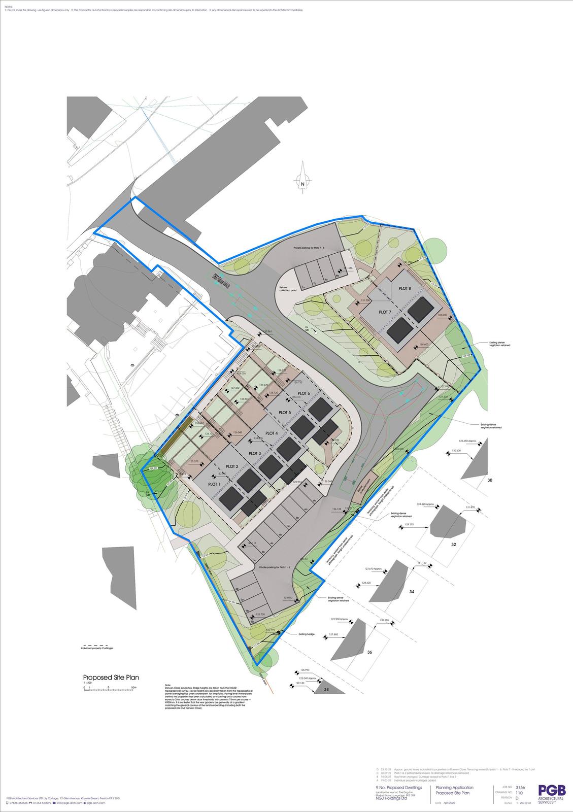
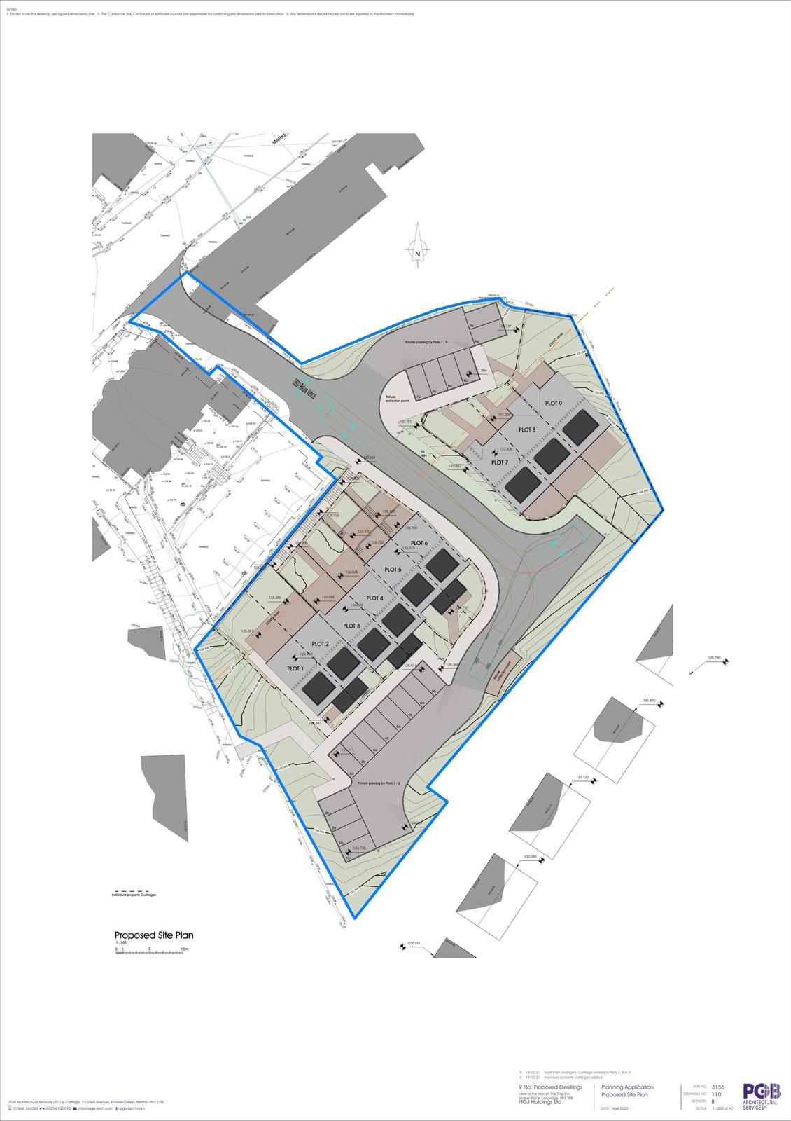
Applications for full consent Proposed erection of 8 new dwellings and associated works.

Documents

Document
Archived · Original link
Document
Archived · Original link
Document
Archived · Original link
Document
Archived · Original link
Document
Archived · Original link
Document
Archived · Original link
Document
Archived · Original link
Document
Archived · Original link
Document
Archived · Original link
21 0275 Officer Report Committee 09012025.docx
Document
Not yet archived · Original link
Document
Archived · Original link
Document
Archived · Original link
Document
Archived · Original link
Document
Archived · Original link
Document
Archived · Original link
Document
Archived · Original link
Document
Archived · Original link

Have your say

Your comment matters. Councils must consider every representation that raises material planning considerations.

Write a comment