← Ribble Valley Borough Council
3/2023/1001
Ribble Valley Borough Council
Status
Withdrawn
House extension
Received
05 Dec 2023
New homes
0
Full proposal
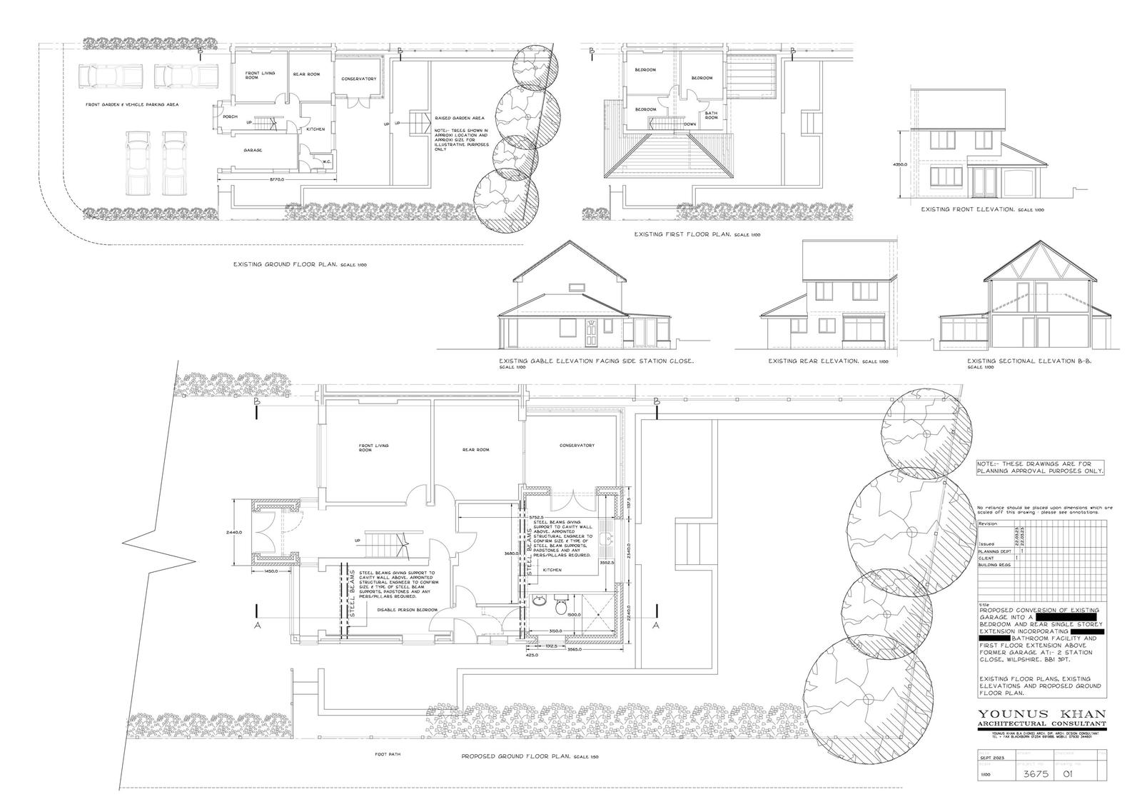
Applications for full consent Proposed conversion of existing garage into a ground-floor bedroom with first-floor extension above; replacement front porch; single-storey extension to rear.
Documents
Have your say
Your comment matters. Councils must consider every representation that raises material planning considerations.