← Ribble Valley Borough Council
3/2024/0256
Ribble Valley Borough Council
Status
Withdrawn
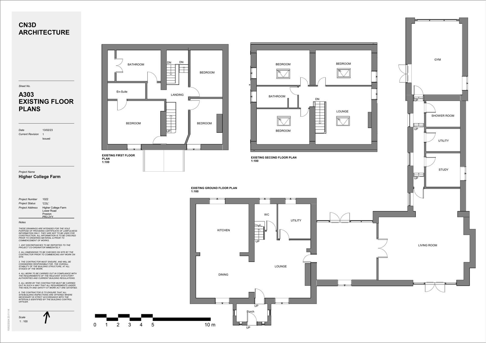
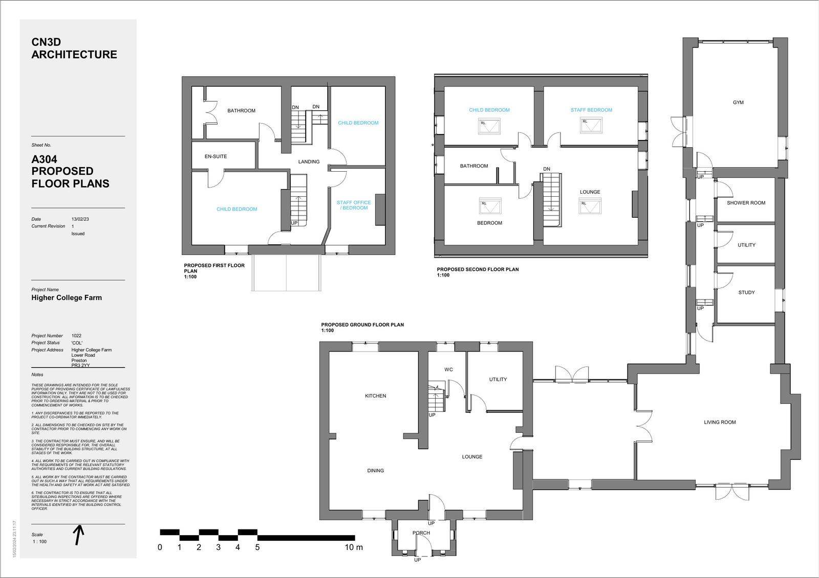
Change of use
Received
28 Mar 2024
New homes
0
Full proposal
Applications for full consent Proposed change of use of existing dwelling (use class C3) to children's assessment centre for care (use class C2 residential institution)
Documents
Have your say
Your comment matters. Councils must consider every representation that raises material planning considerations.