← Ribble Valley Borough Council

Status

Decided - Final Decision New housing
Received
09 Apr 2024
New homes
3

Full proposal

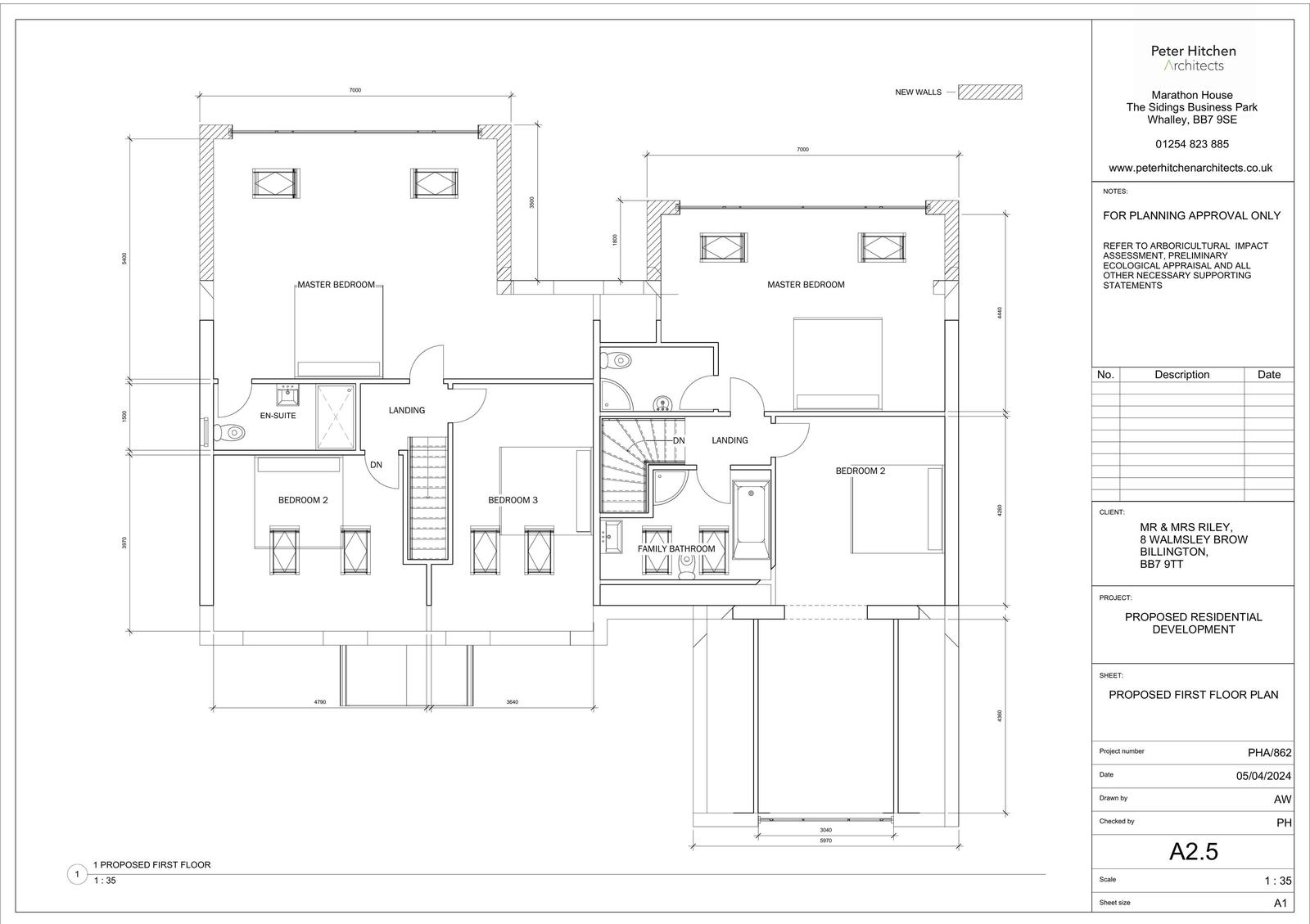
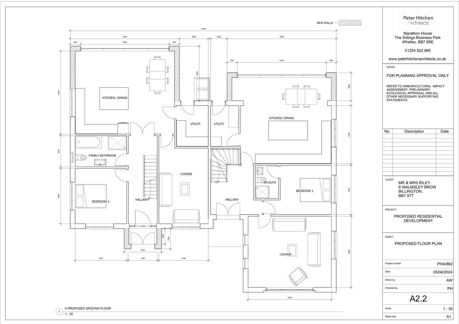
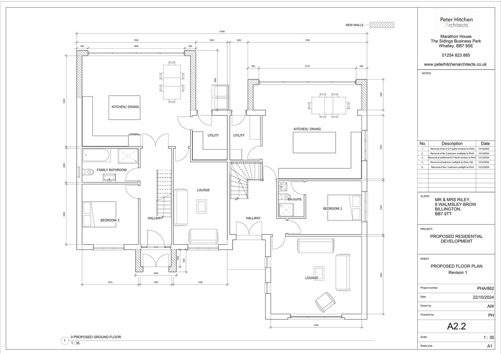
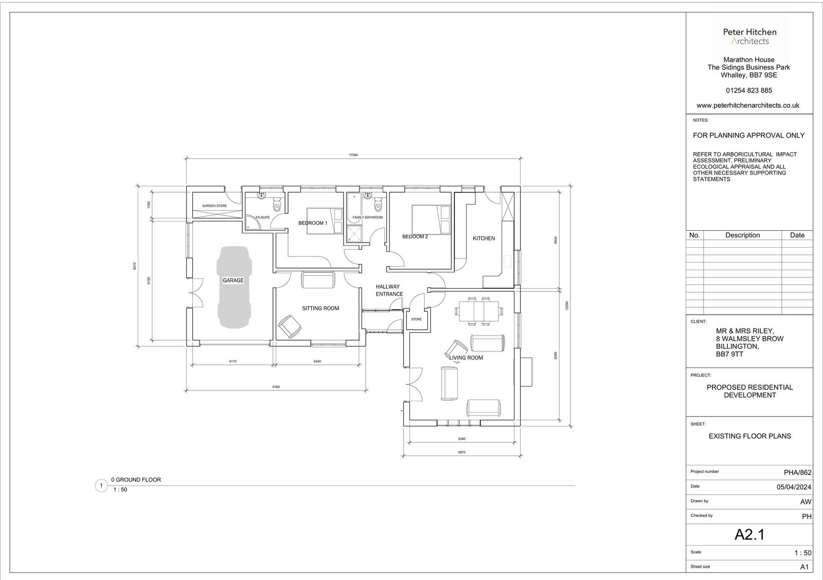
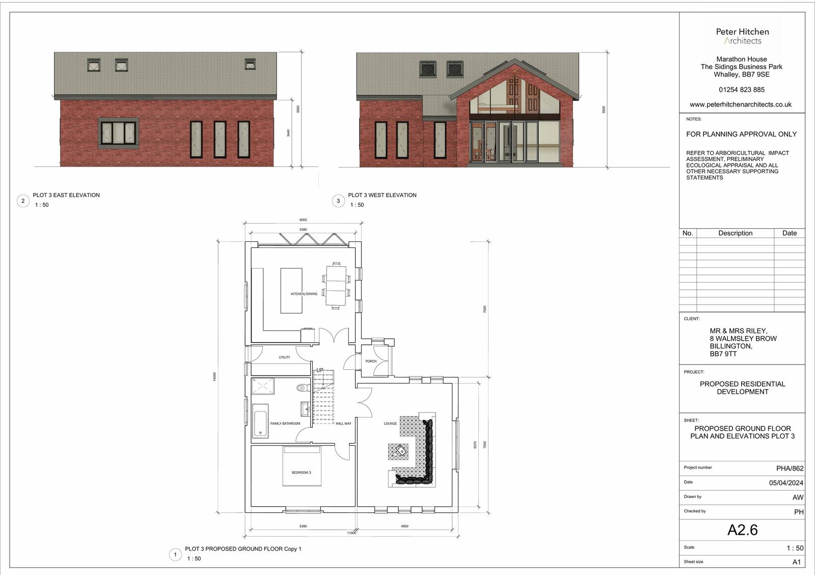
Applications for full consent Proposed conversion and extension of existing bungalow into two two-storey, semi-detached dwellings, and construction of one new detached, two-storey dwelling.

Documents

Document
Archived · Original link
24 0286 Delegated Report.docx
Document
Not yet archived · Original link
Document
Archived · Original link
Document
Archived · Original link

Have your say

Your comment matters. Councils must consider every representation that raises material planning considerations.

Write a comment