← Ribble Valley Borough Council
3/2024/0464
Ribble Valley Borough Council
Status
Decided - Final Decision
New housing
Received
06 Jun 2024
New homes
1
Full proposal
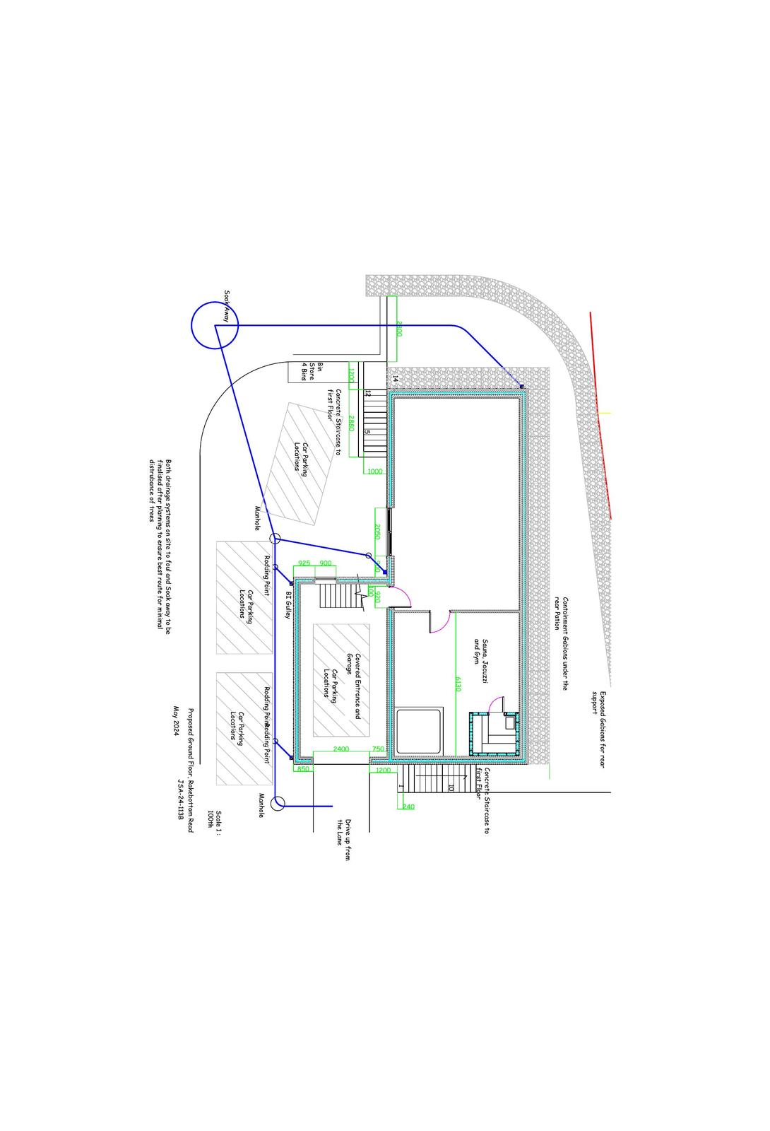
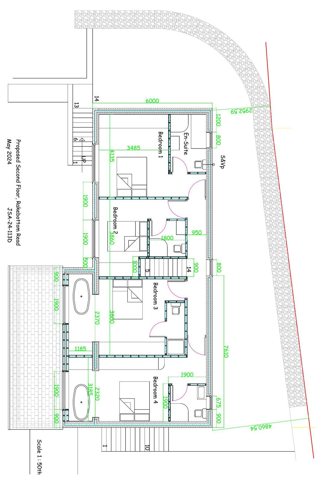
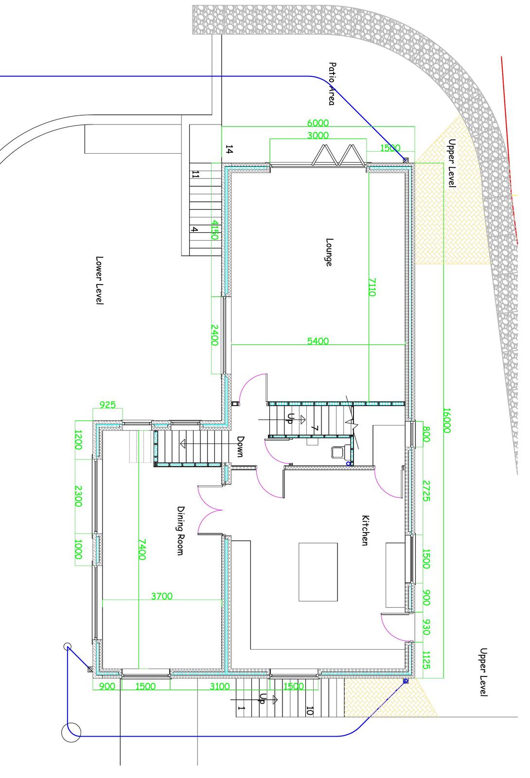
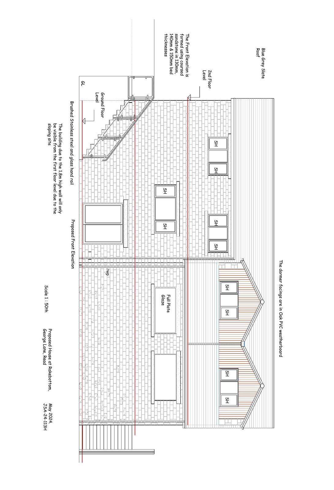
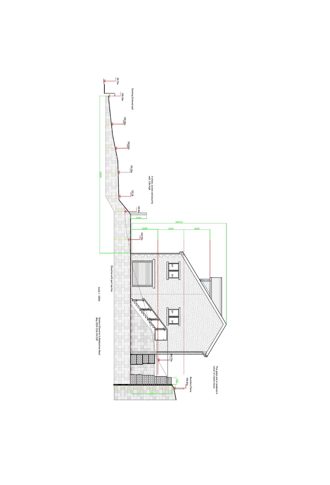
Applications for full consent Proposed two-storey detached dwelling with integral garage, parking and landscaping. To include widening of existing vehicular access to the existing electricity substation to provide access to the new dwelling.
Documents
Have your say
Your comment matters. Councils must consider every representation that raises material planning considerations.