← Ribble Valley Borough Council
3/2024/0615
Ribble Valley Borough Council
Status
Decided - Final Decision
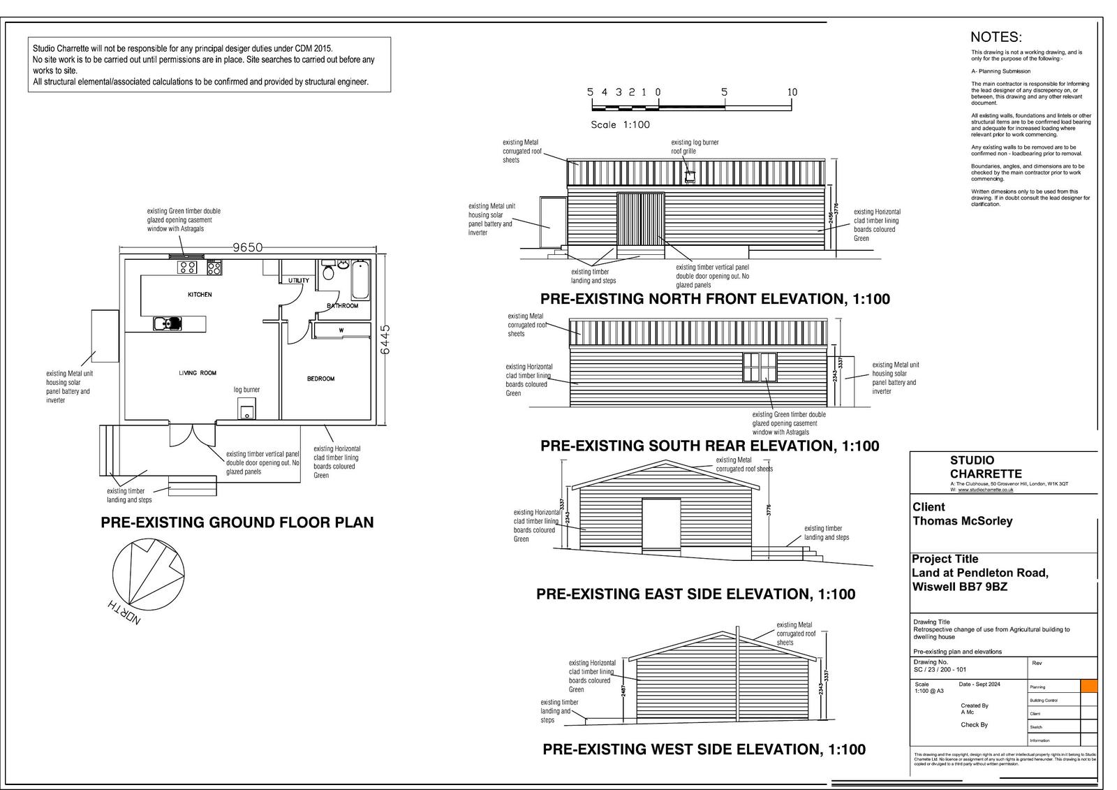
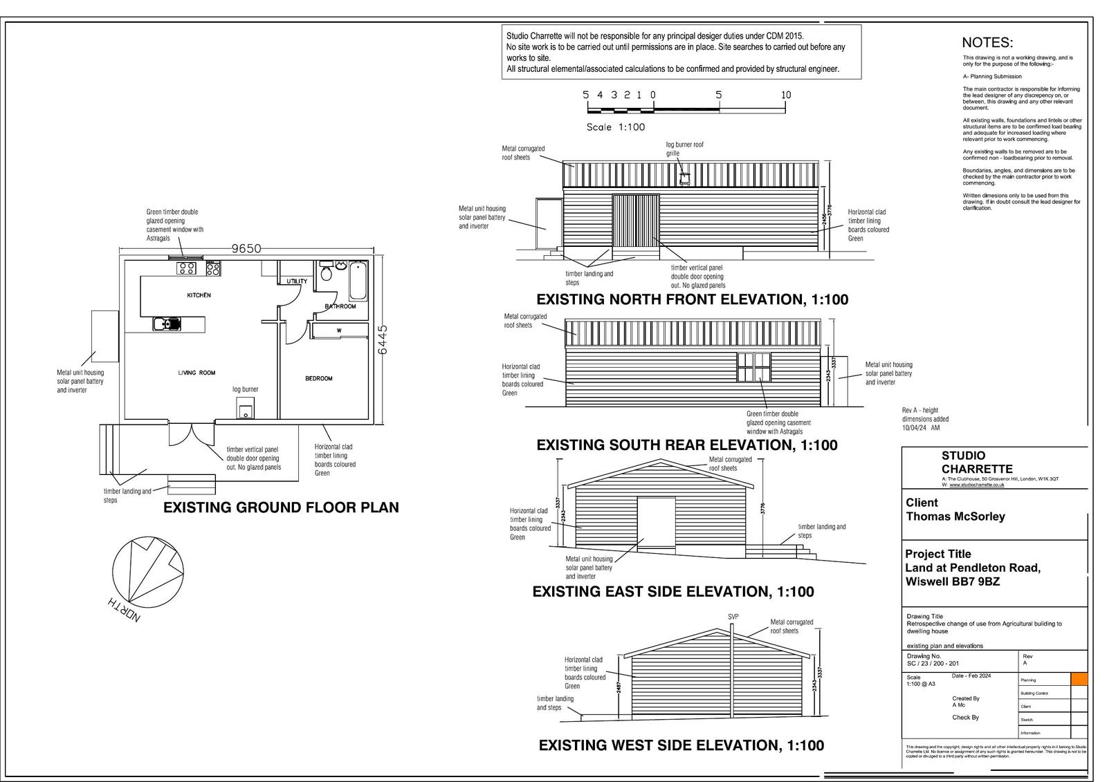
Change of use
Received
19 Jul 2024
New homes
1
Full proposal
Applications for full consent Proposed change of use from agricultural building to single residential dwelling and associated residential curtilage together with hardstanding/parking area (part retrospective)
Documents
Have your say
Your comment matters. Councils must consider every representation that raises material planning considerations.