← Ribble Valley Borough Council
3/2024/0720
Ribble Valley Borough Council
Status
Decided - Final Decision
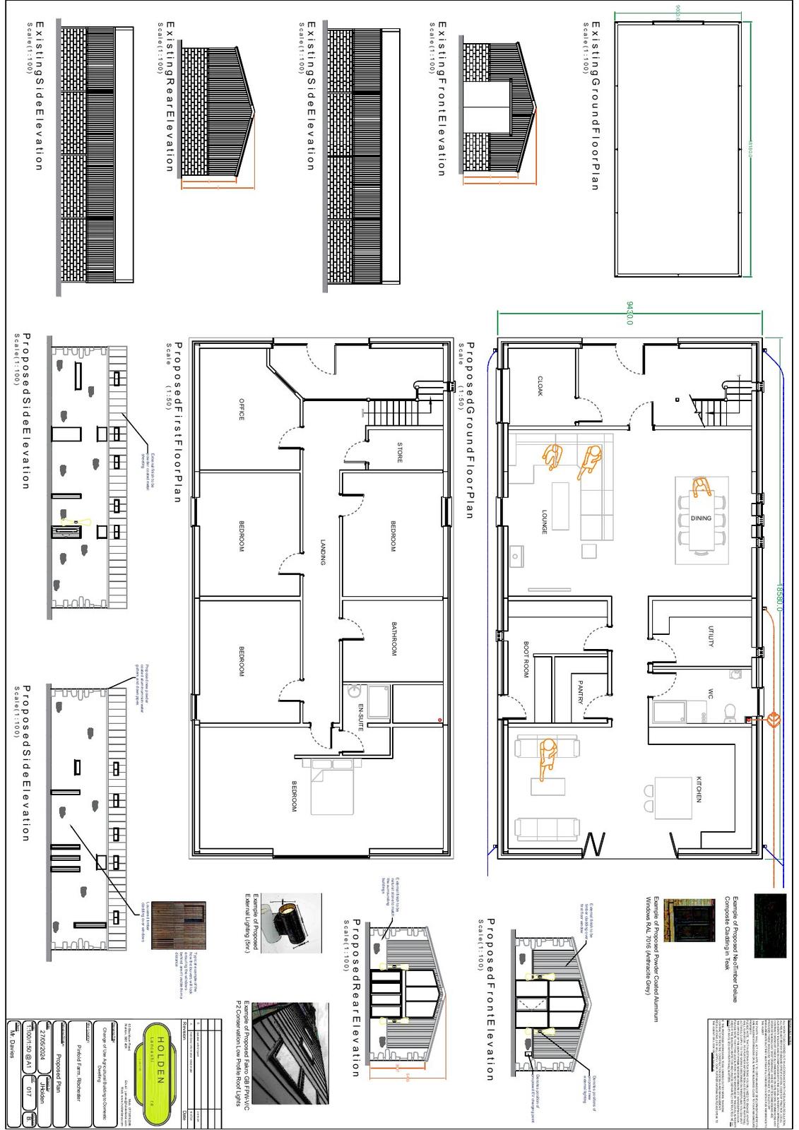
Change of use
Received
23 Aug 2024
New homes
1
Full proposal
Applications for full consent Proposed conversion of existing agricultural building to dwelling and new domestic curtilage.
Documents
Have your say
Your comment matters. Councils must consider every representation that raises material planning considerations.