← Ribble Valley Borough Council

Status

Decided - Final Decision House extension
Received
17 Sep 2024
New homes
0

Full proposal

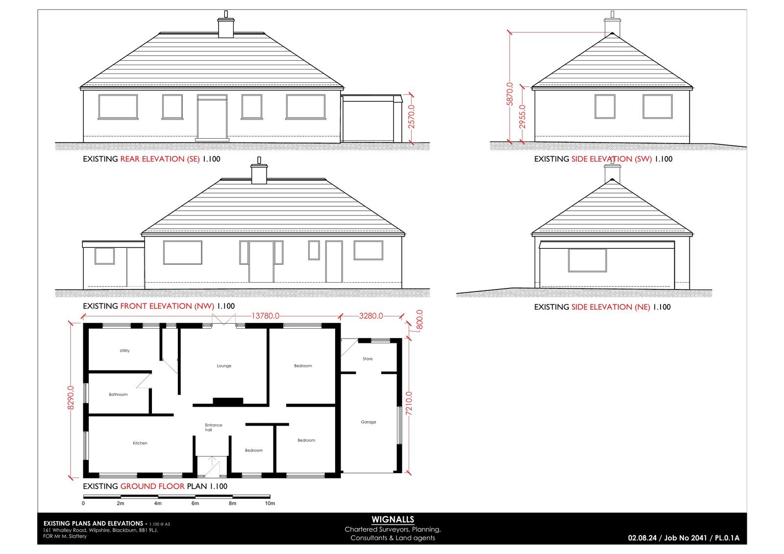
Applications for full consent Proposed conversion of garage to habitable room with first floor extension over. Proposed new roof including hip to gable and increase in eaves and ridge height. New dormers and rooflights to front and rear and new peak roof to front with new cladding.

Documents

Document
Archived · Original link
24 0774 Decision Notice.docx
Document
Not yet archived · Original link
24 0774 Delegated Report.docx
Document
Not yet archived · Original link
Document
Archived · Original link
Document
Archived · Original link
Document
Archived · Original link
Document
Archived · Original link
Document
Archived · Original link
Document
Archived · Original link

Have your say

Your comment matters. Councils must consider every representation that raises material planning considerations.

Write a comment