← Ribble Valley Borough Council

Status

Decided - Final Decision House extension
Received
20 Sep 2024
New homes
0

Full proposal

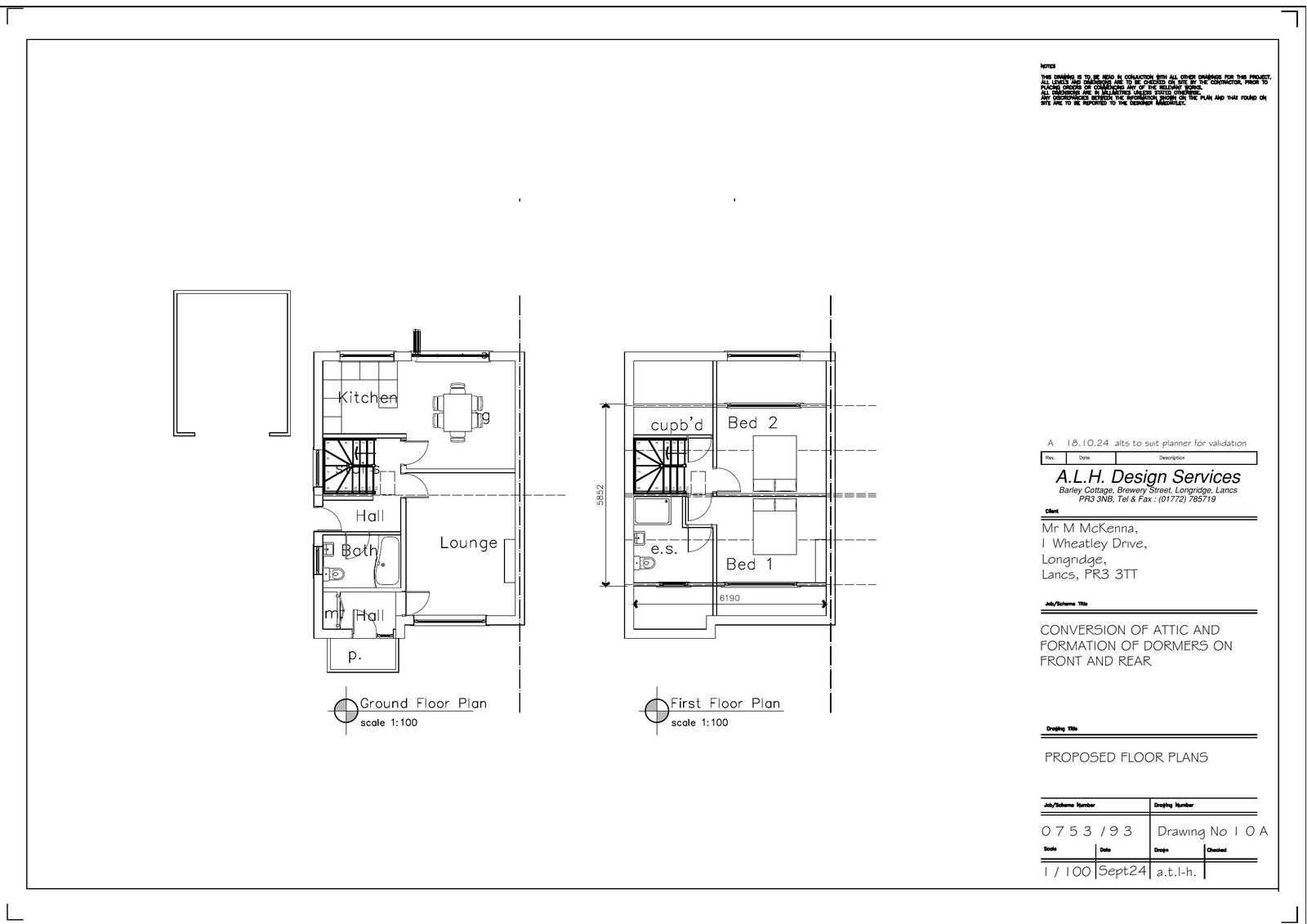
Applications for full consent Proposed conversion of loft and installation of dormers to front and rear roofslopes.

Documents

Document
Archived · Original link
24 0788 Decision Notice.docx
Document
Not yet archived · Original link
24 0788 Delegated Report.docx
Document
Not yet archived · Original link
Document
Archived · Original link

Have your say

Your comment matters. Councils must consider every representation that raises material planning considerations.

Write a comment