← Ribble Valley Borough Council

Status

Withdrawn Change of use
Received
09 Oct 2024
New homes
0

Full proposal

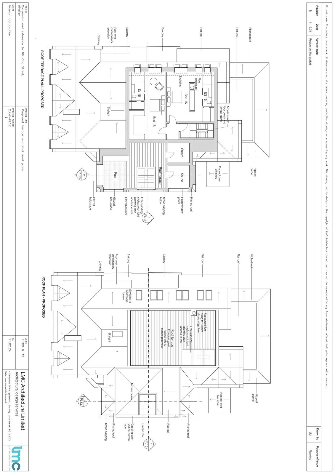
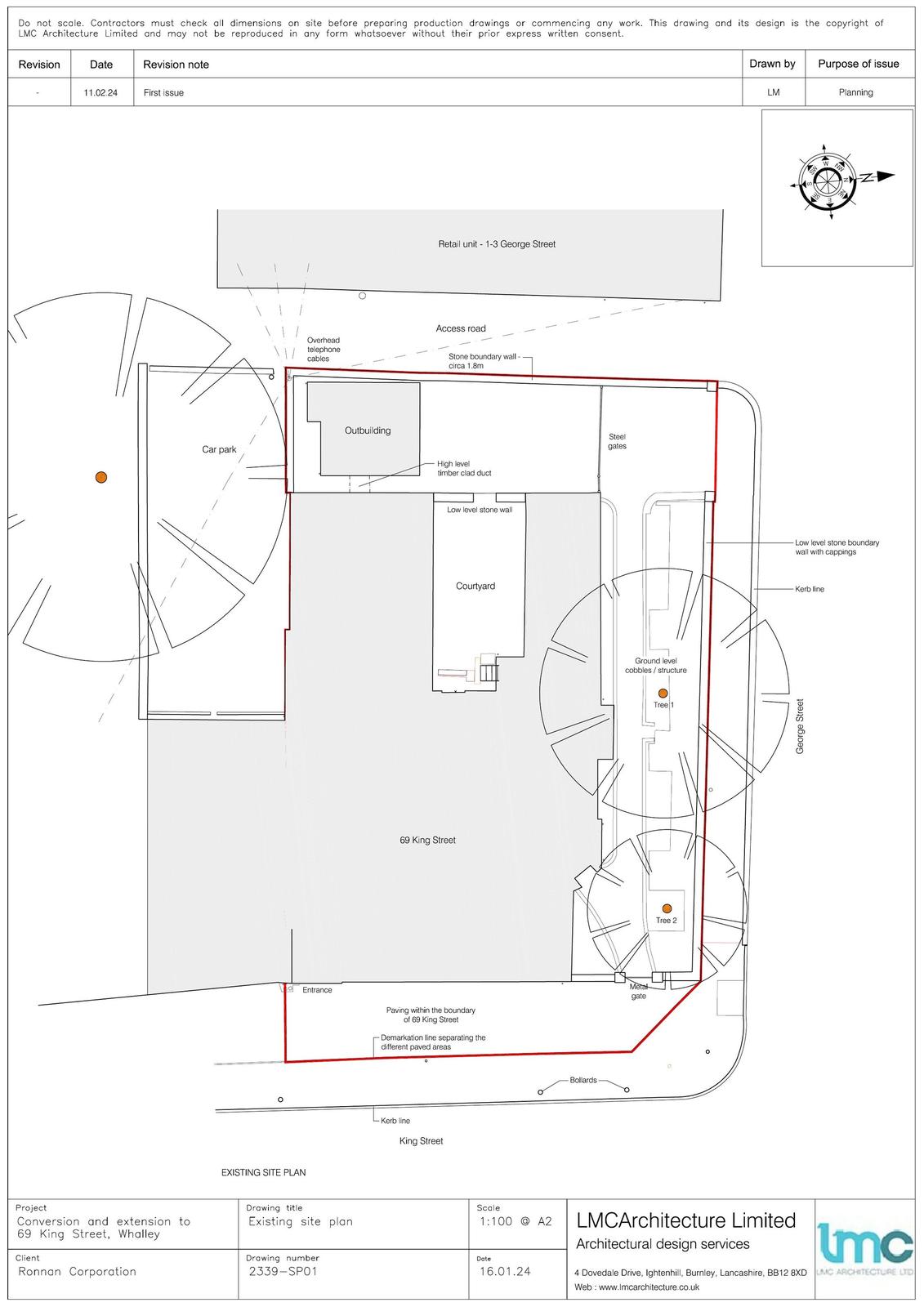
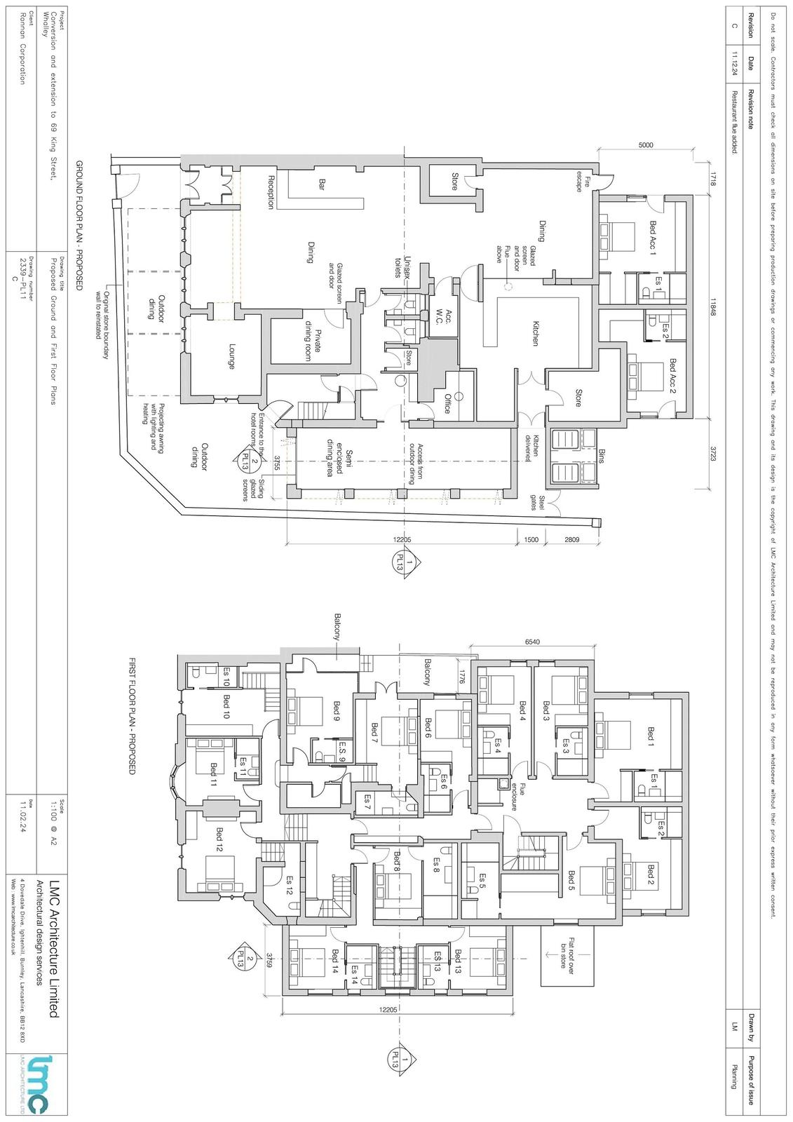
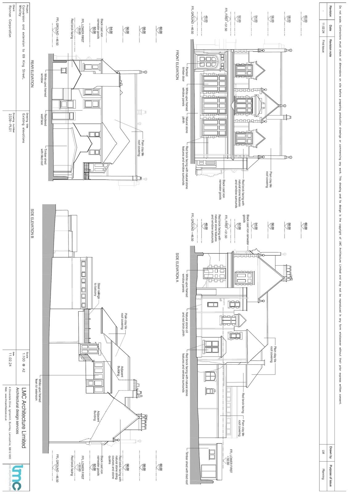
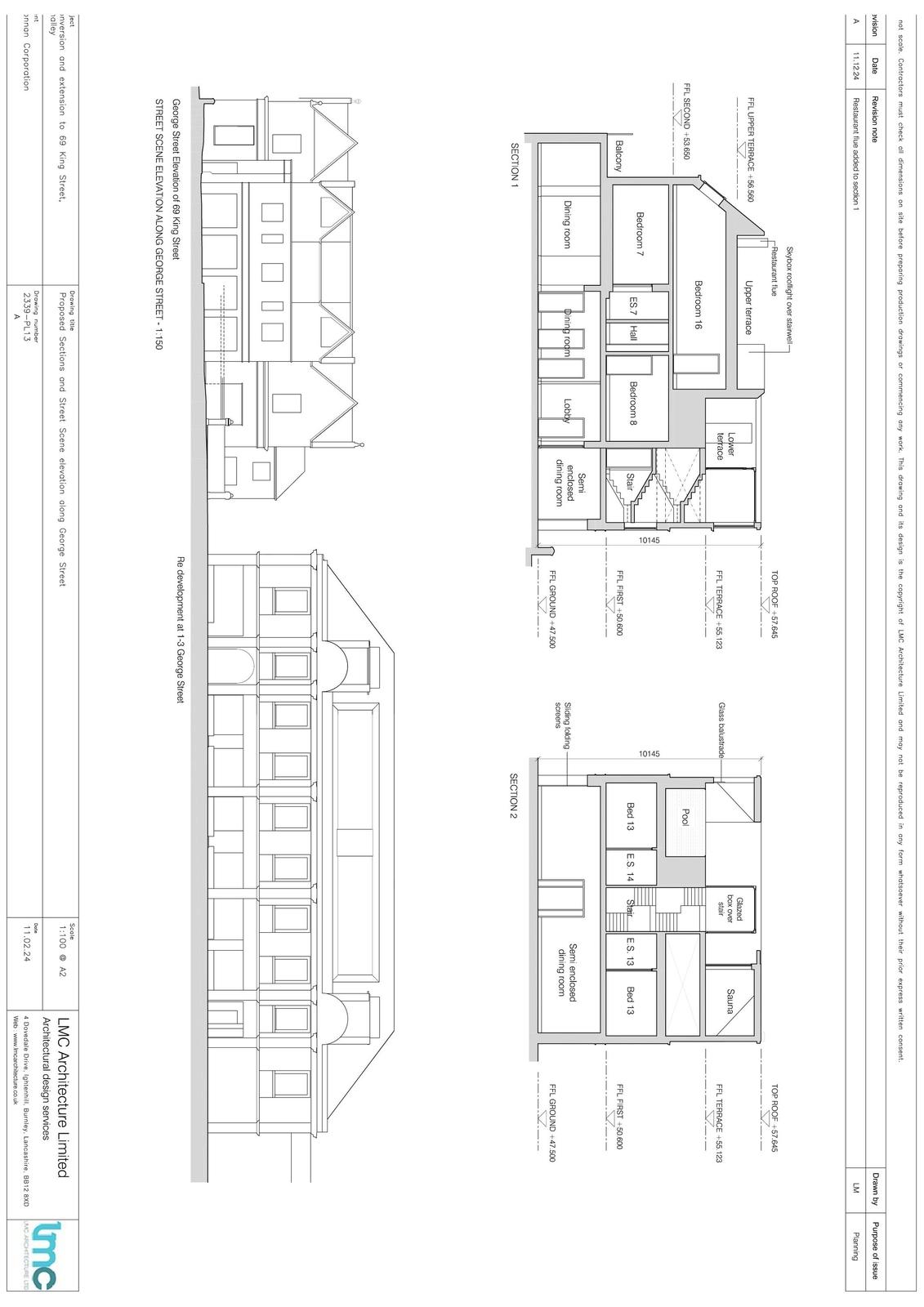
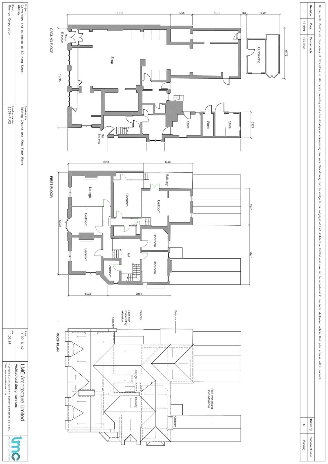
Applications for full consent Proposed conversion of an existing retail unit with accommodation at first floor over into a boutique hotel with restaurant including three-storey extension to side, two and three storey extensions to rear, building up and extension of existing rear outriggers with addition of windows and rooflights, roof terraces, new flue above ridge level, new bin store to side, new boundary treatment to side and rear and use of land to front and side for outdoor dining.

Documents

Document
Archived · Original link
Document
Archived · Original link
Document
Archived · Original link
Document
Archived · Original link

Have your say

Your comment matters. Councils must consider every representation that raises material planning considerations.

Write a comment