← Ribble Valley Borough Council

Status

APPEAL LODGED New housing
Received
14 Oct 2024
New homes
1

Full proposal

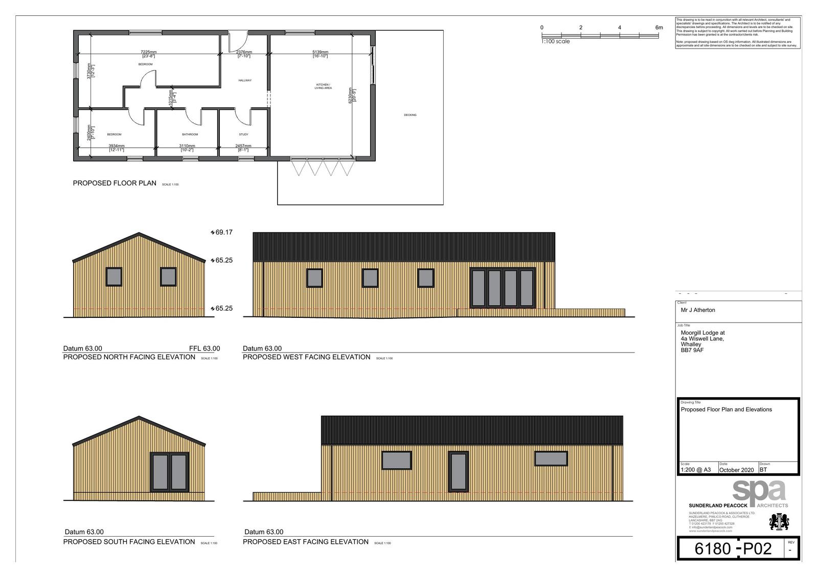
Applications for full consent Retrospective planning application for the retention of a single dwelling house and associated parking, soft and hard landscaping and associated works.

Documents

Document
Archived · Original link
Document
Archived · Original link
Document
Archived · Original link
24 0851 Officer Report Committee 09012025.docx
Document
Not yet archived · Original link

Have your say

Your comment matters. Councils must consider every representation that raises material planning considerations.

Write a comment