← Ribble Valley Borough Council

Status

Decided - Final Decision House extension
Received
29 Oct 2024
New homes
0

Full proposal

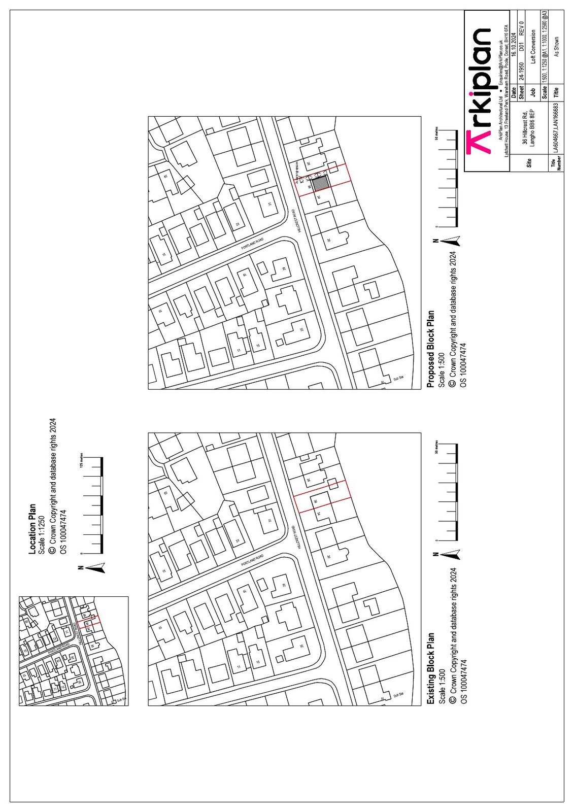
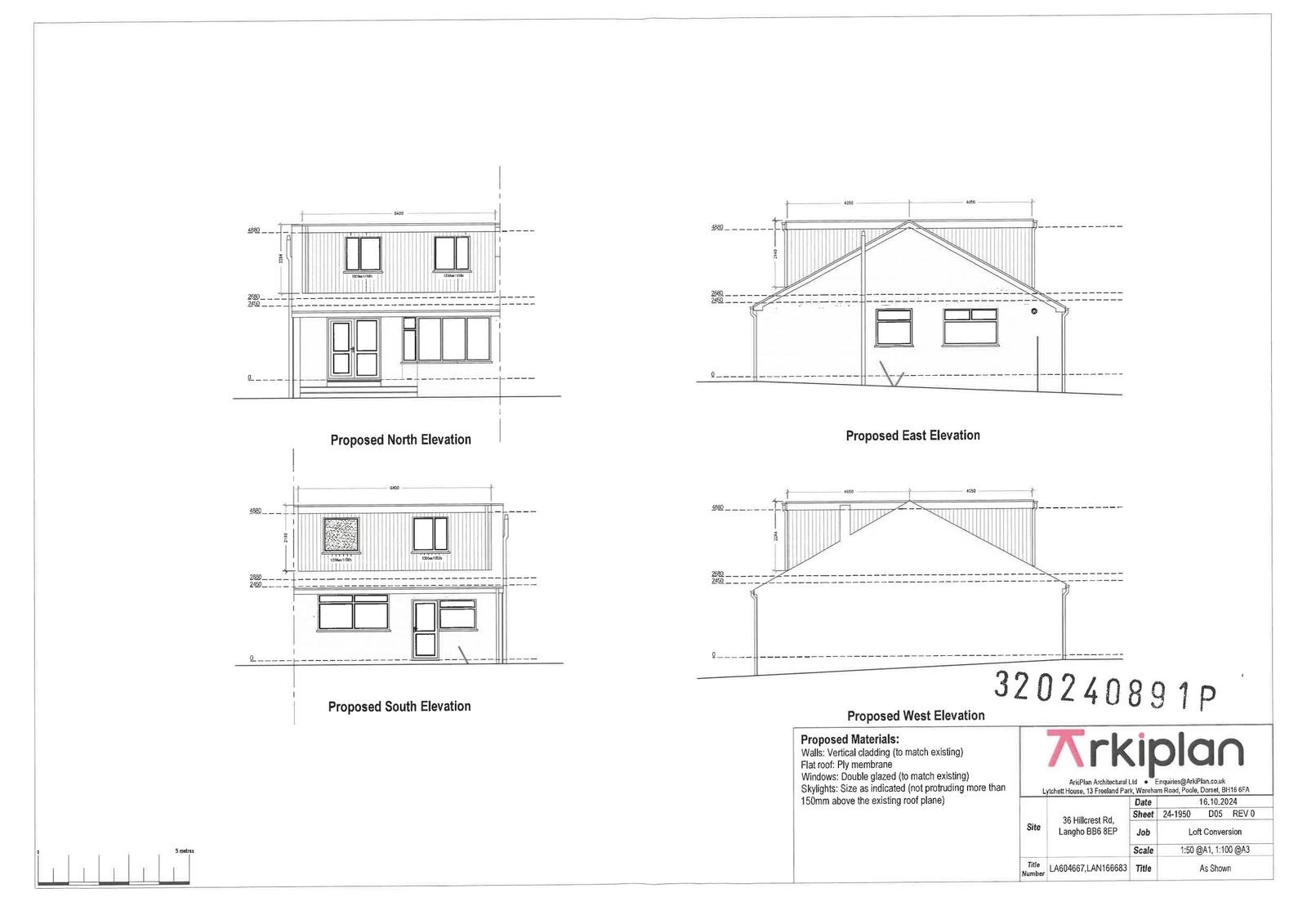
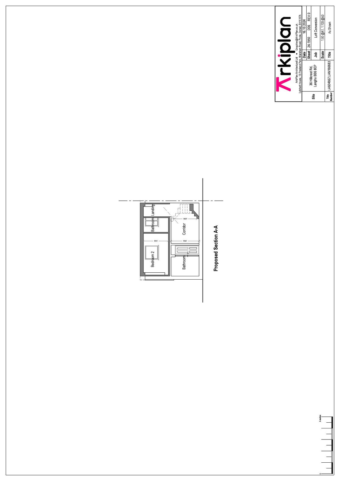
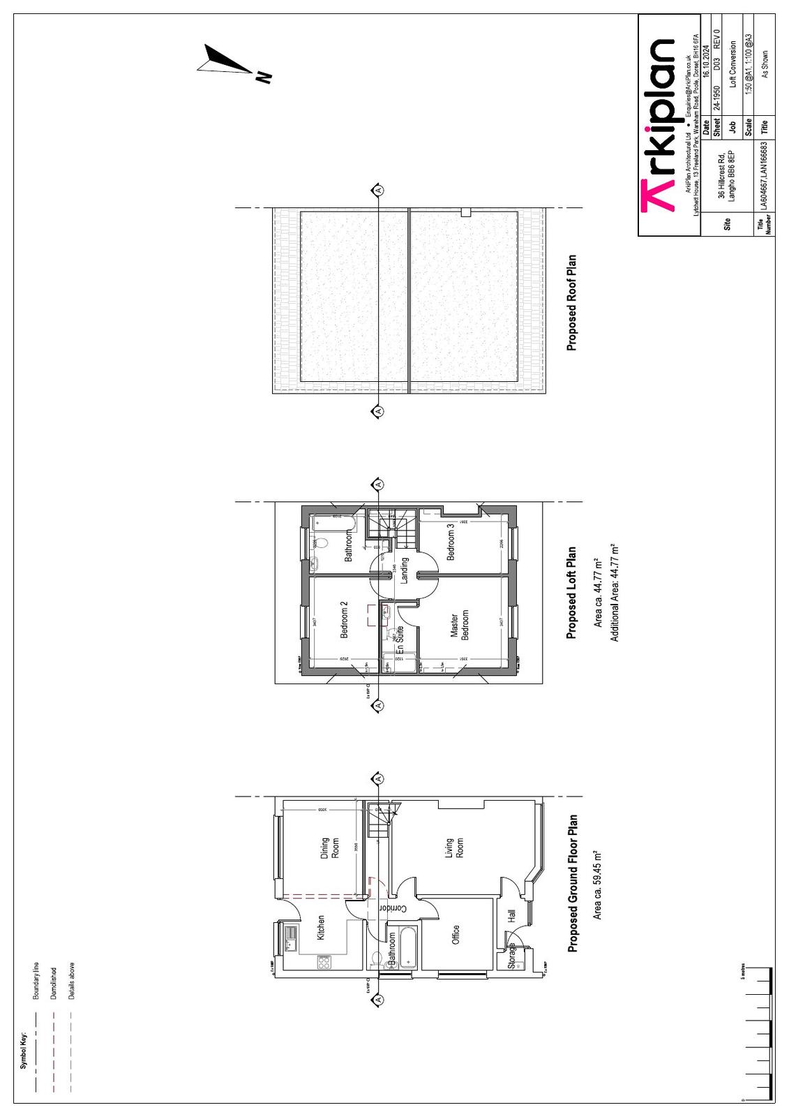
Applications for full consent Proposed construction of loft conversion with front and rear dormers.

Documents

Document
Archived · Original link
Document
Archived · Original link
24 0891 Decision Notice.docx
Document
Not yet archived · Original link
24 0891 Delegated Report.docx
Document
Not yet archived · Original link

Have your say

Your comment matters. Councils must consider every representation that raises material planning considerations.

Write a comment